
Omschrijving
Goed ingedeeld 3-kamerappartement met een woonoppervlak van ca. 49 m². Gelegen in de zeer gezellige Jordaan, met alle wenselijke winkels en eetgelegenheden om de hoek!
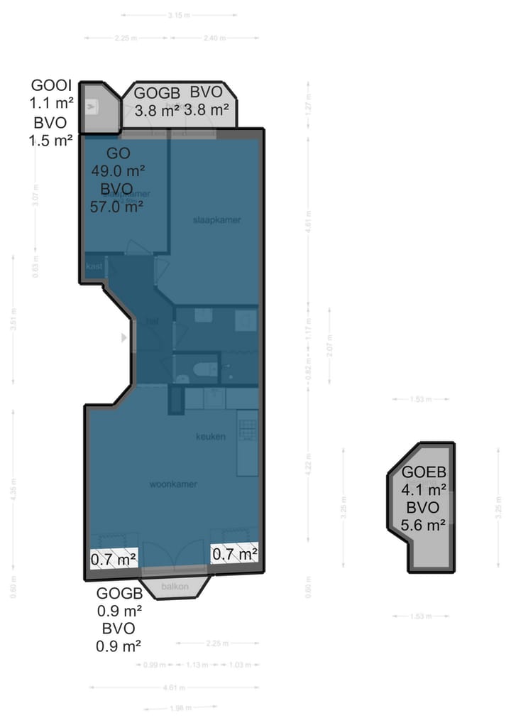
INDELING
Gemeenschappelijke entree op de begane grond, trap naar de derde, bovenste, verdieping.
Hal met toegang tot alle vertrekken. Ruime woonkamer met open keuken en balkon aan de voorzijde. Centraal de badkamer met douche, wastafel en wasmachine aansluiting. Separaat toilet.
Aan de achterzijde twee goed gemeten slaapkamers met beide toegang tot een comfortabel balkon.
Eigen berging in de onderbouw.
Kortom, een zeer compleet appartement op een superlocatie in hartje Amsterdam!
LIGGING
De Egelantiersstraat is gelegen tussen de Lijnbaansgracht en Prinsengracht en is zelf een rustige straat. De Jordaan is een levendige buurt en staat bekend om zijn gezellige sfeer en talloze voorzieningen. U woont hier om de hoek van alles wat Amsterdam u te bieden heeft!
Op loopafstand bevinden zich vele goede restaurants zoals Toscanini, Parlotte en Domenica maar ook veel gezellige cafés zoals bijvoorbeeld café Thijssen en koffietentjes. De Westerstraat, voor alle dagelijkse boodschappen, is letterlijk om de hoek gelegen, en in de Haarlemmerstraat en Negen Straatjes zijn talloze kleding- en speciaalzaken te vinden. Op maandag is er uiteraard nog de beroemde lapjesmarkt op de Westerstraat en zaterdag de (biologische) markt op de Noordermarkt en Lindengracht. Voorts is het Centraal Station met alle denkbare OV-verbindingen eenvoudig te bereiken en in het nabijgelegen Westerpark kunt u lekker wandelen of sporten.
BIJZONDERHEDEN
- Woonoppervlak van ca. 49m² conform NEN2580 meetrapport;
- 2 slaapkamers;
- 2 balkons;
- Gelegen op eigen grond;
- Eigen berging van ca. 4 m2 op de begane grond;
- Actieve VvE, professionele beheerder, bijdrage per maand € 167,44;
- Oplevering in overleg.
DISCLAIMER
Deze informatie is door ons met de nodige zorgvuldigheid samengesteld. Onzerzijds wordt echter geen enkele aansprakelijkheid aanvaard voor enige onvolledigheid, onjuistheid of anderszins, dan wel de gevolgen daarvan. Koper heeft zijn eigen onderzoek plicht naar alle zaken die voor hem of haar van belang zijn. Met betrekking tot deze woning is de makelaar adviseur van verkoper. Wij adviseren u een deskundige (NVM-)makelaar in te schakelen die u begeleidt bij het aankoopproces. Indien u specifieke wensen heeft omtrent de woning, adviseren wij u deze tijdig kenbaar te maken aan uw aankopend makelaar en hiernaar zelfstandig onderzoek te (laten) doen. Indien u geen deskundige vertegenwoordiger inschakelt, acht u zich volgens de wet deskundige genoeg om alle zaken die van belang zijn te kunnen overzien. Van toepassing zijn de NVM voorwaarden.
NEN CLAUSULE
De gebruiksoppervlakte is berekend conform de branche vastgestelde NEN 2580- norm. De oppervlakte kan derhalve afwijken van vergelijkbare panden en/of oude referenties. Dit heeft vooral te maken met deze (nieuwe) rekenmethode. Koper verklaart voldoende te zijn geïnformeerd over de hiervoor bedoelde normering. Verkoper en diens makelaar doen hun uiterste best de juiste oppervlakte en inhoud te berekenen aan de hand van eigen metingen en dit zoveel mogelijk te ondersteunen door het plaatsen van plattegronden met maatvoering. Mocht de maatvoering onverhoopt niet (volledig) overeenkomstig de normering zijn vastgesteld, wordt dit door koper aanvaard. Koper is voldoende in de gelegenheid gesteld de maatvoering zelf te (laten) controleren. Verschillen in de opgegeven maat en grootte geven geen der partijen enig recht, zo ook niet op aanpassing van de koopsom. Verkoper en diens makelaar aanvaarden geen enkele aansprakelijkheid in deze.
Kenmerken
Overdracht
- Laatste vraagprijs
- € 435.000 kosten koper
- Vraagprijs per m²
- € 8.878
- Status
- Verkocht
- Bijdrage VvE
- € 167,44 per maand
Bouw
- Soort appartement
- Bovenwoning
- Soort bouw
- Bestaande bouw
- Bouwperiode
- 1981-1990
- Specifiek
- Beschermd stads- of dorpsgezicht
Oppervlakten en inhoud
- Gebruiksoppervlakten
- Wonen
- 49 m²
- Overige inpandige ruimte
- 1 m²
- Gebouwgebonden buitenruimte
- 5 m²
- Externe bergruimte
- 4 m²
- Inhoud
- 160 m³
Indeling
- Aantal kamers
- 3 kamers (2 slaapkamers)
- Aantal badkamers
- 1 badkamer en 1 apart toilet
- Badkamervoorzieningen
- Douche en wastafel
- Aantal woonlagen
- 1 woonlaag
- Voorzieningen
- Mechanische ventilatie en TV kabel
- Gelegen op
- 3e woonlaag
Energie
- Energielabel
- E
- Isolatie
- Dubbel glas
- Verwarming
- Cv-ketel
- Warm water
- Cv-ketel
- Cv-ketel
- HR combi (gas gestookt combiketel, eigendom)
Kadastrale gegevens
- AMSTERDAM L 7904
- Kadastrale kaart
- Eigendomssituatie
- Volle eigendom
Buitenruimte
- Ligging
- In centrum en in woonwijk
- Balkon/dakterras
- Balkon aanwezig
Bergruimte
- Schuur/berging
- Box
- Voorzieningen
- Elektra
Parkeergelegenheid
- Soort parkeergelegenheid
- Betaald parkeren, openbaar parkeren en parkeervergunningen
VvE checklist
- Inschrijving KvK
- Ja
- Jaarlijkse vergadering
- Ja
- Periodieke bijdrage
- Ja (€ 167,44 per maand)
- Reservefonds aanwezig
- Ja
- Onderhoudsplan
- Nee
- Opstalverzekering
- Ja
Foto's 35
© 2001-2025 funda


































