
Omschrijving
Een ruim en licht appartement op toplocatie, die nog volledig naar eigen smaak in te richten is! Aan de slaapkamer heb je een balkon op het oosten, dat is lekker wakker worden met een bakje koffie in de zon!
LET OP! Bij deze verkoop is een regeling voorrang sociale huurders van toepassing, vraag ons naar de voorwaarden.
#YmereVerkoopt
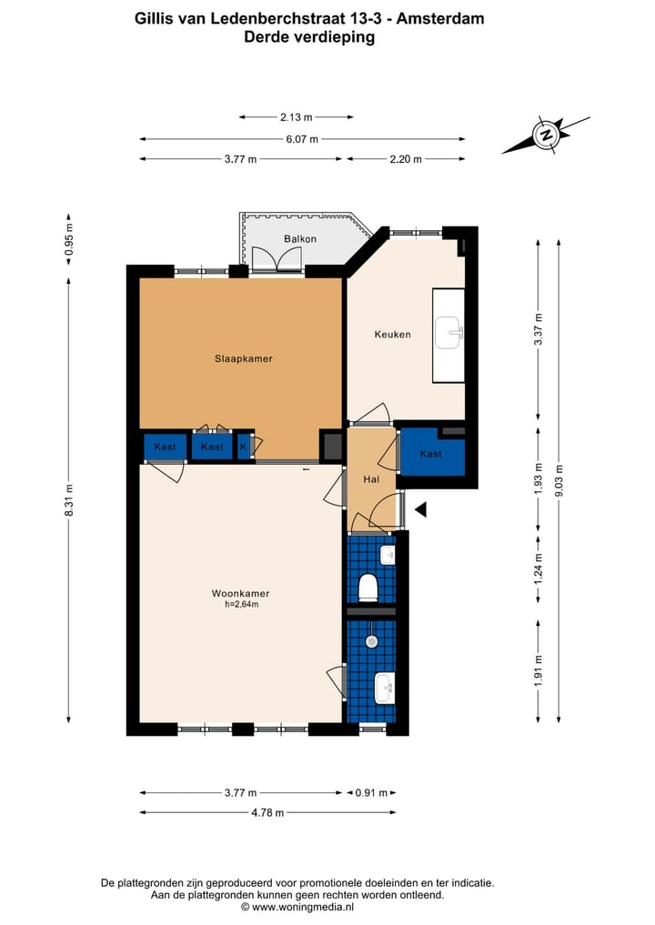
Indeling
Via het gemeenschappelijke trappenhuis bereik je de derde verdieping, waar dit lichte en goed ingedeelde appartement zich bevindt. Bij binnenkomst stap je de hal binnen, die toegang biedt tot de ruime keuken, het separate toilet en de royale woonkamer. De woonkamer valt direct op door het natuurlijke licht dat binnenkomt via de grote ramen. Vanuit de woonkamer geeft een schuifdeur toegang tot de slaapkamer, die eveneens grote ramen heeft en erg riant is. Verder biedt de slaapkamer toegang tot het balkon.
De separate berging bevindt zich op de vierde etage.
Bijzonderheden
• Woonoppervlakte: 46 m² (meetrapport aanwezig)
• Balkon op het oosten
• Ruime slaap- en woonkamer met veel licht
• Nog volledig in te richten naar eigen smaak
• De erfpacht is gekocht tot 30 juni 2061
• Toplocatie nabij het Westerpark en De Jordaan
• Ruime opslag op de vierde etage van 3,5 m²
• Woning is uitsluitend te koop met als doel: zelfbewoning (of ouders voor eerste graad bloedverwant);
• Niet-zelfbewoningsclausule en ouderdomsclausule van toepassing;
• Projectnotaris: Lubbers en Dijk Notarissen;
• Oplevering in overleg, kan snel.
• Vve wordt professioneel beheert en de servicekosten bedragen €137,50 per maand, plus een voorschot stookkosten á €87,-.
• Ouderdomsclausule en niet-zelfbewoningsclausule van toepassing
Omgeving
De Gillis van Ledenberchstraat ligt in de geliefde Frederik Hendrikbuurt, bekend om zijn charmante sfeer en gunstige ligging. Voor je dagelijkse boodschappen en diverse speciaalzaken kun je terecht op het nabijgelegen Hugo de Grootplein en de Frederik Hendrikstraat. Hier vind je supermarkten, bakkers, slagers en bloemisten. Daarnaast zijn er tal van hippe koffie- en lunchgelegenheden, zoals Local Hero, Karavaan en Morgan & Mees, op loopafstand te vinden.
Groen en recreatie
Het Westerpark en het Erasmuspark liggen op korte fietsafstand en bieden volop mogelijkheden voor ontspanning en recreatie. De Jordaan, met zijn charmante grachten en boetiekjes, is binnen 10 minuten te bereiken. Ook culturele hotspots zoals De Hallen en het Westergasterrein bevinden zich in de buurt.
Het Westerpark is een van de meest geliefde en veelzijdige parken van Amsterdam. Het park vormt een groene oase in de stad waar je kunt genieten van rust en natuur. Met uitgestrekte grasvelden, vijvers, kronkelende wandelpaden en schaduwrijke bomen is het de ideale plek voor een ontspannen wandeling, een picknick of sportieve activiteiten zoals hardlopen en yoga.
Aan de rand van het park bevindt zich de Westergasfabriek, een bruisend cultureel complex dat historische industriële gebouwen combineert met een moderne invulling. Hier vind je galeries, restaurants, cafés en een bioscoop. Het terrein is een creatieve hub waar regelmatig evenementen worden georganiseerd, zoals markten, filmvertoningen, theateroptredens en festivals.
Daarnaast biedt het Westerpark talloze horecagelegenheden. Je kunt er genieten van een heerlijke koffie bij Espressofabriek, een uitgebreide lunch bij De Bakkerswinkel, of een diner bij Pacific Amsterdam.
Locatie
De locatie is goed bereikbaar met zowel het openbaar vervoer als de auto. Tramhalte lijn 3 ligt praktisch om de hoek, en bus 18 brengt je vanaf het Frederik Hendrikplantsoen binnen 10 minuten naar het Centraal Station. Met de auto ben je snel op de ring A10.
Grondsituatie:
De grond is gelegen op erfpacht. De erfpacht is afgekocht tot 30 juni 2061
Vereniging van eigenaren:
De VvE is actief en wordt professioneel beheerd. De totale maandelijkse servicekosten bedragen € 224,50, dit bedrag is inclusief een voorschot van € 87,-- aan stookkosten. Er is een MJOP aanwezig.
De verkoopinformatie is met grote zorgvuldigheid samengesteld doch voor de juistheid van de inhoud kunnen wij niet instaan en er kunnen derhalve geen rechten aan worden ontleend. De inhoud is puur informatief en mag niet worden beschouwd als een aanbod. Daar waar gesproken wordt over inhoud, oppervlakten of afmetingen moeten deze worden beschouwd als indicatief en als circa maten. U dient als koper zelfonderzoek te verrichten naar zaken die voor u van belang zijn. Wij raden u in dat verband aan uw eigen (NVM-)makelaar in te schakelen.
Kenmerken
Overdracht
- Laatste vraagprijs
- € 360.000 kosten koper
- Vraagprijs per m²
- € 7.826
- Status
- Verkocht
- Bijdrage VvE
- € 137,50 per maand
Bouw
- Soort appartement
- Bovenwoning (appartement)
- Soort bouw
- Bestaande bouw
- Bouwjaar
- 1916
- Soort dak
- Plat dak bedekt met bitumineuze dakbedekking
Oppervlakten en inhoud
- Gebruiksoppervlakten
- Wonen
- 46 m²
- Gebouwgebonden buitenruimte
- 2 m²
- Externe bergruimte
- 4 m²
- Inhoud
- 172 m³
Indeling
- Aantal kamers
- 2 kamers (1 slaapkamer)
- Aantal badkamers
- 1 badkamer en 1 apart toilet
- Badkamervoorzieningen
- Douche en wastafel
- Aantal woonlagen
- 1 woonlaag
- Gelegen op
- 3e woonlaag
Energie
- Energielabel
- G
- Isolatie
- Gedeeltelijk dubbel glas
- Verwarming
- Blokverwarming
- Warm water
- Centrale voorziening
Kadastrale gegevens
- AMSTERDAM Q 8922
- Kadastrale kaart
- Eigendomssituatie
- Gemeentelijk eigendom belast met erfpacht
- Lasten
- Afgekocht tot 30-06-2061
Buitenruimte
- Ligging
- Aan rustige weg en in centrum
- Balkon/dakterras
- Balkon aanwezig
Bergruimte
- Schuur/berging
- Box
- Isolatie
- Geen isolatie
Parkeergelegenheid
- Soort parkeergelegenheid
- Openbaar parkeren en parkeervergunningen
VvE checklist
- Inschrijving KvK
- Ja
- Jaarlijkse vergadering
- Ja
- Periodieke bijdrage
- Ja (€ 137,50 per maand)
- Reservefonds aanwezig
- Ja
- Onderhoudsplan
- Ja
- Opstalverzekering
- Ja
Foto's 18
© 2001-2025 funda

















