
Omschrijving
## HOUSE FOR SALE - ENGLISH BELOW ##
A’dam Good Story presenteert Haarlemmerweg 169-2
Midden in de stad wonen met vrij uitzicht op de gracht en het Westerpark.
2-kamer appartement met veel licht en buitenruimte.
De huiskamer is speels ingedeeld waardoor er een knusse zithoek, eethoek en een "cinema" is.
Voldoende ruimte om gezellige avonden door te brengen met vrienden en familie.
Het balkon is lekker voor als je even de dag wilt doornemen.
Bel ons gerust even voor een afspraak. Wij plannen de bezichtigingen in het weekend!
Deze woning beschikt over de volgende bijzonderheden:
• Killer view in Amsterdam op steenworp afstand van de binnenstad;
• Huiskamer met veel lichtinval en zitgelegenheid in de kozijnen;,
• Actieve VvE vereniging, €136,90 maandelijkse bijdrage;
• Ruime slaapkamer aan de rustige zijde met toegang tot het balkon;
• Separate keuken, ideaal als je even de afwas wilt laten staan;
• Complete badkamer;
• Erfpacht afgekocht tot 30 juni 2055.
Met het Westerpark in de voortuin ga je je nooit vervelen. Voor je dagelijkse yoga oefeningen of boodschappen doen op de Sunday Market?
Een festivalletje pakken of naar de Rollende keukens?
Om de hoek voldoende horeca gelegenheden, je komt niets te kort.
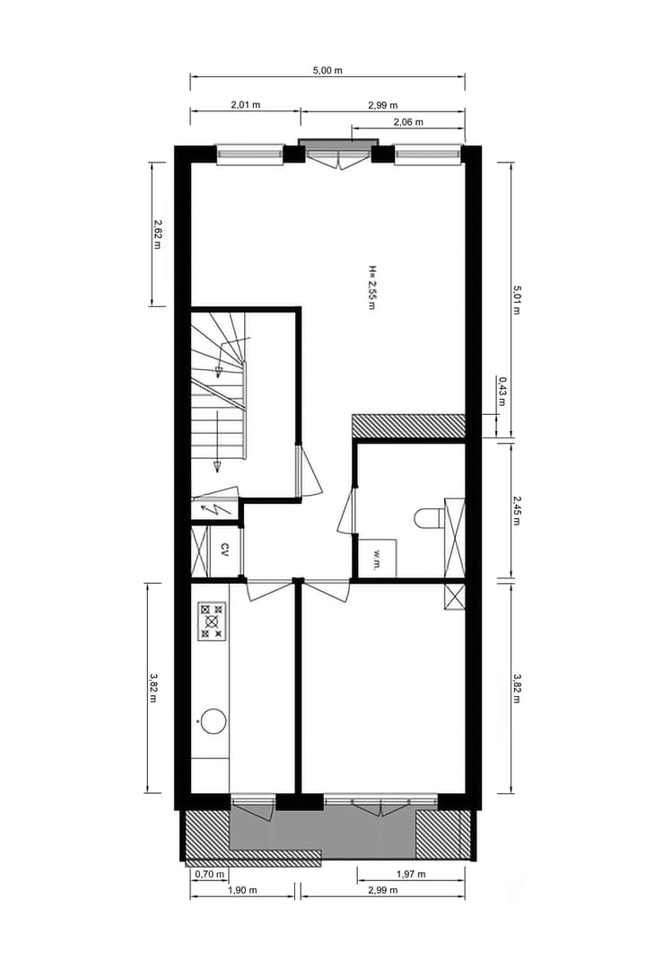
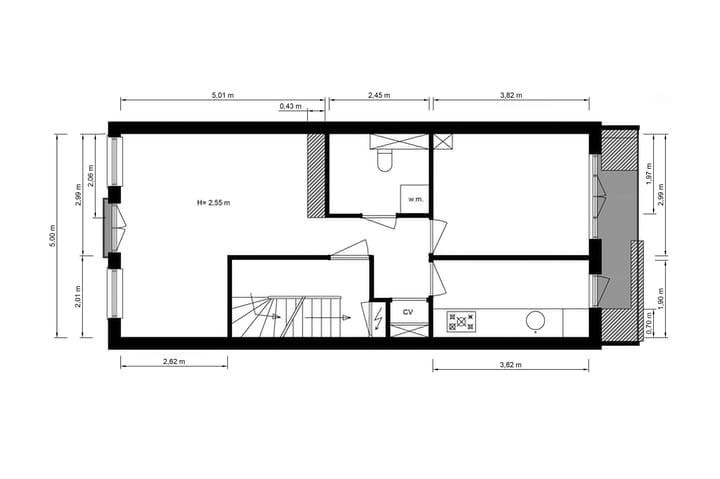
I N D E L I N G
Op de tweede verdieping kom je binnen in dit appartement. De woonkamer, gelegen aan je linkerzijde, geeft een gevoel van rust en vrijheid midden in de stad.
De grote ramen en het franse balkon laten de wind en de zon binnen. Het licht en het uitzicht zullen nooit vervelen.
Aan je rechterzijde tref je de achterzijde van de woning aan, deze voelt intiem. De grote slaapkamer en de keuken komen uit op het balkon, heerlijk om even de dag aan je voorbij te laten gaan.
De badkamer is compleet en ruim, met toilet, inloopdouche en badkamermeubel.
De separate keuken is groot perfect gelegen naast het balkon, ideaal voor ontbijt en avondeten.
L I G G I N G
Een paar minuten lopen naar het Haarlemmerplein voor de supermarkt en met de tramhalte op de hoek is deze woning centraal gelegen.
Naast het Westerpark, met het Ketelhuis voor een avondje heerlijk film kijken kom je hier al niets te kort.
De Jordaan ligt op enkele minuten fietsen en voor je het weet sta je op de Dam.
Even een hapje eten op het Limburg van Stierumplein of geef je de voorkeur aan om met een bootje door de grachten te varen?
Kortom, alles is mogelijk, dit is Amsterdam!
M O G E L I J K H E D E N
De huiskamer leent zich prima om vanuit huis te werken, wellicht is een bureau bij het raam een optie.
C O N C L U S I E
Dit appartement geeft rust, ruimte en is een heerlijke plek om te vertoeven terwijl je midden in de stad bent.
I N T E R E S S E
Bel dan A’dam Good Story voor een bezichtiging 088-4422820
Deze informatie is door ons met zorgvuldigheid samengesteld. Onzerzijds wordt echter geen enkele aansprakelijkheid aanvaard voor enige onvolledigheid, onjuistheid of anderszins, dan wel de gevolgen daarvan.
## ENGLISH TEXT ##
A'dam Good Story presents Haarlemmerweg 169-2
Living in the middle of the city with unobstructed views of the canal and the Westerpark.
2-room apartment with lots of light and outdoor space.
The living room is playfully arranged so there is a cozy sitting area, dining area and a "cinema".
Enough space to spend cozy evenings with friends and family.
The balcony is just when you want to kick back and go over the day.
Feel free to call us for an appointment. We schedule viewings on weekends!
This home features the following special features:
• Killer view in Amsterdam just steps from downtown;
• Living room with lots of light and seating in the frames;,
• Active VvE association, €136,90 monthly contribution;
• Spacious bedroom on the quiet side with access to the balcony;
• Separate kitchen, ideal if you just want to leave the dishes;
• Complete bathroom;
• Ground lease bought off until June 30, 2055.
With the Westerpark in your front yard, you'll never get bored. For your daily yoga exercises or shopping at the Sunday Market?
Grab a festival or go to the Rolling Kitchens?
Around the corner plenty of catering establishments, you won't be short of anything.
L A Y O U T
On the second floor, you enter this apartment. The living room, located on your left side, gives a feeling of peace and freedom in the middle of the city.
The large windows and french balcony welcomes the wind and the sun. The unobstructed view will never bore you.
On your right side you will find the back of the home, it feels intimate. The master bedroom and kitchen have direct access onto the balcony, great for just letting the day pass you by.
The bathroom is complete and spacious, with toilet, walk-in shower and bathroom cabinet.
The separate kitchen is large and opens right next to the balcony, ideal for dinners and breakfast.
L O C A T I O N
A few minutes walk to Haarlemmerplein for the supermarket and with the tram stop on the corner, this house is centrally located.
Next to the Westerpark, with the Ketelhuis for an evening of great movie watching, you'll already be right here.
The Jordaan is a few minutes by bike and before you know it you are on Dam Square.
Fancy a bite on the Limburg van Stierumplein or do you prefer to take a boat through the canals?
In short, everything is possible, this is Amsterdam!
P O S S I B I L I T I E S.
The living room lends itself well to working from home, perhaps a desk by the window is an option.
C O N C L U S I O N
This apartment provides peace, space and is a wonderful place to stay while being in the middle of the city.
I N T E R E S T E D
Then call A'dam Good Story for a viewing 088-4422820
This information has been compiled by us with care. However, no liability is accepted for any incompleteness, inaccuracy or otherwise, or the consequences thereof.
Kenmerken
Overdracht
- Laatste vraagprijs
- € 425.000 kosten koper
- Vraagprijs per m²
- € 8.673
- Status
- Verkocht
- Bijdrage VvE
- € 136,90 per maand
Bouw
- Soort appartement
- Tussenverdieping (appartement)
- Soort bouw
- Bestaande bouw
- Bouwjaar
- 1904
- Soort dak
- Samengesteld dak bedekt met bitumineuze dakbedekking
Oppervlakten en inhoud
- Gebruiksoppervlakten
- Wonen
- 49 m²
- Overige inpandige ruimte
- 5 m²
- Inhoud
- 162 m³
Indeling
- Aantal kamers
- 2 kamers (1 slaapkamer)
- Aantal badkamers
- 1 badkamer
- Badkamervoorzieningen
- Douche, inloopdouche, toilet, en wastafelmeubel
- Aantal woonlagen
- 1 woonlaag
- Voorzieningen
- Frans balkon, glasvezelkabel, mechanische ventilatie, natuurlijke ventilatie, en TV kabel
- Gelegen op
- 2e woonlaag
Energie
- Energielabel
- C
- Verwarming
- Cv-ketel
- Warm water
- Cv-ketel
- Cv-ketel
- Gas gestookt combiketel uit 2022, eigendom
Kadastrale gegevens
- AMSTERDAM Y 4380
- Kadastrale kaart
- Eigendomssituatie
- Gemeentelijk eigendom belast met erfpacht
- Lasten
- Afgekocht tot 30-06-2055
Buitenruimte
- Ligging
- Aan drukke weg, aan park, aan vaarwater, aan water, in centrum, in woonwijk, open ligging en vrij uitzicht
- Balkon/dakterras
- Balkon aanwezig
Parkeergelegenheid
- Soort parkeergelegenheid
- Betaald parkeren, openbaar parkeren, parkeergarage en parkeervergunningen
VvE checklist
- Inschrijving KvK
- Ja
- Jaarlijkse vergadering
- Ja
- Periodieke bijdrage
- Ja (€ 136,90 per maand)
- Reservefonds aanwezig
- Ja
- Onderhoudsplan
- Ja
- Opstalverzekering
- Ja
Foto's 23
© 2001-2025 funda






















