
Hugo de Grootkade 42-H1052 LT AmsterdamFrederik Hendrikbuurt-Zuidoost
€ 575.000 k.k.
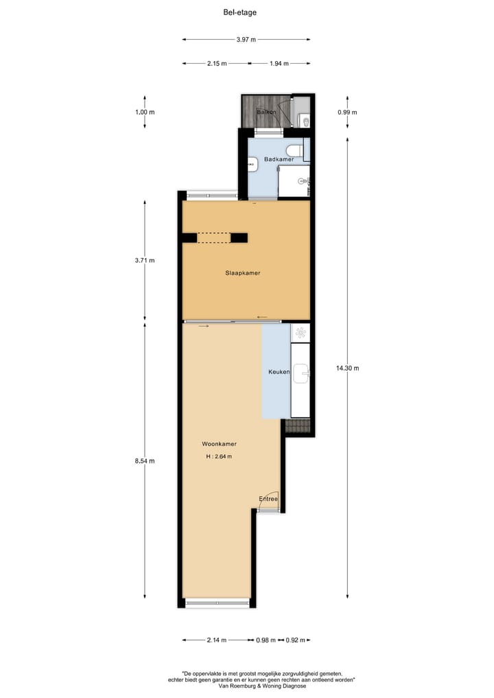
Omschrijving
Luxe design appartement met grachtenzicht in hartje Amsterdam
Wonen in een stijlvol design appartement met uitzicht over de Amsterdamse grachten én alle hotspots op loopafstand? Dit volledig gerenoveerde en hoogwaardig afgewerkte appartement van 45 m² biedt het allemaal. Gelegen in het bruisende centrum, op korte afstand van de 9 Straatjes, de Dam, het Anne Frank Huis en het Leidseplein, geniet je hier van het allerbeste dat Amsterdam te bieden heeft.
Woonkamer met iconisch uitzicht
De lichte woonkamer kijkt direct uit over de gracht en de karakteristieke woonboten. Aan de voorzijde van het pand staat op de stoep bovendien een vaste bank met tafel, ideaal om buiten te zitten en van de zon te genieten — alsof de stad je eigen voortuin is.
Chef-waardige keuken
De eigenaar is chef-kok, en dat zie je. De ruime, volledig uitgeruste keuken is voorzien van een kookeiland in travertin met Corian afwerking en uitsluitend topapparatuur van Gaggenau: oven, stoomoven, kookplaat, koelkast, vaatwasser, afzuigsysteem, vacumeermachine én een wijnklimaatkast. Een droomkeuken voor iedereen die van koken houdt.
Slaapkamer met glazen schuifpui en eigen badkamer
De slaapkamer ligt rustig aan de achterzijde en wordt stijlvol afgescheiden door een grote glazen schuifpui. De en-suite badkamer is luxe uitgevoerd met een inloopdouche, toilet en een fraai wastafelmeubel met marmeren waskom. Vanuit de badkamer is er toegang tot een klein balkon met handige balkonkast. De vloerverwarming door het hele appartement is zeer comfortabel.
Highlights
• Recent compleet gerenoveerd
• 45 m² woonoppervlak
• Gelegen op eigen grond
• Servicekosten € 90,- per maand
• Energielabel C, volledig vloerverwarming
• Toestemming van de VvE om zonnepanelen op het dak te plaatsen
• Uitzicht op de gracht en toplocatie in het centrum
Kenmerken
Overdracht
- Oorspronkelijke vraagprijs
- € 675.000 kosten koper
- Aangeboden sinds
- Aanvaarding
- In overleg
- Vraagprijs
- € 575.000 kosten koper
- Vraagprijs per m²
- € 12.778
- Status
- Beschikbaar
- Bijdrage VvE
- € 90,00 per maand
Bouw
- Soort appartement
- Tussenverdieping (appartement)
- Soort bouw
- Bestaande bouw
- Bouwjaar
- 1894
Oppervlakten en inhoud
- Gebruiksoppervlakten
- Wonen
- 45 m²
- Overige inpandige ruimte
- 1 m²
- Gebouwgebonden buitenruimte
- 2 m²
- Inhoud
- 156 m³
Indeling
- Aantal kamers
- 2 kamers (1 slaapkamer)
- Aantal badkamers
- 1 badkamer
- Badkamervoorzieningen
- Inloopdouche, toilet, vloerverwarming, en wastafelmeubel
- Aantal woonlagen
- 1 woonlaag
- Voorzieningen
- Mechanische ventilatie en TV kabel
- Gelegen op
- 1e woonlaag
Energie
- Energielabel
- Isolatie
- HR-glas en vloerisolatie
- Verwarming
- Cv-ketel en gehele vloerverwarming
- Warm water
- Cv-ketel
- Cv-ketel
- Gas gestookt combiketel, eigendom
Kadastrale gegevens
- AMSTERDAM Q 7273
- Kadastrale kaart
- Eigendomssituatie
- Volle eigendom
Buitenruimte
- Ligging
- Aan water en in centrum
- Balkon/dakterras
- Balkon aanwezig
Parkeergelegenheid
- Soort parkeergelegenheid
- Betaald parkeren, openbaar parkeren en parkeervergunningen
VvE checklist
- Inschrijving KvK
- Ja
- Jaarlijkse vergadering
- Ja
- Periodieke bijdrage
- Ja (€ 90,00 per maand)
- Reservefonds aanwezig
- Ja
- Onderhoudsplan
- Ja
- Opstalverzekering
- Ja
Foto's 22
© 2001-2026 funda





















