
Omschrijving
Op de 5e etage een lekker ruim, verzorgd en licht instapklaar 3-kamer appartement van 69m2 met vrij uitzicht over het vele groen vanaf het balkon.
Energielabel A en erfpacht afgekocht tot 1 jan 2055.
UNIEK
Het appartement is gelegen in de in 2015 gerenoveerde flat Kleiburg die als Klusflat is verkocht. En daarmee modern en als nieuwbouw te benoemen. Het idee en de uitvoering heeft diverse prijzen gewonnen.
CENTRAAL
Het complex is makkelijk te bereiken, zowel met openbaar vervoer als met de auto. Metrostation Kraaiennest ( lijn 53 ) ligt om de hoek. In de directe nabijheid zijn scholen, winkels oa. AH, Action, elke dinsdag markt. Veel sportfaciliteiten rond de flat zoals tennis-, basketbal en voetbalspeelveld en een atletiekbaan>
Uitvalswegen A1, A2 en ring A10 en bus (41 en 47) en metro. Verder in Zuidoost de arenaboulevard met diverse uitgaansgelegenheden zoals: de AFAS Music Hall, Pathé Arena, Ziggo Dome en de Johan Cruijff Arena.
Op de begane grond de algemene entree ruim en licht met brievenbussen, trappenhuis en dubbele lift. Ook hier de algemene fietsenberging voor dit bewonersdeel.
INDELING
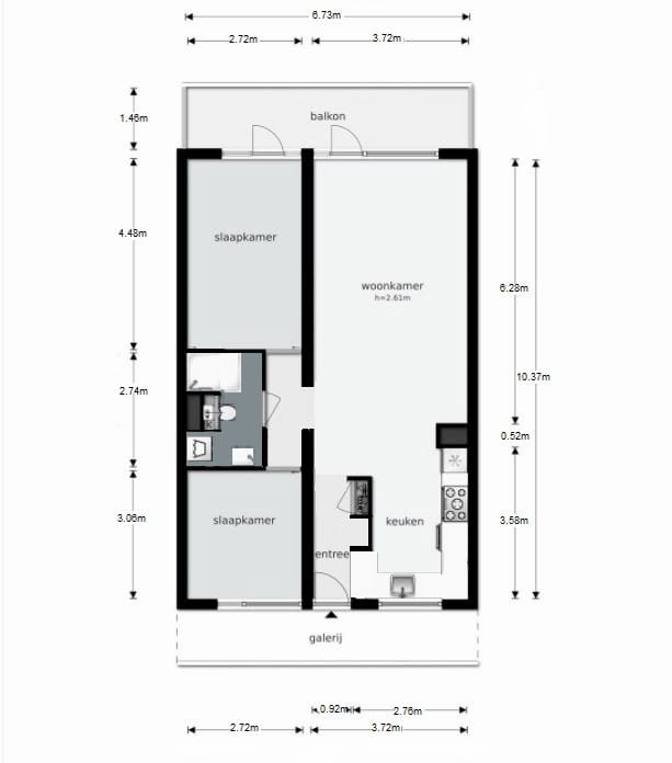
5e etage: Entree woning; open hal met lage berging voor schoenen en een garderobe en de energiekast.
Direct toegang en zicht tot de woonkamer en open keuken.
Gehele appartement heeft een sfeervolle houtlooklaminaatvloer.
De luxe keuken aan de voorzijde van de woning, beschikt over veel en praktisch werkblad, laden en kastjes en diverse inbouwapparatuur zoals: een oven, kookplaat, afzuigkap, vaatwasser, koel- en vrieskast. Tevens uitgevoerd met een nieuwe keukenboiler voor direct heet water.
Ruime woonkamer met toegang tot het zonnige balkon op het zuiden.
Tussen de keuken en woonkamer nog een gezellig zitje of bar.
Vanuit de woonkamer heeft u, via de gang, toegang tot de badkamer en slaapkamers>
De badkamer is geheel betegeld en uitgevoerd met vloerverwarming, een inloopdouche, wastafelmeubel, het toilet met wandcloset en de wasmachine opstelling.
Twee slaapkamers een aan de voor- en de ander aan de achterzijde.
Balkon van 6.80 meter over de gehele lengte van de woning op het zuiden en heerlijk genieten van het vrije uitzicht.
Berging
De woning heeft een eigen berging van ca. 5m² op dezelfde verdieping.
Onderin het complex is er een (afgesloten) algemene fietsenberging.
Detailinformatie:
- Bouwjaar 2015
- Energielabel A
- Woonoppervlakte ca. 69 m2.
- De beroemde "klusflat", in 2015 geheel gerenoveerd, geheel uitgevoerd met hardhouten
kozijnen met isolatieglas, nieuwe water, gas, electra en riool toe en afvoeren.
- Algemene fietsenberging;
- Warmwater en verwarming middels stadsverwarming;
- Glasvezelkabel;
- Erfpachtcanon tot 31-12-2054 afgekocht.
- De servicekosten zijn € 264,13 p/m incl. opstalverzekering, onderhoud lift, reservering groot
onderhoud. Voorschot stook en warmwater via vve is € 50,- per maand.
- Oplevering kan snel in overleg.
Nette woning instapklaar, kom kijken, meld je aan!
Kenmerken
Overdracht
- Laatste vraagprijs
- € 335.000 kosten koper
- Vraagprijs per m²
- € 4.855
- Status
- Verkocht
- Bijdrage VvE
- € 264,13 per maand
Bouw
- Soort appartement
- Galerijflat (appartement)
- Soort bouw
- Bestaande bouw
- Bouwjaar
- 2015
- Soort dak
- Plat dak bedekt met bitumineuze dakbedekking
Oppervlakten en inhoud
- Gebruiksoppervlakten
- Wonen
- 69 m²
- Gebouwgebonden buitenruimte
- 9 m²
- Externe bergruimte
- 4 m²
- Inhoud
- 230 m³
Indeling
- Aantal kamers
- 3 kamers (2 slaapkamers)
- Aantal badkamers
- 1 badkamer
- Badkamervoorzieningen
- Douche, toilet, en wastafelmeubel
- Aantal woonlagen
- 1 woonlaag
- Voorzieningen
- Lift, mechanische ventilatie, en TV kabel
- Gelegen op
- 5e woonlaag
Energie
- Energielabel
- Isolatie
- Dakisolatie, dubbel glas en HR-glas
- Verwarming
- Stadsverwarming
- Warm water
- Stadsverwarming
Kadastrale gegevens
- WEESPERKARSPEL L 11195
- Kadastrale kaart
- Eigendomssituatie
- Gemeentelijke erfpacht (einddatum erfpacht: 01-01-2055)
Buitenruimte
- Ligging
- Aan park, aan rustige weg, in woonwijk en vrij uitzicht
- Balkon/dakterras
- Balkon aanwezig
Bergruimte
- Schuur/berging
- Box
Parkeergelegenheid
- Soort parkeergelegenheid
- Betaald parkeren en openbaar parkeren
VvE checklist
- Inschrijving KvK
- Ja
- Jaarlijkse vergadering
- Ja
- Periodieke bijdrage
- Ja (€ 264,13 per maand)
- Reservefonds aanwezig
- Ja
- Onderhoudsplan
- Ja
- Opstalverzekering
- Ja
Foto's 27
© 2001-2026 funda


























