
Ladogameerhof 1481060 RE AmsterdamDe Aker-West
€ 435.000 k.k.
Omschrijving
Opzoek naar een ruim (maisonnette) appartement in Amsterdam- West? Neem dan snel een kijkje in dit prachtige appartement en wie weet bent u straks de trotse eigenaar. Gelegen in de ruim opgezette en kindvriendelijke wijk De Aker in Amsterdam West, bieden wij dit royale 4-kamer appartement aan. De woning is verdeeld over twee verdiepingen. Het appartement heeft een woonoppervlakte van 90 m² en beschikt over een balkon op het zonnige zuidoosten. Dit appartement is ideaal gelegen in de buurt van openbaar vervoer, met een tramhalte op loopafstand en winkelcentrum ‘De Dukaat’ om de hoek. Hier vindt u onder andere een supermarkt, bakker, slager en drogist. Ook scholen en kinderdagverblijven zijn dichtbij. De uitvalswegen zijn gemakkelijk bereikbaar, en Schiphol ligt op slechts 15 minuten rijden, net als Haarlem en Hoofddorp. Interesse in deze woning? Neem dan snel contact op voor een vrijblijvende bezichtiging!
Indeling
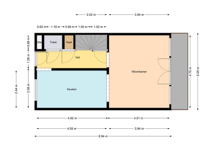
Indeling: Op de begane grond bevindt zich een ruime hal met toilet, een afgesloten garderobe, trapkast en trap naar de eerste verdieping. De lichte woonkamer, gelegen aan de achterzijde, valt op door de openslaande deuren naar het balkon. De royale keuken aan de voorzijde is voorzien van diverse inbouwapparatuur en biedt voldoende ruimte voor een gezellige eethoek.
Eerste verdieping
Op de eerste verdieping bevinden zich drie ruime slaapkamers, een moderne badkamer met douche en wastafelmeubel, en een aparte ruimte voor de wasmachine.
Bijzonderheden
Kenmerken:
• Bouwjaar: 1999
• Woonoppervlakte: 90 m²
• Inhoud: 280 m³
• Gebouwgebonden buitenruimten (balkon): 8 m²
• Gratis parkeren voor de deur
• Balkon op het zuidoosten
• Nabij uitvalswegen A4/A10 en A5/A9
Are you looking for a spacious (maisonette) apartment in Amsterdam-West? Be sure to take a look in this gorgeous apartment; maybe you will soon be the proud owner.
We have on offer this large 4-room apartment, located in the spacious and child-friendly De Aker neighbourhood in Amsterdam-West. The apartment is arranged over two floors, has a living space of 90m2 and a southeast facing sunny balcony. This apartment is ideally located near public transport, within walking distance of a tram stop. ‘De Dukaat’ shopping centre is around the corner with among others a supermarket, bakery, butcher and drugstore. Schools and day-care centres are also nearby. Arterial roads are within easy reach, and Schiphol Airport, Haarlem and Hoofddorp are just a 15-minute drive.
Are you interested? Contact us quickly for a noncommittal viewing appointment!
Description: On the ground floor is a large hall with a toilet, closed wardrobe, stair cupboard and stairs to the first floor. Striking of the bright living room at the back are the patio doors to the balcony. The large kitchen at the front is equipped with various appliances and offers enough room for a cozy dining area.
On the first floor are 3 large bedrooms and a modern bathroom with a shower and washstand. There is a separate room for a washing machine
Specifications:
- Built in: 1999
- Living space: 90m²
- Contents: 280m³
- Building related outdoor spaces (balcony): 8m2
- Free parking at the door
- Southeast facing balcony
- Near arterial roads A4/A10 and A5/A9
Kenmerken
Overdracht
- Aangeboden sinds
- Aanvaarding
- In overleg
- Vraagprijs
- € 435.000 kosten koper
- Vraagprijs per m²
- € 5.000
- Status
- Beschikbaar
- Bijdrage VvE
- € 318,46 per maand
Bouw
- Soort appartement
- Maisonnette (appartement)
- Soort bouw
- Bestaande bouw
- Bouwjaar
- 1999
- Soort dak
- Plat dak bedekt met bitumineuze dakbedekking
Oppervlakten en inhoud
- Gebruiksoppervlakten
- Wonen
- 87 m²
- Gebouwgebonden buitenruimte
- 8 m²
- Externe bergruimte
- 8 m²
- Inhoud
- 280 m³
Indeling
- Aantal kamers
- 4 kamers (3 slaapkamers)
- Aantal badkamers
- 1 badkamer en 1 apart toilet
- Badkamervoorzieningen
- Douche, wastafel, en wastafelmeubel
- Aantal woonlagen
- 2 woonlagen
- Voorzieningen
- Lift
- Gelegen op
- 1e woonlaag
Energie
- Energielabel
- Isolatie
- Dubbel glas, HR-glas en volledig geïsoleerd
- Verwarming
- Stadsverwarming
- Warm water
- Stadsverwarming
Kadastrale gegevens
- AMSTERDAM G 2921
- Kadastrale kaart
- Eigendomssituatie
- Erfpacht
- Lasten
- Afgekocht tot 15-02-2047
Buitenruimte
- Ligging
- Aan rustige weg en in woonwijk
- Balkon/dakterras
- Balkon aanwezig
Bergruimte
- Schuur/berging
- Inpandig
- Voorzieningen
- Elektra
Parkeergelegenheid
- Soort parkeergelegenheid
- Betaald parkeren en openbaar parkeren
VvE checklist
- Inschrijving KvK
- Ja
- Jaarlijkse vergadering
- Ja
- Periodieke bijdrage
- Ja (€ 318,46 per maand)
- Reservefonds aanwezig
- Ja
- Onderhoudsplan
- Ja
- Opstalverzekering
- Ja
Foto's 34
© 2001-2026 funda

































