
Omschrijving
Modern en sfeervol 3-kamerappartement van 73 m² met twee balkons, gelegen op eigen grond vlak bij het Vondelpark!
Deze instapklare woning is in 2017 volledig gerenoveerd, inclusief de fundering. De charmante bouwstijl, hoge plafonds en houten vloer zorgen voor een warme en gezellige sfeer. Dankzij de goede isolatie, dubbele beglazing en een uitstekend energielabel woon je hier comfortabel en energiezuinig. Mis deze kans niet en plan snel een bezichtiging!
Indeling:
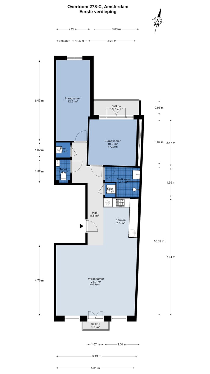
Entree op de eerste verdieping. Ruime en lichte woonkamer met een fraaie houten parketvloer en een charmant Frans balkon. De open keuken is uitgerust met diverse inbouwapparatuur. Er zijn twee goed bemeten slaapkamers van circa 10 en 12 m². Vanuit de slaapkamer is er toegang naar het balkon gelegen op Noord-Westen. De moderne badkamer is voorzien van een royale inloopdouche en een stijlvol wastafelmeubel. Daarnaast is er een apart toilet met fonteintje, een aparte wasruimte en een berging met cv-opstelling.
Omgeving:
De ligging tussen de Overtoom en het Vondelpark is zonder twijfel een van de grootste pluspunten van deze woning. Het Vondelpark is perfect voor een wandeling, sportieve activiteit of gewoon om even te ontspannen. De buurt biedt daarnaast een gevarieerd aanbod aan winkels, gezellige cafés, goede restaurants en ambachtelijke speciaalzaken. Populaire plekken zoals Uncommon, Cafe Kompleet & Coffee District liggen om de hoek. Voorzieningen zijn er volop: er zijn meerdere basisscholen, kinderopvanglocaties en middelbare scholen in de buurt. De bereikbaarheid is uitstekend, met diverse tram- en busverbindingen voor de deur en goede aansluitingen naar Station Lelylaan, Station Zuid en de ring A10. Met de fiets ben je binnen enkele minuten op het Museumplein, in de Jordaan of in het centrum van de stad.
Vereniging van Eigenaren:
De VvE bestaat uit 5 appartementsrechten en wordt actief beheerd door Delair Vastgoedbeheer. De maandelijkse bijdrage bedraagt € 174,-. In het reservefonds zit circa € 10.000,- (06-05-2025).
Bijzonderheden:
- Eigen grond
- Karakteristiek pand
- Hoge plafonds van circa 2,8 meter
- Bouwjaar 1904, gesplitst in appartementsrechten in 2017
- Woonoppervlakte 73 m² (NEN2580-meetrapport aanwezig)
- Energielabel B, voorzien van dubbele beglazing
- Volledig gerenoveerd in 2017 inclusief fundering
- Twee ruime slaapkamers aan achterzijde
- Balkon gelegen op Noord-Westen en frans balkon (ochtendzon)
- Houten parketvloer en inbouwspots door de hele woning
- Gelegen in Oud-West nabij het Vondelpark
- Oplevering in overleg
Dit is zo’n woning die je zelden tegenkomt, ik laat je het appartement graag zien tijdens een bezichtiging. Tot snel!
Groet,
Tim
Disclaimer:
Deze informatie is met de grootst mogelijke zorg samengesteld. Er kunnen echter geen rechten aan worden ontleend. Alle opgegeven maten en oppervlakten zijn indicatief.
Kenmerken
Overdracht
- Laatste vraagprijs
- € 650.000 kosten koper
- Vraagprijs per m²
- € 8.904
- Status
- Verkocht
- Bijdrage VvE
- € 174,00 per maand
Bouw
- Soort appartement
- Bovenwoning (appartement)
- Soort bouw
- Bestaande bouw
- Bouwjaar
- 1904
- Soort dak
- Plat dak bedekt met bitumineuze dakbedekking
Oppervlakten en inhoud
- Gebruiksoppervlakten
- Wonen
- 73 m²
- Gebouwgebonden buitenruimte
- 4 m²
- Inhoud
- 261 m³
Indeling
- Aantal kamers
- 3 kamers (2 slaapkamers)
- Aantal badkamers
- 1 badkamer en 1 apart toilet
- Badkamervoorzieningen
- Douche en wastafelmeubel
- Aantal woonlagen
- 1 woonlaag
- Voorzieningen
- Frans balkon, mechanische ventilatie, en natuurlijke ventilatie
- Gelegen op
- 1e woonlaag
Energie
- Energielabel
- Isolatie
- Dubbel glas
- Verwarming
- Cv-ketel
- Warm water
- Cv-ketel
- Cv-ketel
- Remeha (gas gestookt uit 2017, eigendom)
Kadastrale gegevens
- AMSTERDAM T 7138
- Kadastrale kaart
- Eigendomssituatie
- Volle eigendom
Buitenruimte
- Ligging
- Aan drukke weg en in woonwijk
- Balkon/dakterras
- Balkon aanwezig
Parkeergelegenheid
- Soort parkeergelegenheid
- Betaald parkeren en parkeervergunningen
VvE checklist
- Inschrijving KvK
- Ja
- Jaarlijkse vergadering
- Ja
- Periodieke bijdrage
- Ja (€ 174,00 per maand)
- Reservefonds aanwezig
- Ja
- Onderhoudsplan
- Ja
- Opstalverzekering
- Ja
Foto's 40
© 2001-2026 funda







































