
Omschrijving
DE PRINS VAN LAURIER | Een smaakvol appartement van circa 92 vierkante meter, gelegen in het centrum van de stad. De lichte living met open keuken biedt een prettige indeling. Twee ruime slaapkamers, een badkamer met dubbele wastafel en een balkon van circa 6 vierkante meter maken het geheel compleet. Daarnaast beschikt het appartement over een berging van circa 4 vierkante meter op de begane grond. Gelegen op eigen grond, in een verzorgd complex met lift.
De volledige woonbeleving is te ervaren op onze website of download ons magazine. Via onze website kun je ook eenvoudig zelf je bezichtiging inplannen. *See English translation below *
Rondleiding
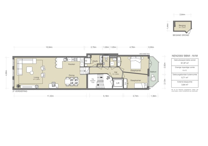
Dit lichte en ruime stadsappartement van circa 92 m² ligt op de tweede verdieping van een modern complex met lift. De royale woonkamer van ca. 45 m² biedt prachtig lichtinval door drie grote ramen aan de gracht en heeft een open keuken met plek voor een grote eettafel. Aan de rustige achterzijde bevinden zich twee goed bemeten slaapkamers met toegang tot het oostelijk gelegen balkon. De nette badkamer beschikt over een inloopdouche en dubbele wastafelmeubel; het toilet is separaat. Het balkon over de volle breedte biedt ochtendzon en uitzicht op de binnentuinen.
Buurtgids
De woning is gelegen in een van de meest charmante en historische buurten van Amsterdam. Deze buurt staat bekend om zijn pittoreske grachten, prachtige architectuur en levendige sfeer. Het is een plek waar geschiedenis, cultuur en hedendaagse trends naadloos samenkomen.
De Prinsengracht zelf is een van de beroemdste grachten van Amsterdam en strekt zich uit door het hart van de stad. Het is omgeven door elegante herenhuizen, sierlijke bruggen en weelderige bomen die een idyllisch decor vormen. Het uitzicht op de gracht is adembenemend en elke dag biedt nieuwe verrassingen.
De buurt rond de woning is ook de thuisbasis van vele iconische bezienswaardigheden. Een daarvan is de Westerkerk, een imposante kerk met een karakteristieke toren die hoog boven de stad uitsteekt. De kerk is niet alleen een architectonisch meesterwerk, maar heeft ook een historische betekenis, omdat de beroemde Nederlandse schilder Rembrandt van Rijn hier begraven ligt.
De omgeving biedt ook een scala aan trendy boetieks, gezellige cafés, restaurants en galeries. Wandelen door de buurt is een ervaring op zich, omdat je wordt omringd door een mix van lokale bewoners, kunstenaars, toeristen en de altijd bruisende sfeer van Amsterdam.
Bijzonderheden
• Gebruiksoppervlakte wonen circa 92 m²
• Prachtig grachtenzicht, hoge plafonds en een balkon op het oosten
• Gelegen op eigen grond
• Complex met lift en aparte berging in de onderbouw
• Energielabel B
• Herbouwd in 2006
• Servicekosten VvE € 169,00 per maand
• Rijksbeschermd stadsgezicht en Onderdeel UNESCO Werelderfgoed
Deze informatie is door ons met de nodige zorgvuldigheid samengesteld. Onzerzijds wordt echter geen enkele aansprakelijkheid aanvaard voor enige onvolledigheid, onjuistheid of anderszins, dan wel de gevolgen daarvan. Alle opgegeven maten en oppervlakten zijn slechts indicatief
De Meetinstructie is gebaseerd op de NEN2580. De Meetinstructie is bedoeld om een meer eenduidige manier van meten toe te passen voor het geven van een indicatie van de gebruiksoppervlakte. De Meetinstructie sluit verschillen in meetuitkomsten niet volledig uit, door bijvoorbeeld interpretatieverschillen, afrondingen of beperkingen bij het uitvoeren van de meting.
----------------------------------------
DE PRINS VAN LAURIER | A tasteful apartment of approximately 92 square metres, situated in the heart of the city. The bright living area with open-plan kitchen offers a well-considered layout. Two spacious bedrooms, a bathroom with double washbasin, and a balcony of approximately 6 square metres complete the ensemble. Additionally, the apartment includes a storage room of approximately 4 square metres on the ground floor. Freehold property, located in a well-maintained complex with lift.
Experience the full impression of this home on our website or download our magazine. You can also easily schedule a viewing via our site.
Tour
This bright and spacious city apartment of approximately 92 square metres is located on the second floor of a modern complex with lift. The generous living room of approximately 45 square metres enjoys beautiful natural light through three large canal-facing windows and features an open-plan kitchen with space for a large dining table. At the peaceful rear, two well-proportioned bedrooms offer access to the east-facing balcony. The well-appointed bathroom is equipped with a walk-in shower and a double washbasin; the toilet is separate. The balcony, spanning the full width, enjoys morning sun and overlooks the inner gardens.
Neighborhood Guide
The apartment is located in one of Amsterdam’s most charming and historic neighborhoods. This area is known for its picturesque canals, stunning architecture, and vibrant atmosphere — a place where history, culture, and modern trends blend effortlessly.
The Prinsengracht itself is one of Amsterdam’s most famous canals, stretching through the heart of the city. It's lined with elegant canal houses, graceful bridges, and lush trees that create a truly idyllic setting. The canal views are breathtaking, offering new impressions each day.
The surrounding area is also home to many iconic landmarks, such as the Westerkerk, a majestic church with a distinctive tower that rises above the city skyline. The church is not only an architectural marvel but also of historical significance, as the famous Dutch painter Rembrandt van Rijn is buried here.
The neighborhood offers a range of trendy boutiques, cozy cafés, restaurants, and galleries. A stroll through the area is an experience in itself, surrounded by a lively mix of locals, artists, visitors, and the ever-present buzz of Amsterdam.
Details
• Residential floor area approximately 92 square metres
• Stunning canal views, high ceilings, and an east-facing balcony
• Freehold property
• Complex with lift and a separate storage room in the basement
• Energy label B
• Reconstructed in 2006
• Owners’ Association service charges € 169.00 per month
• Located within a national protected cityscape and part of the UNESCO World Heritage Site
This information has been compiled by us with due care. However, we accept no liability for any incompleteness, inaccuracies, or otherwise, nor for the consequences thereof. All stated measurements and surface areas are merely indicative.
The Measurement Instruction is based on the NEN2580 standard. The purpose of this instruction is to provide a more uniform method of measuring and to offer an indication of the usable floor area. The Measurement Instruction does not completely eliminate differences in measurement results, for example, due to varying interpretations, rounding, or limitations in conducting the measurement.
Kenmerken
Overdracht
- Laatste vraagprijs
- € 960.000 kosten koper
- Vraagprijs per m²
- € 10.435
- Status
- Verkocht
- Bijdrage VvE
- € 169,00 per maand
Bouw
- Soort appartement
- Tussenverdieping (appartement)
- Soort bouw
- Bestaande bouw
- Bouwjaar
- 2006
Oppervlakten en inhoud
- Gebruiksoppervlakten
- Wonen
- 92 m²
- Gebouwgebonden buitenruimte
- 6 m²
- Externe bergruimte
- 4 m²
- Inhoud
- 255 m³
Indeling
- Aantal kamers
- 3 kamers (2 slaapkamers)
- Aantal badkamers
- 1 badkamer en 1 apart toilet
- Badkamervoorzieningen
- Douche en dubbele wastafel
- Aantal woonlagen
- 1 woonlaag
- Voorzieningen
- Lift, mechanische ventilatie, en TV kabel
- Gelegen op
- 3e woonlaag
Energie
- Energielabel
- Isolatie
- Dubbel glas
- Verwarming
- Cv-ketel
- Warm water
- Cv-ketel
- Cv-ketel
- Remeha Tzerra Ace-Matic 28c CW4 (gas gestookt combiketel uit 2024, eigendom)
Kadastrale gegevens
- AMSTERDAM E 10626
- Kadastrale kaart
- Eigendomssituatie
- Volle eigendom
Buitenruimte
- Ligging
- Aan water en in centrum
- Balkon/dakterras
- Balkon aanwezig
Bergruimte
- Schuur/berging
- Inpandig
- Voorzieningen
- Elektra
Parkeergelegenheid
- Soort parkeergelegenheid
- Betaald parkeren en parkeervergunningen
VvE checklist
- Inschrijving KvK
- Ja
- Jaarlijkse vergadering
- Ja
- Periodieke bijdrage
- Ja (€ 169,00 per maand)
- Reservefonds aanwezig
- Ja
- Onderhoudsplan
- Ja
- Opstalverzekering
- Ja
Foto's 26
© 2001-2026 funda

























