
Omschrijving
DE LICHTE PRINS | Speels en licht appartement verdeeld over twee en een halve woonlaag van circa 112 m². Wonen aan de grachten is voor velen een droom, dit appartement spreekt aan door de locatie, balken en de drie ramen breed aan de grachten. Het appartement is gelegen op eigen grond.
De volledige woonbeleving is te ervaren op onze website of download ons magazine. Hier kun je ook eenvoudig zelf je bezichtiging inplannen. *See English translation below *
Rondleiding
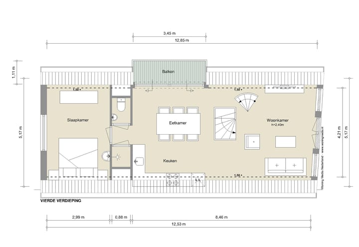
De entree van de woning begint op de tweede etage. Vanuit hier leidt het trappenhuis omhoog naar de woonverdieping op de vierde, waar de ruimte zich opent van gevel tot gevel. Aan de voorzijde kijk je uit over de Prinsengracht. De woonkamer is ruim en licht, met witgeschilderde balken en een houten vloer die warmte toevoegt. De zithoek is gericht op het uitzicht, waardoor de verbinding met buiten altijd voelbaar blijft. In het midden van de ruimte leidt een open trap naar de verdieping erboven, zonder het zicht of de openheid te onderbreken. Aan de achterzijde ligt de eetkamer, met directe toegang tot het zonnige balkon. Brede harmonicadeuren vouwen volledig open, waardoor het terras als vanzelf onderdeel wordt van de woonruimte. De keuken is ingetogen van stijl, helder vormgegeven met strakke lijnen en witte fronten. Een granieten werkblad en inbouwapparatuur maken het geheel compleet.
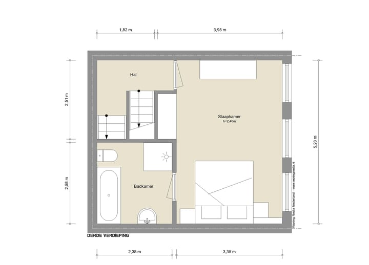
De slaapvertrekken zijn verdeeld over drie niveaus, elk met hun eigen karakter. Op de derde verdieping ligt een royale slaapkamer aan de grachtzijde, met hoge ramen en uitzicht over het water. Deze kamer biedt ruimte aan een bed, werkplek en kleedruimte, en beschikt over een eigen badkamer met ligbad, douche, toilet en wastafel.
De tweede slaapkamer ligt aan de achterzijde van de woonverdieping en is momenteel in gebruik als rustige logeer- of werkkamer. Ook deze kamer heeft een wastafelmeubel. Op dezelfde verdieping is een extra doucheruimte en een separaat toilet aanwezig — functioneel ingepast in de plattegrond.
Bovenin, op de vijfde verdieping, bevindt zich een derde slaapkamer onder het schuine dak. De zichtbare spanten en de hoge nok geven de ruimte karakter. Ingebouwde kasten zorgen voor opbergruimte. Tegenover deze kamer ligt een open werkhoek op vide-niveau, met uitzicht op de verdieping eronder — een plek om je terug te trekken, zonder volledig afgesloten te zijn.
Buurtgids
De woning is gelegen in een van de meest charmante en historische buurten van Amsterdam. Deze buurt staat bekend om zijn pittoreske grachten, prachtige architectuur en levendige sfeer. Het is een plek waar geschiedenis, cultuur en hedendaagse trends naadloos samenkomen.
De Prinsengracht zelf is een van de beroemdste grachten van Amsterdam en strekt zich uit door het hart van de stad. Het is omgeven door elegante herenhuizen, sierlijke bruggen en weelderige bomen die een idyllisch decor vormen. Het uitzicht op de gracht is adembenemend en elke dag biedt nieuwe verrassingen.
De buurt rond de woning is ook de thuisbasis van vele iconische bezienswaardigheden. Een daarvan is de Westerkerk, een imposante kerk met een karakteristieke toren die hoog boven de stad uitsteekt. De kerk is niet alleen een architectonisch meesterwerk, maar heeft ook een historische betekenis, omdat de beroemde Nederlandse schilder Rembrandt van Rijn hier begraven ligt.
De omgeving biedt ook een scala aan trendy boetieks, gezellige cafés, restaurants en galeries. Wandelen door de buurt is een ervaring op zich, omdat je wordt omringd door een mix van lokale bewoners, kunstenaars, toeristen en de altijd bruisende sfeer van Amsterdam.
Bijzonderheden
• Gebruiksoppervlakte wonen circa 112 m²
• Balkon gelegen op het zuiden van circa 4 m²
• Gelegen op eigen grond
• Servicekosten VvE € 150,28 per maand
• Funderingsherstel in de jaren ‘80
• Berging in de onderbouw
• Rijksmonument & Rijksbeschermd stadsgezicht
• Onderdeel UNESCO Werelderfgoed
Kijk voor meer informatie op de website van het Nationaal Monumenten Portaal, Restauratiefonds en Rijksdienst voor het Cultureel Erfgoed met betrekking tot mogelijke subsidies.
Deze informatie is door ons met de nodige zorgvuldigheid samengesteld. Onzerzijds wordt echter geen enkele aansprakelijkheid aanvaard voor enige onvolledigheid, onjuistheid of anderszins, dan wel de gevolgen daarvan. Alle opgegeven maten en oppervlakten zijn slechts indicatief
De Meetinstructie is gebaseerd op de NEN2580. De Meetinstructie is bedoeld om een meer eenduidige manier van meten toe te passen voor het geven van een indicatie van de gebruiksoppervlakte. De Meetinstructie sluit verschillen in meetuitkomsten niet volledig uit, door bijvoorbeeld interpretatieverschillen, afrondingen of beperkingen bij het uitvoeren van de meting.
---------------------------
DE LICHTE PRINS | A playful and light-filled apartment spanning two and a half floors with a living area of approximately 112 square metres.
Canal-side living is a dream for many — this apartment captivates with its location, exposed beams and three windows wide overlooking the canal. The apartment is situated on freehold land.
The full living experience can be explored on our website or by downloading our magazine. Here, it is also easy to schedule a private viewing.
Tour
The entrance to the apartment is on the second floor. From here, the staircase leads to the main living level on the fourth floor, where the space opens up from façade to façade. At the front, the view stretches across the Prinsengracht. The living room is spacious and bright, with whitewashed beams and a wooden floor that adds warmth. The sitting area is oriented towards the view, maintaining a constant connection with the outdoors. In the centre of the space, an open staircase leads to the upper floor without interrupting the sightlines or openness. At the rear, the dining room offers direct access to the sunny balcony. Wide folding doors open completely, allowing the terrace to become a natural extension of the living space.
The kitchen is modest in style, with clean lines and white cabinetry. A granite worktop and built-in appliances complete the ensemble.
The sleeping quarters are spread over three levels, each with its own character. On the third floor, a generous bedroom is situated on the canal side, with tall windows and water views. This room offers space for a bed, desk and dressing area, and features a private bathroom with a bathtub, shower, toilet and washbasin.
A second bedroom is located at the rear of the main living level and is currently in use as a quiet guest or work room. This room also includes a washbasin. On the same floor, there is an additional shower room and a separate toilet — functionally integrated into the floor plan.
At the top, on the fifth floor, a third bedroom sits beneath the sloped roof. Visible trusses and the high ridge lend the space character. Built-in wardrobes provide ample storage. Opposite this room is an open study nook on mezzanine level, overlooking the floor below — a place for retreat without being entirely closed off.
Neighbourhood Guide
The apartment is located in one of Amsterdam’s most charming and historic quarters. This neighbourhood is known for its picturesque canals, beautiful architecture and lively atmosphere — a place where history, culture and contemporary trends converge effortlessly.
The Prinsengracht itself is one of Amsterdam’s most iconic canals, running through the heart of the city. It is lined with elegant townhouses, ornate bridges and lush trees that together form an idyllic setting. The canal view is breathtaking, offering daily moments of wonder.
The area surrounding the apartment is home to many iconic landmarks, including the Westerkerk — a grand church with a distinctive tower rising high above the city. In addition to its architectural allure, the church holds historical significance as the burial site of the famed Dutch painter Rembrandt van Rijn.
The neighbourhood also features a variety of boutique shops, inviting cafés, restaurants and galleries. A stroll through the area offers a rich experience, surrounded by a mix of locals, artists, visitors and the ever-vibrant spirit of Amsterdam.
Details
• Living area of approximately 112 square metres
• South-facing balcony of approximately 4 square metres
• Situated on freehold land
• Monthly owners’ association service charges of €150.28
• Foundation restored in the 1980s
• Storage room in the basement
• National heritage building & listed cityscape
• Part of the UNESCO World Heritage Site
For more information on potential subsidies, visit the websites of the National Monuments Portal, the Restoration Fund and the Cultural Heritage Agency of the Netherlands.
This information has been compiled with the utmost care. However, no liability is accepted for any incompleteness, inaccuracy or otherwise, nor for the consequences thereof. All specified measurements and surface areas are indicative only.
The measurement guidelines are based on the NEN2580 standard. These guidelines aim to provide a uniform method of measuring to give an indication of the usable area. However, differences in outcomes may still occur due to varying interpretations, rounding or practical limitations during the measurement.
Kenmerken
Overdracht
- Laatste vraagprijs
- € 980.000 kosten koper
- Vraagprijs per m²
- € 8.750
- Status
- Verkocht
- Bijdrage VvE
- € 150,28 per maand
Bouw
- Soort appartement
- Bovenwoning (dubbel bovenhuis)
- Soort bouw
- Bestaande bouw
- Bouwjaar
- 1781
- Specifiek
- Beschermd stads- of dorpsgezicht en monument
Oppervlakten en inhoud
- Gebruiksoppervlakten
- Wonen
- 112 m²
- Gebouwgebonden buitenruimte
- 3 m²
- Externe bergruimte
- 3 m²
- Inhoud
- 300 m³
Indeling
- Aantal kamers
- 4 kamers (3 slaapkamers)
- Aantal badkamers
- 1 badkamer en 1 apart toilet
- Badkamervoorzieningen
- Inloopdouche, ligbad, toilet, en wastafel
- Aantal woonlagen
- 3 woonlagen
- Voorzieningen
- Mechanische ventilatie, schuifpui, en TV kabel
- Gelegen op
- 3e woonlaag
Energie
- Energielabel
- Niet verplicht
- Verwarming
- Cv-ketel
- Warm water
- Cv-ketel
- Cv-ketel
- Nefit (gas gestookt combiketel, eigendom)
Kadastrale gegevens
- AMSTERDAM E 9692
- Kadastrale kaart
- Eigendomssituatie
- Volle eigendom
Buitenruimte
- Ligging
- Aan water en in centrum
- Balkon/dakterras
- Dakterras aanwezig en balkon aanwezig
Bergruimte
- Schuur/berging
- Inpandig
Parkeergelegenheid
- Soort parkeergelegenheid
- Betaald parkeren en parkeervergunningen
VvE checklist
- Inschrijving KvK
- Ja
- Jaarlijkse vergadering
- Ja
- Periodieke bijdrage
- Ja (€ 150,28 per maand)
- Reservefonds aanwezig
- Ja
- Onderhoudsplan
- Nee
- Opstalverzekering
- Ja
Foto's 30
© 2001-2025 funda





























