
Omschrijving
HEERLIJK LICHT EN SFEERVOL APPARTEMENT MET VIER SLAAPKAMERS EN EEN STUDIO OP DE VIERDE VERDIEPING, OP EEN TOP LOCATIE IN AMSTERDAM OOST.
Gelegen aan het romantische ’s-Gravesandeplein, aan het Oosterpark, verkopen wij dit unieke appartement, in een schitterend vier ramen breed historisch pand.
INDELING
Via de gemeenschappelijke entree loop je de trap omhoog naar het appartement op de tweede verdieping.
Tweede verdieping; je komt binnen in de hal, met toegang naar de woonkamer aan de voorzijde en een gang naar de achterzijde waar zich drie van de slaapkamers bevinden. Maar eerst gaan we naar de woonkamer aan de voorzijde. Het gaat om een prachtige, ruime woonkamer met open keuken. De woonkamer is drie ramen breed, met prachtige en-suite kasten en schuifdeuren, klassieke schouwen, hoge plafonds en natuurlijk een fantastisch uitzicht op de platanen van het brede ’s-Gravesandeplein. Ook heeft het appartement openslaande deuren naar het gezellige balkon aan de voorzijde.
Aan de achterzijde is de moderne open keuken met eethoek en openslaande deuren naar het balkon. Aangrenzend aan de woonkamer bevindt zich een extra slaap/werkkamer met separaat toilet. Tenslotte hebben we op de tweede verdieping nog een wasmachine/droger ruimte.
Dan gaan we naar de gang, hieraan liggen, verder naar achteren doorlopend drie heerlijke slaapkamers die allen uitzien op de rustige binnentuinen. Tussen de eerste twee slaapkamers bevindt zich de mooie badkamer, met een inloopdouche, dubbele wastafels, vloerverwarming en een toilet. Achterin is de master bedroom, ruim en rustig, met ook prachtige ramen op de binnentuin.
De klasse van het historische gebouw is helemaal benut: het is gewoon prachtig. We tellen nu vier slaapkamers. Maar dan zijn we er nog niet: op de vierde etage is nog een studio met een douche, een wastafel en een toilet. De studio is perfect voor kantoor aan huis en/of gasten. Daarnaast bevindt zich nog een grote berging.
Zelden zien wij zo een goed ingedeeld appartement waardoor de ruimte optimaal benut is. Ook zelden zien we zo’n smaakvol gerenoveerd appartement, waar zoveel gebruik is gemaakt van de historie van het pand. De sfeer is buitengewoon: klassiek, romantisch en stijlvol.
Kom je snel kijken?!
OMGEVING EN BEREIKBAARHEID
De Buurt is natuurlijk fantastisch. Je stapt de deur uit en je bent direct in het Oosterpark, een zeldzame luxe in de stad. De Oosterparkbuurt is een groene woonwijk op een steenworp afstand van de Amstel en het centrum van Amsterdam. Het 's-Gravesandeplein ligt direct aan het Oosterpark en dicht bij alle denkbare voorzieningen, zoals supermarkten, scholen en sportfaciliteiten.Winkelcentrum Oostpoort en de beroemde Dappermarkt liggen op loopafstand van het appartement. Ook vlakbij ligt het Beukenplein, een van de gezelligste pleinen van Amsterdam Oost, waar je fijne plekjes vindt voor koffie, eten of een borrel met vrienden, zoals Massalia, Bar Bukowski, wijnbar Clos en Leo.
De bereikbaarheid is bijzonder goed. Zo stoppen tram 1 en 3 om de hoek en ook de metrostations Weesperplein en Wibautstraat liggen op 5 minuten loopafstand. Het NS station Amsterdam Amstel is slechts 1 metrohalte van het appartement verwijderd. Met de auto bent u via afslag S112 zo op de Ring A-10, A1 en A2. Parkeren gaat middels parkeervergunningen.
EIGENDOM
Het appartementsrecht is gelegen op grond uitgegeven in erfpacht. Het huidig tijdvak is afgekocht en loopt t/m 28 februari 2077. De algemene bepalingen 1994 van de gemeente Amsterdam zijn van toepassing.
BIJZONDERHEDEN
* Top locatie!
* Vijf slaapkamers
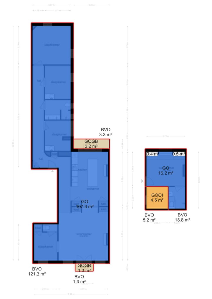
* Woonoppervlakte tweede verdieping 107,30 m2, vierde verdieping 15,20 m2
* Extra berging op de vierde verdieping (4,50 m2), te gebruiken als berging of als aparte ruimte bij de studio
* Gezonde en actieve VvE
* De servicekosten bedragen €251,- per maand
* Erfpacht afgekocht tot 28-02-2077
* Hoge plafonds met authentieke details
* Vrij uitzicht, geen inkijk aan de voor- en achterzijde
* Studio met badkamer op de vierde verdieping met een eigen opgang via het gemeenschappelijke trappenhuis, ideaal voor gasten of een kantoor aan huis
* Voorgevel gerenoveerd in 2023 waarbij alle ramen zijn vervangen voor HR++ glas
* Vloer vorig jaar geschuurd en geolied
* Ouderdomsclausule van toepassing
* Asbest clausule van toepassing
* Oplevering in overleg
BRIGHT AND CHARMING APARTMENT WITH FOUR BEDROOMS, A STUDIO ON THE FOURTH FLOOR, AT A PRIME LOCATION IN AMSTERDAM EAST.
Situated on the romantic ’s-Gravesandeplein, right by the beautiful Oosterpark, we proudly present this unique and spacious apartment, located in a stunning historic building with a striking four-window-wide façade.
LAYOUT
Via the communal entrance, you take the stairs up to the apartment on the second floor.
Second floor:
You enter into a hallway that gives access to the bright living room at the front and a corridor leading to the rear where three of the bedrooms are located. First, let’s head into the living room: a spacious and light-filled space with an open kitchen, three large windows, elegant en-suite cabinets and sliding doors, classic fireplaces, high ceilings, and of course, a beautiful view of the plane trees lining the wide ’s-Gravesandeplein. French doors lead to a charming front balcony.
At the rear, the modern open kitchen with dining area also has French doors leading to another balcony. Adjacent to the living room is an additional bedroom or study, along with a separate toilet. This floor also includes a convenient laundry/storage room.
Following the corridor to the rear, you’ll find three delightful bedrooms, all overlooking the peaceful inner gardens. Between the first two bedrooms is a stylish bathroom featuring a walk-in shower, double washbasin, floorheating and a toilet. At the very back is the serene master bedroom, spacious and bright, with beautiful views over the quiet courtyard.
This apartment makes full use of the charm and class of the historic building – it’s simply stunning. That’s four bedrooms already, but there’s more:
Fourth floor:
Here you’ll find a studio complete with its own shower, washbasin, and toilet, perfect for home office or quests. This floor also offers a large storage room, adding extra practicality to the home.
Rarely do we see an apartment so cleverly laid out, where space is used so efficiently. Even rarer is such a tastefully renovated home where so much of the building’s original character has been preserved. The atmosphere is exceptional: classic, romantic, and elegant.
Come and see it for yourself – you’ll be impressed!
AREA AND ACCESSIBILITY
Step outside and you're immediately in Oosterpark, a rare luxury in the city. The Oosterpark neighborhood is a green residential area just a stone throw away from the Amstel River and the city center of Amsterdam. 's-Gravesandeplein is located right next to Oosterpark and close to all imaginable amenities, such as supermarkets, schools, and sports
facilities. The Oostpoort Shopping Center and the famous Dappermarkt are within walking distance of the apartment. Also nearby is Beukenplein, one of the coziest squares in Amsterdam East, where you can find charming spots for coffee, dining, or drinks with friends, such as Massalia, Bar Bukowski, wine bar Clos, and Leo.
Accessibility is exceptionally good. Tram lines 1 and 3 stop just around the corner, and the Weesperplein and Wibautstraat metro stations are a 5-minute walk away. Amsterdam Amstel train station is only one metro stop away from the apartment. By car, you can quickly access the A-10, A1, and A2 motorways via exit S112. Parking is available through parking permits.
OWNERSHIP
The apartment right is located on leasehold land. The current period has been bought off and runs until February 28, 2077. The general provisions of the Municipality of Amsterdam 1994 apply.
DETAILS
* Prime location in Amsterdam East
* Five bedrooms in total
* Living area: second floor 107.3 m², fourth floor 15.2 m²
* Extra storage on the fourth floor (4,5 m2), can be used as a storage or can become a separate room of the studio
* Healthy and active homeowners’ association (VvE)
* Service charges: €251,00 per month
* Leasehold paid off until 28-02-2077
* High ceilings with charming details
* No overlooking, unobstructed views at the front and rear
* Independant room (incl. bathroom + toilet) upstairs with an independent entrance via the shared staircase, perfect for guests or home office
* Last year the floor has been sanded and oiled
* Age clause applicable
* Front of the building is renovated in 2023 and all windows were fitted with HR++ glass.
* Asbestos clause applicable
* Delivery in consultation
Kenmerken
Overdracht
- Servicekosten
- € 251 per maand
- Laatste vraagprijs
- € 925.000 kosten koper
- Vraagprijs per m²
- € 7.520
- Status
- Verkocht
- Bijdrage VvE
- € 251,00 per maand
Bouw
- Soort appartement
- Bovenwoning (appartement)
- Soort bouw
- Bestaande bouw
- Bouwjaar
- 1903
Oppervlakten en inhoud
- Gebruiksoppervlakten
- Wonen
- 123 m²
- Overige inpandige ruimte
- 5 m²
- Gebouwgebonden buitenruimte
- 5 m²
- Inhoud
- 457 m³
Indeling
- Aantal kamers
- 6 kamers (5 slaapkamers)
- Aantal badkamers
- 2 badkamers en 1 apart toilet
- Badkamervoorzieningen
- Dubbele wastafel, 2 inloopdouches, 2 toiletten, en wastafel
- Aantal woonlagen
- 1 woonlaag
- Gelegen op
- 2e woonlaag
Energie
- Energielabel
- C
- Isolatie
- Gedeeltelijk dubbel glas
- Verwarming
- Cv-ketel
- Warm water
- Cv-ketel
- Cv-ketel
- ATAG (gas gestookt combiketel uit 2016, eigendom)
Kadastrale gegevens
- AMSTERDAM S 9223
- Kadastrale kaart
- Eigendomssituatie
- Gemeentelijk eigendom belast met erfpacht (einddatum erfpacht: 28-02-2077)
- Lasten
- Afgekocht tot 28-02-2077
Buitenruimte
- Ligging
- In woonwijk en vrij uitzicht
- Balkon/dakterras
- Balkon aanwezig
Parkeergelegenheid
- Soort parkeergelegenheid
- Betaald parkeren, openbaar parkeren en parkeervergunningen
VvE checklist
- Inschrijving KvK
- Ja
- Jaarlijkse vergadering
- Ja
- Periodieke bijdrage
- Ja (€ 251,00 per maand)
- Reservefonds aanwezig
- Ja
- Onderhoudsplan
- Ja
- Opstalverzekering
- Ja
Foto's 47
© 2001-2025 funda














































