
Omschrijving
OMSCHRIJVING
Compleet modern en goed ingedeeld 3-kamer appartement met groot dakterras van 26 m2 aan je keuken op een super locatie in de Oosterparkbuurt. Het appartement heeft o.a. een eigen entree, hoge plafonds, 2 slaapkamers, een nieuwe visgraatvloer uit 2022, een mooie door-zon woonkamer waardoor er veel licht in de woning valt en een groots dakterras aan je woonruimte met uitzicht over de groene binnentuin met veel privacy. Naast dit alles is de fundering vernieuwd in 2022!
INDELING
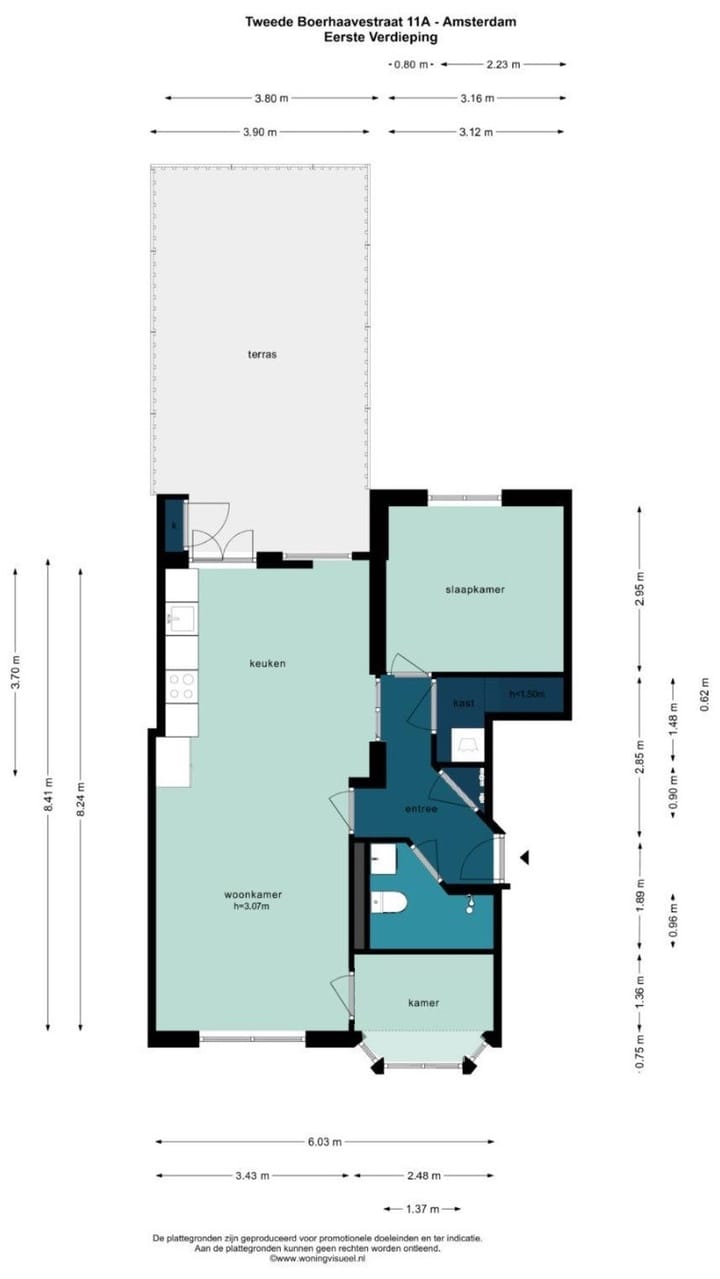
Middels eigen entree toegang tot het appartement op de eerste verdieping. Hal met toegang tot alle vertrekken van het appartement. Lichte en ruime door-zon woonkamer met hoge plafonds en veel ramen. De woonkamer is aan de voorzijde gelegen en de open keuken aan de achterzijde. Door de open verbinding kan je hier lekker tafelen of borrelen met familie en vrienden. Vanuit de keuken heb je openslaande deuren naar het grote dakterras van ca. 26 m2. Het terras is gelegen op het noordwesten en hier heb je heerlijke namiddag/avond zon. Door de grote en groene binnentuin heb je hier veel privacy en is het mooi groen. Ruime slaapkamer aan de achterzijde. Tweede slaapkamer aan de voorzijde, op dit moment in gebruik als babykamer maar dit kan ook een goede werkkamer zijn. De moderne badkamer is gerenoveerd in 2022 en is voorzien van een inloopdouche en wastafel en toilet. Aparte berging kast met de wasmachine aansluiting en ideaal voor extra bergruimte. Het gehele appartement is voorzien van dubbel glas en een mooie visgraat vloer uit 2022.
LIGGING
Gelegen op een super locatie in de Oosterparkbuurt, tussen de Wibautstraat en het Oosterpark. Alle voorzieningen zijn op loopafstand te bereiken zoals winkels, supermarkten, speciaalzaken, delicatessewinkels, lekkere restaurants, gezellige barretjes, koffietentjes en diverse scholen en kinderopvang. In de directe omgeving vindt je o.a. koffiebar Yusu, Five Ways coffeeroasters, Bar Bukowski en vele restaurants zoals restaurant 48/50, Hotel Arena, Bar Clos, de Ysbreeker, het Amstel Hotel en nog veel meer. Links van de woning vindt je de Amstel met de Weesperzijde, rechts van de woning vindt je het Oosterpark. Vanuit de woning kan je eenvoudig en leuk wandelen richting de Pijp, de Utrechtsestraat en de Plantagebuurt. Om de hoek bevindt zich de tram en de metrohalte Weesperplein of Wibautstraat. Met de auto is de woning eenvoudig te bereiken via de Wibautstraat.
BIJZONDERHEDEN
- Moderne afwerking, direct te betrekken;
- groot dakterras aan je woonkamer;
- Nieuwe fundering uit 2022;
- Eigen entree dus geen gemeenschappelijk trappenhuis;
- Servicekosten € 126,70,- per maand;
- De VvE wordt professioneel beheerd door VvE NL, ze hebben een MJOP;
- Kasreserve per mei 2025 is ca. € 47.000,-
- Geheel voorzien van dubbel glas, de VvE is op dit moment bezig met de aanpak voor het compleet vernieuwen en vervangen van de kozijnen met HR+++ glas;
- Gelegen op gemeentelijke erfpachtgrond, jaarlijkse canon € 387,61 (jaarlijkse indexatie) t/m 31 juli 2044, het eeuwigdurende tijdvak is onder de gunstige voorwaarden vastgeklikt en wordt € 679,69 vanaf 1 augustus 2044 (inflatie vanaf heden);
- Energielabel C;
- Oplevering in overleg;
*** English translation
DESCRIPTION
Completely modern and well-laid-out 2-bedroom apartment with a large 26 m² rooftop terrace off directly next to the living area, located on a prime location in the Oosterpark neighborhood. The apartment features a private entrance, high ceilings, 2 bedrooms, a new herringbone floor (2022), a beautiful sunny living room allowing plenty of natural light, and a spacious rooftop terrace with views over the green and private courtyard garden. Additionally, the foundation was renewed in 2022!
LAYOUT
The private entrance gives you access to the apartment on the first floor. Hallway with access to all rooms. Bright and spacious sunny living room with high ceilings and many windows. The living area is located at the front, with the open kitchen at the rear. The open-plan layout makes it perfect for dining or enjoying drinks with family and friends. Double doors from the kitchen open onto the large rooftop terrace of approx. 26 m², facing northwest—ideal for enjoying the afternoon/evening sun. Overlooking the large, green courtyard garden, the terrace offers lots of privacy because the green courtyard.
The spacious master bedroom is located at the rear. The second bedroom is at the front and is currently used as a nursery, but it could also serve well as a home office. The modern bathroom, renovated in 2022, features a walk-in shower, sink, and toilet. There is also a separate utility/storage closet with washing machine connection and extra storage space. The entire apartment has double glazing and a beautiful herringbone floor installed in 2022.
LOCATION
Superbly located in the Oosterparkbuurt, between Wibautstraat and Oosterpark. All amenities are within walking distance, including shops, supermarkets, specialty stores, delicatessens, great restaurants, cozy bars, coffe spots, schools, and childcare facilities. Nearby you'll find coffee bar Yusu, Five Ways Coffee Roasters, Bar Bukowski, and many restaurants like Restaurant 48/50, Hotel Arena, Bar Clos, De Ysbreeker, the Amstel Hotel, and more. To the left of the apartment is the Amstel River with the Weesperzijde, and to the right is the Oosterpark. From the apartment, you can easily walk to De Pijp, Utrechtsestraat, and the Plantage neighborhood. Tram and metro stops (Weesperplein or Wibautstraat) are just around the corner. The apartment is also easily accessible by car via Wibautstraat.
SPECIFICATIONS
- Modern finish, move-in ready;
- Large rooftop terrace directly next to the living area;
- New foundation (2022);
- Private entrance, no shared stairwell;
- Monthly service charges: €126,70;
- Professionally managed homeowners’ association (VvE NL) with a multiyear maintenance plan;
- VvE reserve fund (as of May 2025): approx. €47.000,-;
- Fully double glazed; the VvE is currently working on replacing all window frames with HR+++ glass;
- Located on municipal leasehold land, annual ground rent: €387,61 (indexed annually) until July 31, 2044. The perpetual lease has been secured under favorable conditions and will be €679,69 from August 1, 2044 (adjusted for inflation from now on);
- Energy label C;
- Transfer in consultation.
Kenmerken
Overdracht
- Laatste vraagprijs
- € 500.000 kosten koper
- Vraagprijs per m²
- € 9.259
- Status
- Verkocht
- Bijdrage VvE
- € 126,70 per maand
Bouw
- Soort appartement
- Tussenverdieping (appartement)
- Soort bouw
- Bestaande bouw
- Bouwjaar
- 1924
Oppervlakten en inhoud
- Gebruiksoppervlakten
- Wonen
- 54 m²
- Gebouwgebonden buitenruimte
- 26 m²
- Inhoud
- 217 m³
Indeling
- Aantal kamers
- 3 kamers (2 slaapkamers)
- Aantal badkamers
- 1 badkamer
- Badkamervoorzieningen
- Inloopdouche, toilet, wastafel, en wastafelmeubel
- Aantal woonlagen
- 1 woonlaag
- Voorzieningen
- Natuurlijke ventilatie en TV kabel
- Gelegen op
- 1e woonlaag
Energie
- Energielabel
- C
- Isolatie
- Dubbel glas en vloerisolatie
- Verwarming
- Cv-ketel
- Warm water
- Cv-ketel
- Cv-ketel
- Remeha Avanta (gas gestookt combiketel, eigendom)
Kadastrale gegevens
- AMSTERDAM S 9848
- Kadastrale kaart
- Eigendomssituatie
- Gemeentelijk eigendom belast met erfpacht
- Lasten
- € 387,61 per jaar
Buitenruimte
- Ligging
- Aan rustige weg en in woonwijk
- Tuin
- Zonneterras
- Zonneterras
- 26 m² (6,70 meter diep en 3,90 meter breed)
- Ligging tuin
- Gelegen op het noordwesten
- Balkon/dakterras
- Dakterras aanwezig
Parkeergelegenheid
- Soort parkeergelegenheid
- Betaald parkeren en parkeervergunningen
VvE checklist
- Inschrijving KvK
- Ja
- Jaarlijkse vergadering
- Ja
- Periodieke bijdrage
- Ja (€ 126,70 per maand)
- Reservefonds aanwezig
- Ja
- Onderhoudsplan
- Ja
- Opstalverzekering
- Ja
Foto's 25
© 2001-2025 funda
























