
Omschrijving
*** This Property is listed by a MVA Certified Expat Broker***
***English text below***
Wonen in de bruisende Pijp op eigen grond en met een balkon gelegen op het zuiden? Dat kan op de Van Ostadestraat 110-D!
Dit appartement bevindt zich op de derde verdieping en heeft een woonoppervlakte van 42 m2. De ligging is perfect met nabijgelegen diverse winkels, horeca en openbaar vervoer aansluitingen.
OMGEVING
Het appartement ligt aan de Van Ostadestraat, midden in de populaire wijk De Pijp. Op slechts een paar minuten lopen bevindt zich het Sarphatipark en het Marie-Heinekenplein, evenals de vele winkels, boetiekjes, supermarkten, sportscholen en delicatessezaken.
In de directe omgeving zijn er ook volop gezellige uitgaansgelegenheden zoals brasserie Lolita, Arie in de pijp, Joe en the Juice, bar Bellini en het Paardje. Daarnaast zijn de Grachtengordel en het Leidseplein snel bereikbaar.
BEREIKBAARHEID
Het appartement is uitstekend bereikbaar middels zowel het openbaar vervoer als de auto.
Met de auto bent u binnen 10 minuten op de Ring A-10 (afslag S109).
De metro- en tramhalte De Pijp zijn op 1 minuut lopen gelegen van het appartement (Tram 3,12 en 24 en Metro 52 / Noord-Zuid lijn).
Op de openbare weg is het betaald parkeren van ma. t/m za. van 09.00 uur tot 00.00 uur en op zondag van 12.00 uur tot 00.00 uur. Op dit moment is er geen wachtlijst voor het aanvragen van een parkeervergunning.
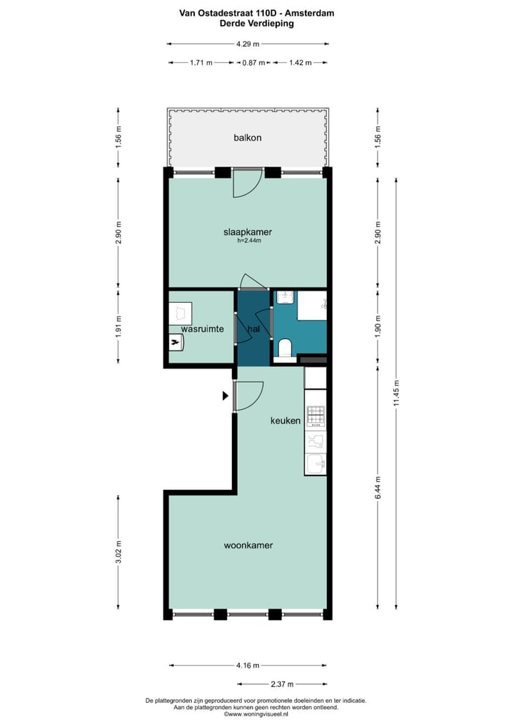
INDELING
Entree op de derde verdieping met directe toegang tot de woon-/eetkamer met de keuken. De keuken beschikt over genoeg kastruimte, een vaatwasser, een oven, gaskookplaat en een koel-/vriescombinatie (3 vrieslades).
De woonkamer heeft veel lichtinval door de grote raampartijen.
Aan de achterzijde van het appartement zijn zowel de slaapkamer als de badkamer gelegen. De badkamer is voorzien van een toilet, douche en een wastafel. Tegenover de badkamer bevindt zich de wasruimte. Naast een wasmachine en droger staat zich hier ook de C.V. ketel opgesteld en is er nog plaats voor diverse opslag.
De slaapkamer is ruim en biedt naast het bed ook nog plaats voor een bureau of extra kastruimte.
Vanuit de slaapkamer is royale balkon gelegen op het zuiden bereikbaar.
VERENIGING VAN EIGENAARS
De vereniging van eigenaars wordt professioneel beheerd. Alle documenten zijn aanwezig zoals o.a. notulen en de jaarrekeningen. De servicekosten bedragen € 91,73 per maand.
ENERGIELABEL/ERFPACHT
Het appartement beschikt over een energielabel A, geldig tot en met 03-11-2032, is gelegen op EIGEN GROND. GEEN ERFPACHT!
BIJZONDERHEDEN
- Gelegen in de bruisende Pijp;
- Gelegen op eigen grond, GEEN ERFPACHT;
- Balkon gelegen op het zuiden;
- Ruime woonkamer;
- Woonoppervlakte 42 m2 (conform NEN 2580 meetrapport);
- Wasruimte met gelegenheid voor extra opslag;
- Professionele VvE bestaande uit 5 leden, beheerd door Delair vastgoed;
- Servicekosten: € 91,73 per maand;
- Energielabel A, geldig tot en met 03-11-2032;
- In de koopovereenkomst wordt een niet-zelfbewoningsclausule, een asbest-clausule en een ouderdomsclausule opgenomen;
- Oplevering kan snel.
Heeft u interesse in deze woning, maak dan een afspraak via ons kantoor - telefoonnummer 020-6240363 of e-mail
Deze informatie is door ons met de nodige zorgvuldigheid samengesteld. Onzerzijds wordt echter geen enkele aansprakelijkheid aanvaard voor enige onvolledigheid, onjuistheid of anderszins, dan wel de gevolgen daarvan. Alle opgegeven maten en oppervlakten zijn indicatief. Koper heeft zijn eigen onderzoeksplicht naar alle zaken die voor hem of haar van belang zijn. Met betrekking tot deze woning is de makelaar adviseur van verkoper. Wij adviseren u een deskundige (NVM-)makelaar in te schakelen die u begeleidt bij het aankoopproces. Indien u specifieke wensen heeft omtrent de woning, adviseren wij u deze tijdig kenbaar te maken aan uw aankopend makelaar en hiernaar zelfstandig onderzoek te (laten) doen. Indien u geen deskundige vertegenwoordiger inschakelt, acht u zich volgens de wet deskundige genoeg om alle zaken die van belang zijn te kunnen overzien.
_________________
Living in the vibrant Pijp on your own land with a south-facing balcony? That’s possible at Van Ostadestraat 110-D! This apartment is located on the third floor and has a living area of 42 m². The location is perfect, with various shops, restaurants and public transport connections nearby.
SURROUNDINGS
The apartment is situated on Van Ostadestraat, right in the popular De Pijp neighborhood. Just a few minutes walk away are Sarphatipark and Marie-Heinekenplein, as well as many shops, boutiques, supermarkets, gyms and delicatessens.
In the immediate vicinity, you’ll also find plenty of cozy entertainment options such as brasserie Lolita, Arie in de Pijp, Joe and the Juice, bar Bellini, and Het Paardje. Additionally, the Canal Belt and Leidseplein are quickly accessible.
ACCESSIBILITY
The apartment is easily reachable by both public transport and car. By car, you can be on the Ring A-10 (exit S109) within 10 minutes. The metro and tram stop De Pijp is just a 1-minute walk from the apartment (Tram 3, 12, and 24 and Metro 52 / North-South line).
On the public road, paid parking is in effect from Monday to Saturday from 9:00 AM to midnight, and on Sunday from noon to midnight. Currently, there is no waiting list for applying for a parking permit.
LAYOUT
Entrance on the third floor with direct access to the living/dining area with the kitchen. The kitchen has ample cupboard space, a dishwasher, an oven, a gas stove, and a refrigerator/freezer combination (3 freezer drawers). The living room has plenty of natural light due to the large windows.
At the rear of the apartment are both the bedroom and the bathroom. The bathroom is equipped with a toilet, shower, and sink. Opposite the bathroom is the laundry area, which also houses the boiler and offers additional storage space.
The bedroom is spacious and provides room for a desk or extra storage besides the bed. From the bedroom, you can access the generous south-facing balcony.
OWNERS' ASSOCIATION
The owners association is professionally managed. All documents are available, including minutes and financial statements. The service costs are € 91.73 per month.
ENERGY LABEL/GROUND LEASE
The apartment has an energy label A, valid until 03-11-2032, and is situated on FREEHOLD LAND. NO GROUND LEASE!
SPECIAL FEATURES
- Located in the vibrant Pijp;
- Situated on private land, NO GROUND LEASE!
- South-facing balcony;
- Spacious living room;
- Living area of 42 m² (according to NEN 2580 measurement report);
- Laundry room with opportunity for extra storage;
- Professional HOA consisting of 5 members, managed by Delair Real Estate;
- Service costs: € 91.73 per month;
- Energy label A, valid until 03-11-2032;
- The purchase agreement will include a non-self-occupancy clause, an asbestos clause, and an age clause;
- Quick delivery possible.
If you are interested in this property, please make an appointment through our office - phone number 020-6240363 or email
This information has been compiled with due care. However, we accept no liability for any incompleteness, inaccuracies, or otherwise, or the consequences thereof. All specified dimensions and areas are indicative. The buyer has an obligation to conduct their own research on all matters that are important to them. Regarding this property, the agent acts as the advisor for the seller. We advise you to engage a qualified (NVM) real estate agent to assist you in the purchasing process. If you have specific wishes regarding the property, we recommend that you communicate these to your buying agent in a timely manner and conduct independent research accordingly. If you do not engage a qualified representative, you consider yourself knowledgeable enough under the law to oversee all matters of importance.
Kenmerken
Overdracht
- Servicekosten
- € 92 per maand
- Laatste vraagprijs
- € 385.000 kosten koper
- Vraagprijs per m²
- € 9.167
- Status
- Verkocht
- Bijdrage VvE
- € 91,73 per maand
Bouw
- Soort appartement
- Bovenwoning (appartement)
- Soort bouw
- Bestaande bouw
- Bouwjaar
- 1889
- Soort dak
- Plat dak bedekt met bitumineuze dakbedekking
Oppervlakten en inhoud
- Gebruiksoppervlakten
- Wonen
- 42 m²
- Gebouwgebonden buitenruimte
- 7 m²
- Inhoud
- 132 m³
Indeling
- Aantal kamers
- 2 kamers (1 slaapkamer)
- Aantal badkamers
- 1 badkamer
- Badkamervoorzieningen
- Douche, toilet, en wastafel
- Aantal woonlagen
- 1 woonlaag
- Voorzieningen
- Frans balkon en TV kabel
- Gelegen op
- 4e woonlaag
Energie
- Energielabel
- A
- Isolatie
- Dubbel glas
- Verwarming
- Cv-ketel
- Warm water
- Cv-ketel
- Cv-ketel
- Intergas Kombi Kompakt (gas gestookt combiketel uit 2005, eigendom)
Kadastrale gegevens
- AMSTERDAM V 10954
- Kadastrale kaart
- Eigendomssituatie
- Volle eigendom
Buitenruimte
- Balkon/dakterras
- Balkon aanwezig
Parkeergelegenheid
- Soort parkeergelegenheid
- Betaald parkeren, openbaar parkeren en parkeervergunningen
VvE checklist
- Inschrijving KvK
- Ja
- Jaarlijkse vergadering
- Ja
- Periodieke bijdrage
- Ja (€ 91,73 per maand)
- Reservefonds aanwezig
- Ja
- Onderhoudsplan
- Ja
- Opstalverzekering
- Ja
Foto's 20
© 2001-2025 funda



















