
Wolbrantskerkweg 110-F1069 DA AmsterdamZuidwestkwadrant-Noord
€ 525.000 k.k.
Omschrijving
U HEEFT EEN OBJECTCODE NODIG ALS U ONS BELT. DE CODE IS: 8 5 4 2 6
Ruim 4-kamerappartement met prachtig uitzicht in Amsterdam
Op de achtste verdieping van een goed onderhouden complex bevindt zich dit royale 4-kamerappartement van maar liefst 132 m². Dankzij de hoge ligging geniet je hier van een schitterend uitzicht over de stad. De locatie is bijzonder centraal en uitstekend bereikbaar. Diverse tram- en buslijnen liggen op loopafstand, en met de auto ben je binnen enkele minuten op de A4, A9 of A10. Ideaal voor wie zowel de stad als de regio wil verkennen. Voor ontspanning en natuur ligt het recreatiegebied Sloterplas om de hoek - een heerlijke plek om te wandelen, picknicken of in de zomer een frisse duik te nemen in het Sloterparkbad. Cultuurliefhebbers kunnen terecht bij theater De Meervaart, en voor de dagelijkse boodschappen biedt het Osdorpplein een breed aanbod aan winkels en voorzieningen.
Indeling
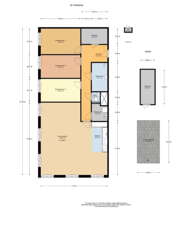
Je betreedt deze woning op de achtste etage via de ruime (13 m2) L-vormige entree/hal. Direct aan je rechterhand is een inpandige berging (5 m2). Daarnaast bevinden zich de drie slaapkamers op een rij. Aan je linkerhand is de badkamer voorzien van wastafel en douche. Daarnaast het aparte toilet. Aan het einde van de lange hal rechts is nog een waskamer (3 m2). Loop je door in de lange hal dan kom je in de woonkamer (52 m2) met open keuken. Op de begane grond is nog een eigen berging. De bijbehorende parkeerplaats bevindt zich in de parkeergarage.
Projectnotaris
Notariskantoor KB Notarissen
Voorbehoud
Verkoop geschiedt onder voorbehoud gunning verkoper.
Bijzonderheden:
- Erfpacht afgekocht tot en met 15-06-2052
- Watermeter aanwezig
- Blokverwarming
- Open keuken met inbouwapparatuur (koel/vriescombinatie; elektrische kookplaat en oven; vaatwasmachine). Verkoopster verleent geen garantie op de inbouwapparatuur.
- Mechanische ventilatie
- Videofooninstallatie aanwezig
- Voorschot stookkosten € 86,55
-VvE bijdrage woning in 2026 € 278,36
- VvE bijdrage parkeerplaats € 53,65 (2025) en € 63,96 (2026)
- De omschreven inpandige serre in akte van splitsing en op de tekening is niet aanwezig. Verkoopster onderneemt hierop geen actie.
- Er geldt een zelfbewoningsclausule voor 2 jaar.
- Er zal een niet-bewonersclausule in de koopovereenkomst worden opgenomen.
- VvE Bijdrage 2026 woning en parkeerplaats € 342,32
Kenmerken
Overdracht
- Aangeboden sinds
- Aanvaarding
- In overleg
- Vraagprijs
- € 525.000 kosten koper
- Vraagprijs per m²
- € 4.038
- Status
- Beschikbaar
- Bijdrage VvE
- € 342,00 per maand
Bouw
- Soort appartement
- Portiekwoning
- Soort bouw
- Bestaande bouw
- Bouwjaar
- 2005
Oppervlakten en inhoud
- Gebruiksoppervlakten
- Wonen
- 130 m²
- Inhoud
- 342 m³
Indeling
- Aantal kamers
- 4 kamers (3 slaapkamers)
- Aantal woonlagen
- 1 woonlaag
Energie
- Energielabel
- A
Kadastrale gegevens
- SLOTEN NOORD-HOLLAND E 7109
- Kadastrale kaart
- Eigendomssituatie
- Eigendom belast met erfpacht
- Lasten
- Afgekocht tot 16-06-2052
VvE checklist
- Inschrijving KvK
- Nee
- Jaarlijkse vergadering
- Nee
- Periodieke bijdrage
- Ja (€ 342,00 per maand)
- Reservefonds aanwezig
- Nee
- Onderhoudsplan
- Nee
- Opstalverzekering
- Nee
Foto's 37
Plattegronden
© 2001-2025 funda





































