Dit huis op Funda: https://www.funda.nl/detail/koop/amsterdam/huis-bloemgracht-98/43202766/

Bloemgracht 981015 TN AmsterdamBloemgrachtbuurt
€ 3.100.000 k.k.
Omschrijving
(English below)
Een monumentale kans midden in de Jordaan
Droomt u van een uniek project in hartje Amsterdam? Dan is dit uw moment. Aan de sfeervolle Bloemgracht bieden wij een zeldzaam object aan: een voormalig kerkgebouw uit 1880, boordevol karakter, met monumentale allure én een scala aan gebruiksmogelijkheden.
Deze indrukwekkende locatie biedt de mogelijkheid om een iconisch pand te transformeren tot een fantastisch woon-/werkverblijf met internationale allure. De bestemming GD1 (gemengd gebruik) maakt diverse invullingen mogelijk: van exclusieve loftwoning tot representatief kantoor of een combinatie van beide.
De belangrijkste troeven:
• Monumentaal kerkgebouw (1880) met authentieke details
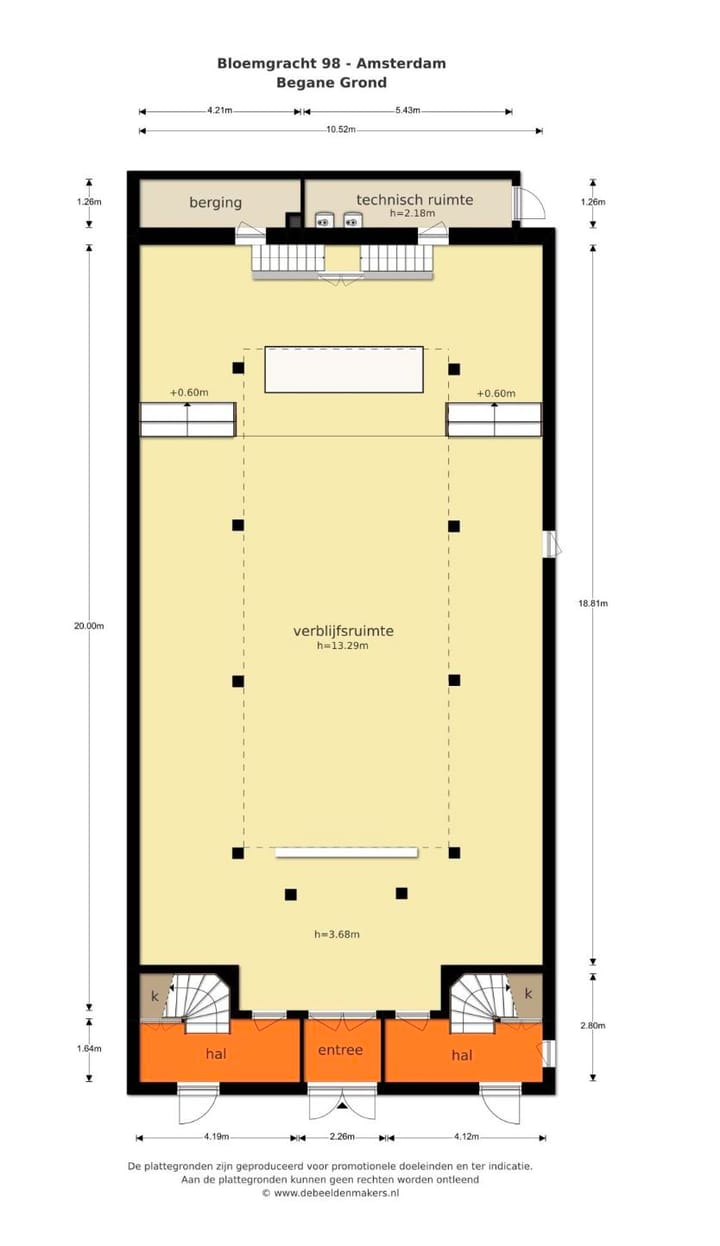
• Circa 500 m² GO realiseerbaar na herontwikkeling
• Indrukwekkende vide en vrije hoogte van 13,5 meter op de begane grond
• Ruimtelijke indeling met grote zaal van 10,5 meter breed en 22,5 meter diep
• Inclusief unieke buitenruimtes – een zeldzaamheid in de Jordaan
• Optimalisatiestudie van een gerenommeerd architect beschikbaar bij bezichtiging
• Object gelegen op eigen grond
Technische specificaties:
• BVO: 476 m² (NEN 2580)
• VVO: 373 m²
• Inhoud: ca. 2.780 m³
Op de foto's ziet u een inspirerende impressie van een mogelijke invulling van dit unieke gebouw.
Dit is geen standaard vastgoedaanbod, maar een kans om geschiedenis te schrijven. Maak van deze monumentale kerk uw persoonlijke icoon in het bruisende hart van Amsterdam.
Interesse? Neem contact met ons op voor meer informatie of het inplannen van een bezichtiging. De bijbehorende architectenstudie is exclusief beschikbaar voor serieuze geïnteresseerden.
-------------
A Monumental Opportunity in the Heart of the Jordaan
Are you dreaming of a unique project in the vibrant center of Amsterdam? This is your moment. On the charming Bloemgracht, we proudly offer a rare property: a former church building dating back to 1880, full of character, monumental grandeur, and a wide range of potential uses.
This extraordinary location presents the opportunity to transform an iconic building into a remarkable residential and/or commercial space with international allure. The GD1 zoning (mixed-use) allows for various possibilities: from an exclusive loft-style residence to a prestigious office, or a combination of both.
Key highlights:
Monumental church building (1880) with authentic details
Approx. 500 m² GFA (Gross Floor Area) possible after redevelopment
Impressive atrium with a ceiling height of 13.5 meters on the ground floor
Spacious layout with a grand hall measuring 10.5 meters wide and 22.5 meters deep
Includes rare outdoor spaces – a true luxury in the Jordaan
Optimization study by a renowned architect available upon viewing
Freehold property (no leasehold)
Technical specifications:
GFA: 476 m² (NEN 2580)
Usable floor area: 373 m²
Volume: approx. 2,780 m³
The images show an inspiring impression of one of the many possibilities for repurposing this unique building.
This is not your typical real estate offering – it’s a once-in-a-lifetime opportunity to create something truly iconic in a historic and lively part of Amsterdam.
Interested? Please contact us for more information or to schedule a private viewing. The architectural study is available exclusively to serious prospective buyers.
Kenmerken
Overdracht
- Aangeboden sinds
- Aanvaarding
- In overleg
- Vraagprijs
- € 3.100.000 kosten koper
- Vraagprijs per m²
- € 6.200
- Status
- Beschikbaar
Bouw
- Soort woonhuis
- Grachtenpand, tussenwoning
- Soort bouw
- Bestaande bouw
- Bouwjaar
- 1880
Oppervlakten en inhoud
- Gebruiksoppervlakten
- Wonen
- 500 m²
- Gebouwgebonden buitenruimte
- 90 m²
- Perceel
- 278 m²
- Inhoud
- 2.780 m³
Indeling
- Aantal kamers
- 6 kamers (4 slaapkamers)
- Aantal woonlagen
- 3 woonlagen
Energie
- Energielabel
- Niet beschikbaar
Kadastrale gegevens
- AMSTERDAM L 4304
- Kadastrale kaart
- Oppervlakte
- 278 m²
- Eigendomssituatie
- Volle eigendom
Buitenruimte
- Tuin
- Zonneterras
- Zonneterras
- 0,36 meter diep en 0,03 meter breed
Parkeergelegenheid
- Soort parkeergelegenheid
- Betaald parkeren en parkeervergunningen
Foto's 23
© 2001-2026 funda






















