Dit huis op Funda: https://www.funda.nl/detail/koop/amsterdam/huis-cruquiuskade-6/89345160/

Cruquiuskade 61018 AP AmsterdamCzaar Peterbuurt
€ 650.000 k.k.
Omschrijving
Wonen op het water met uitzicht op molen De Gooyer – unieke woonboot aan de Cruquiuskade
Cruquiuskade 6, Amsterdam
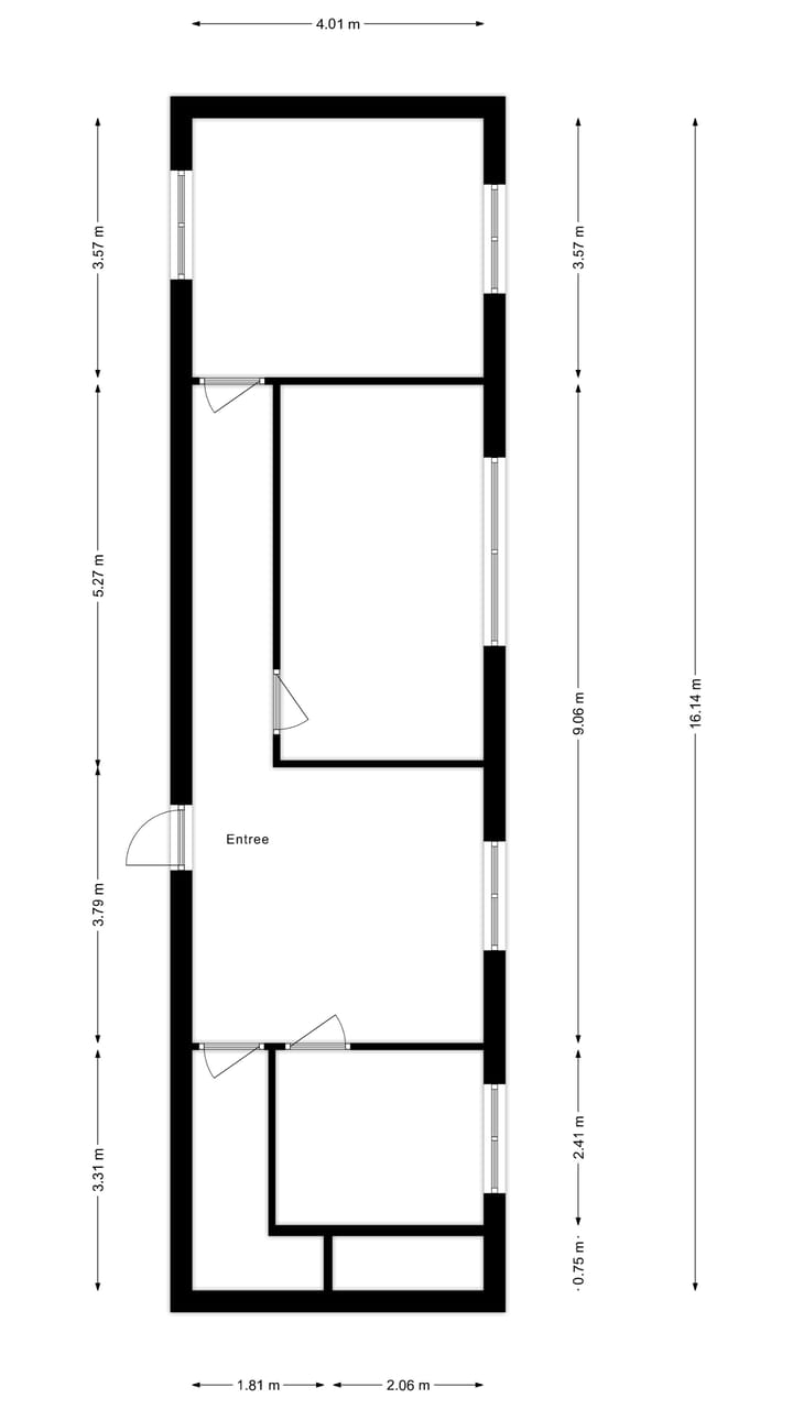
Woonoppervlakte: 65 m²
Altijd al willen wonen op het water, maar toch midden in de stad? Deze karakteristieke woonboot aan de Cruquiuskade maakt het mogelijk. Met een ruim woonoppervlak van 65 m², een sfeervolle indeling, prachtig uitzicht op molen De Gooyer én een fantastische ligging aan het water in het geliefde Oostelijk Havengebied, is dit een plek om direct verliefd op te worden.
Een toplocatie in balans
De Cruquiuskade ligt op een rustige, groene strook aan het water, met aan de overkant het iconische brouwerijcomplex van Brouwerij ’t IJ en molen De Gooyer. Hier woon je in alle rust, maar heb je het centrum van Amsterdam op vijf fietsminuten afstand. Je loopt zo naar de gezellige Czaar Peterstraat vol boetiekjes, koffietentjes en restaurants. Ook het Oosterpark, het Marineterrein, de Dappermarkt, Artis en de Plantagebuurt liggen op korte loopafstand.
Uitstekende OV-verbindingen (tram 7, 14 en 26, buslijnen en nabijheid van station Amsterdam Muiderpoort en Centraal Station) maken deze locatie bovendien perfect bereikbaar – ook zonder auto.
De woonboot zelf
De woonboot heeft een warm en ruimtelijk interieur met veel natuurlijk lichtinval. De woonkamer biedt directe blik op het water en op de molen – een uitzicht waar je nooit op uitgekeken raakt. De open keuken is voorzien van inbouwapparatuur en biedt genoeg ruimte om te koken en te eten. Daarnaast zijn er een ruime slaapkamer, nette badkamer en extra kamer aanwezig die gebruikt kan worden als werkruimte, logeerkamer of berging.
Buiten is er voldoende mogelijkheid om aan het dek te zitten, een kop koffie te drinken in de zon of de eenden te voeren aan het water.
Kenmerken
Woonoppervlak: 65 m²
Vrij uitzicht op molen De Gooyer en het water
Ligplaatsvergunning aanwezig
Goede staat van onderhoud
Rustige ligging in bruisend stadsdeel
Alles op loopafstand: winkels, horeca, parken en cultuur
Goede OV- en fietsverbindingen
Een zeldzaam aanbod op een droomlocatie
Deze woonboot biedt een zeldzame kans om te wonen op het water met alle luxe van de stad binnen handbereik. Perfect voor wie houdt van karakter, rust en het ritme van de gracht – met elke dag het mooiste uitzicht van Amsterdam.
Geïnteresseerd? Neem contact op voor een bezichtiging.
___________________________________________________________________
Living on the water with a view of the De Gooyer windmill – unique houseboat on the Cruquiuskade
Cruquiuskade 6, Amsterdam
Living area: 65 m²
Have you always dreamed of living on the water, right in the heart of the city? This charming houseboat on Cruquiuskade makes that dream a reality. With 65 m² of living space, a bright and welcoming layout, a stunning view of the iconic De Gooyer windmill, and a prime waterside location in the popular Eastern Docklands, this is a home to fall in love with instantly.
A perfectly balanced location
Cruquiuskade is a quiet, green stretch along the water, directly facing the iconic Brouwerij ’t IJ and the De Gooyer windmill. Here, you can enjoy the peace and space of the water, while the city center is just a 5-minute bike ride away. The lively Czaar Peterstraat with its boutiques, cafés, and restaurants is around the corner. The Oosterpark, Marineterrein, Dappermarkt, Artis Zoo, and the Plantage district are all within easy walking distance.
Public transport connections are excellent (tram lines 7, 14, and 26, nearby bus lines, and close to both Amsterdam Muiderpoort and Central Station), making this location ideal—even without a car.
About the houseboat
Inside, the houseboat offers a warm and airy atmosphere, with large windows that bring in plenty of natural light. The living room provides a direct view of the water and the historic windmill—an ever-changing backdrop that never gets old. The open kitchen is well-equipped with built-in appliances and offers plenty of space for cooking and dining. The boat also features a spacious bedroom, a well-kept bathroom, and an extra room that can be used as a home office, guest room, or storage.
Outside, there’s ample space on deck to sit, enjoy a coffee in the sun, or feed the ducks passing by.
Key features
Living area: 65 m²
Direct view of the De Gooyer windmill and the water
Residential mooring permit in place
Well-maintained condition
Peaceful location in a vibrant part of the city
Walking distance to shops, restaurants, parks, and culture
Excellent access to public transport and cycling routes
A rare opportunity in a dream location
This houseboat offers a rare chance to live on the water with all the luxuries of the city within reach. Perfect for those who love character, calm, and the rhythm of the canal—combined with one of Amsterdam’s most beautiful views.
Interested? Contact us to schedule a viewing.
Kenmerken
Overdracht
- Aangeboden sinds
- Aanvaarding
- In overleg
- Vraagprijs
- € 650.000 kosten koper
- Vraagprijs per m²
- € 10.000
- Status
- Beschikbaar
Bouw
- Soort woonhuis
- Woonboot, vrijstaande woning
- Soort bouw
- Bestaande bouw
- Bouwjaar
- 1981
- Soort dak
- Plat dak bedekt met bitumineuze dakbedekking
Oppervlakten en inhoud
- Gebruiksoppervlakten
- Wonen
- 65 m²
- Perceel
- 77 m²
- Inhoud
- 223 m³
Indeling
- Aantal kamers
- 3 kamers (2 slaapkamers)
- Aantal badkamers
- 1 badkamer en 1 apart toilet
- Badkamervoorzieningen
- Douche en wastafel
- Aantal woonlagen
- 1 woonlaag
Energie
- Energielabel
- Niet beschikbaar
- Isolatie
- Dubbel glas en volledig geïsoleerd
- Verwarming
- Cv-ketel
- Warm water
- Cv-ketel
- Cv-ketel
- ATAG ( combiketel uit 2020)
Kadastrale gegevens
- AMSTERDAM A 7172
- Kadastrale kaart
- Oppervlakte
- 77 m²
- Eigendomssituatie
- Volle eigendom
Buitenruimte
- Ligging
- Aan park, aan vaarwater, aan water, in centrum, open ligging en vrij uitzicht
Foto's 29
© 2001-2025 funda




























