Dit huis op Funda: https://www.funda.nl/detail/koop/amsterdam/huis-krom-boomssloot-65/43033440/

Krom Boomssloot 651011 GS AmsterdamNieuwmarkt
€ 3.250.000 k.k.
BlikvangerRoyaal 18e-eeuws grachtenpand (425 m²) met lift en stadstuin
Omschrijving
See English translation below.
Zeer royaal en charmant grachtenpand in hartje Amsterdam
Aan de rustige en idyllische Krom Boomssloot bevindt zich dit bijzondere grachtenpand: een voormalig 18e-eeuws pakhuis met een woonoppervlak van maar liefst 425 m². Het pand is uitgerust met een lift, beschikt over een stadstuin en biedt ongekende mogelijkheden. Het is een ideaal familiehuis, maar dankzij de gemengde bestemming ook uitstekend geschikt als kantoor, praktijk of studio aan huis – of zelfs volledig in gebruik te nemen als werkruimte.
Indeling
Souterrain
Via de entreehal bereikt u zowel de bel-etage als het souterrain. Het souterrain beschikt over twee ruime vertrekken, een apart toilet, een saunaruimte met douche, wasruimte, pantry en berging.
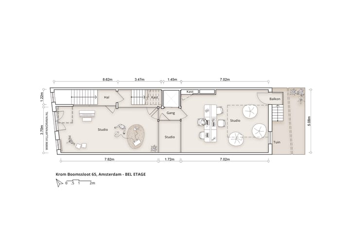
Bel-etage
Naast de trap is er hier ook een lift aanwezig. Deze verdieping biedt twee royale studio’s/werkruimtes, met aan de achterzijde toegang tot de ommuurde stadstuin.
Eerste verdieping
Aan de voorzijde bevindt zich een sfeervol kantoor met fraai uitzicht over de gracht. Aan de achterzijde ligt een klassieke bibliotheek met vide. Deze verdiepingen – samen met het souterrain en de bel-etage – lenen zich perfect voor gebruik als kantoor, praktijk of studio aan huis.
Tweede verdieping
Hal met separaat toilet en een badkamer met douche en wastafel. Aan de voorzijde een royale slaapkamer met open haard, een ruime inloopkast en een badkamer en suite met dubbele wastafel, toilet, inloopdouche en ligbad. Aan de achterzijde bevinden zich nog twee slaapkamers.
Derde verdieping
Een bijzonder lichte en royale woonkamer met open haard, verbonden met een open woonkeuken met kookeiland en nóg een sfeervolle haard.
Vierde verdieping
Open woongedeelte met vide en een slaapkamer aan de achterzijde. Op deze verdieping kan eenvoudig een extra badkamer worden gerealiseerd.
Locatie
Het pand ligt in de geliefde Lastagebuurt: een rustige maar centrale wijk met de stad letterlijk om de hoek. De Stopera, de Nieuwmarkt, Artis en de Hortus liggen op loopafstand, evenals diverse winkels, markten, cafés en restaurants. Iedere zaterdag vindt u een biologische markt op de Nieuwmarkt. Voor de dagelijkse boodschappen kunt u terecht op de nabijgelegen Jodenbreestraat.
De bereikbaarheid is uitstekend: Centraal Station, metrostation Waterlooplein en Nieuwmarkt liggen allemaal op loopafstand. Met de auto bent u binnen enkele minuten op de A10 via de IJtunnel, Wibautstraat of Piet Heintunnel.
Bijzonderheden:
- Geheel grachtenpand met een woonoppervlakte van circa 425 m2 (comfort NEN-2580)
- Bestemming gemengd 1, dus vele gebruiksmogelijkheden, zowel geheel wonen als geheel kantoor, of een combinatie.
- Voorzien van een lift
- Structuur centrale stofzuiger installatie aanwezig in het gehele pand
- Gelegen op eigen grond
----------------------------------
Exceptionally Spacious and Charming Canal House in the Heart of Amsterdam
On the quiet and idyllic Krom Boomssloot lies this remarkable canal house: a former 18th-century warehouse with a living area of approx. 425 sq m. The property includes a lift (elevator), a walled city garden, and offers extraordinary flexibility. It is an ideal family home, yet—thanks to its Mixed-1 zoning—also perfectly suited for office, practice or studio at home, or even to be used entirely as work space.
Layout
Basement (Souterrain)
From the entrance hall you can access both the raised ground floor and the basement. The basement comprises two spacious rooms, a separate WC, a sauna room with shower, laundry, pantry and storage.
Raised Ground Floor (Bel-etage)
In addition to the staircase there is a lift on this level. This floor offers two generous studios/workspaces, with access at the rear to the walled city garden.
First Floor
At the front: an atmospheric office with a beautiful canal view. At the rear: a classic library with mezzanine/void. These floors—together with the basement and raised ground floor—are ideal for use as office, practice or studio at home.
Second Floor
Hall with separate WC and a bathroom with shower and washbasin. At the front a large bedroom with fireplace, a spacious walk-in wardrobe, and an en-suite bathroom with double washbasin, WC, walk-in shower and bathtub. At the rear are two additional bedrooms.
Third Floor
A particularly light and spacious living room with fireplace, connected to an open-plan kitchen with island and another cosy fireplace.
Fourth Floor
Open living area with mezzanine/void and a bedroom at the rear. An additional bathroom can be created on this floor with ease.
Location
Situated in the sought-after Lastage neighbourhood: quiet yet central, with the city literally around the corner. The Stopera, Nieuwmarkt, Artis Zoo and the Hortus Botanicus are within walking distance, as are various shops, markets, cafés and restaurants. Every Saturday there is an organic market on Nieuwmarkt. Daily shopping is available on nearby Jodenbreestraat.
Connectivity is excellent: Amsterdam Central Station, Waterlooplein metro and Nieuwmarkt metro are all within walking distance. By car you reach the A10 ring road within minutes via the IJtunnel, Wibautstraat or Piet Heintunnel.
Particulars
- Entire canal house with a living area of approx. 425 sq m (in accordance with NEN 2580)
- Mixed-1 zoning: numerous use options—entirely residential, entirely office, or a combination
- Lift (elevator)
- Ducted central vacuum system installed throughout
- Freehold land (no ground lease)
Kenmerken
Overdracht
- Aangeboden sinds
- Aanvaarding
- In overleg
- Vraagprijs
- € 3.250.000 kosten koper
- Vraagprijs per m²
- € 7.647
- Status
- Beschikbaar
Bouw
- Soort woonhuis
- Grachtenpand, tussenwoning
- Soort bouw
- Bestaande bouw
- Bouwjaar
- 1716
- Specifiek
- Monumentaal pand
- Soort dak
- Zadeldak bedekt met pannen
Oppervlakten en inhoud
- Gebruiksoppervlakten
- Wonen
- 425 m²
- Gebouwgebonden buitenruimte
- 1 m²
- Perceel
- 132 m²
- Inhoud
- 1.512 m³
Indeling
- Aantal kamers
- 13 kamers (5 slaapkamers)
- Aantal badkamers
- 3 badkamers en 1 apart toilet
- Badkamervoorzieningen
- Sauna, 3 douches, 2 wastafels, dubbele wastafel, ligbad, en toilet
- Aantal woonlagen
- 5 woonlagen en een kelder
- Voorzieningen
- Lift en sauna
Energie
- Energielabel
- Niet beschikbaar
- Verwarming
- Cv-ketel en open haard
- Warm water
- Cv-ketel
Kadastrale gegevens
- AMSTERDAM G 4901
- Kadastrale kaart
- Oppervlakte
- 132 m²
- Eigendomssituatie
- Volle eigendom
Buitenruimte
- Ligging
- In centrum
- Tuin
- Achtertuin
Bergruimte
- Schuur/berging
- Inpandig
Parkeergelegenheid
- Soort parkeergelegenheid
- Betaald parkeren, openbaar parkeren en parkeervergunningen
Bedrijfsruimte
- Kantoorruimte
- Niet aanwezig, wel mogelijk (inpandig)
Foto's 63
Plattegronden 6
© 2001-2026 funda




































































