Dit huis op Funda: https://www.funda.nl/detail/koop/amsterdam/huis-lindengracht-186/89408697/

Omschrijving
BIJZONDER CHARMANT PAND MET 4 SLAAPKAMERS OP EIGEN GROND IN HARTJE JORDAAN
***English translation below***
Unieke kans! Aan de geliefde Lindengracht staat dit charmante pand van 132 m², verdeeld over maar liefst vier woonlagen met vier slaapkamers. De woning is volledig gerenoveerd en combineert historische charme met modern comfort. U geniet hier van verrassend veel ruimte, een sfeervolle patio én een zonnig dakterras. Authentieke balkenplafonds geven het hele huis karakter, terwijl de schitterende blauwe regen de voorgevel bijna het hele jaar door in het groen hult. Zet een stoeltje voor de deur, laat u meevoeren door de levendigheid van de straat en maak een praatje met de buren – hier voelt u zich meteen thuis.
INDELING
Bij binnenkomst valt direct de entreehal met hoog plafond op, die de sfeer van het huis prachtig neerzet. Vanuit hier zijn beide woonlagen bereikbaar: een paar treden omlaag leiden naar de royale leefkeuken met een warm en huiselijk karakter, terwijl een paar treden omhoog uitkomen in de lichte, ruime woonkamer. Dankzij de split-level indeling ontstaat een speels en ruimtelijk effect met veel lichtinval.
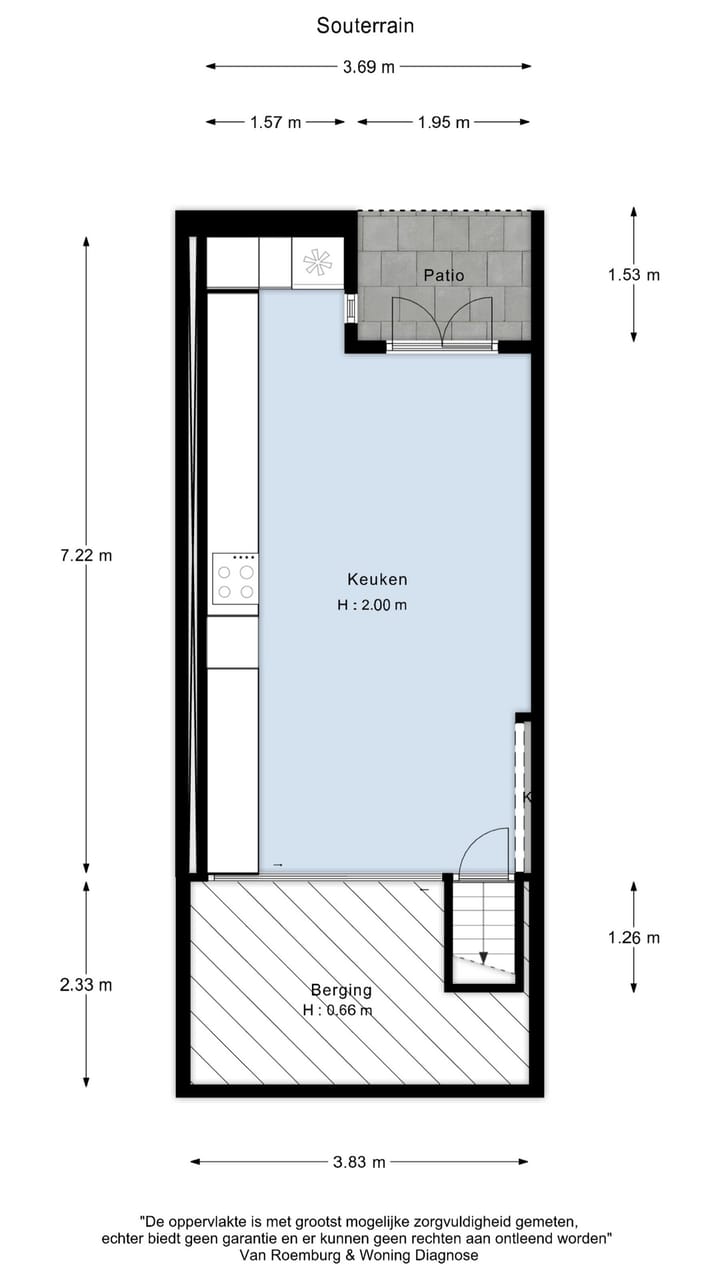
Benedenverdieping
De leefkeuken is royaal opgezet en praktisch ingericht, voorzien van een vriezer, koelkast, vaatwasser, quooker met spoelkraan, een extra brede gaskookplaat en oven. Authentieke elementen zoals het balkenplafond, een granito aanrechtblad en een eikenhouten vloer geven de ruimte een stoere en warme uitstraling. Er is volop bergruimte, waaronder twee extra diepe lades met daarachter een handige opbergplek. Achterin bevindt zich een aparte opbergkast en via dubbele openslaande deuren bereikt u de intieme patio, een beschutte plek om in alle rust buiten te genieten.
Beletage
De woonkamer op de beletage is licht en ruim, met uitzicht zowel op de groene achterzijde als op de levendige Lindengracht. Er is plek voor een grote loungebank en comfortabele fauteuils, waardoor dit de ideale ruimte is om te ontspannen of gasten te ontvangen.
Eerste verdieping
Een trap leidt naar de eerste verdieping waar de master bedroom en de badkamer via een hal met separaat toilet en een ruim washok met elkaar verbonden zijn. Slim geplaatste designschuifdeuren zorgen voor een optimale indeling. De luxe badkamer beschikt over een infrarood sunshower, regendouche, ligbad, dubbele wastafel, handdoekradiator en vloerverwarming. Twee grote schuiframen aan de straatzijde zorgen voor veel daglicht. De hoofdslaapkamer aan de achterzijde is bijzonder ruim en kijkt uit op het groen. Twee grote ramen zorgen voor veel lichtinval en rondom het bed is een stijlvolle maatwerkkast gebouwd, aangevuld met een dressoir in dezelfde stijl. In het voorjaar geniet u hier van de prachtige bloesem in de achtertuin.
Tweede verdieping
Op de tweede verdieping vindt u een ruime slaapkamer en een lichte werkkamer, voorheen één grote ruimte. De slaapkamer beschikt over een royale kastenwand, terwijl de werkkamer profiteert van de charmante dakkapel met twee openslaande ramen.
Derde verdieping
De derde verdieping bestaat uit een fraaie slaapkamer die ook uitstekend dienst kan doen als studio. Deze verdieping beschikt over een eigen keukenblok en een schuifpui naar het ruime dakterras. Hier geniet u in alle privacy van zon, groen en rust.
BUITENRUIMTES
Naast de patio aan de achterzijde beschikt de woning over een heerlijk dakterras op de derde verdieping – een rustige plek om te ontspannen midden in de stad. En te genieten van de zon, ook in de avond. En voor het huis zelf kunt u een gezellig zitje creëren, waar u op zonnige dagen het echte Jordaan-gevoel beleeft: een praatje met voorbijgangers, kinderen die spelen en de levendige markt op zaterdag.
EIGEN GROND
De woning staat op eigen grond, u betaalt dus geen erfpacht.
DE BUURT
De Lindengracht ligt in het hart van de Jordaan, omringd door gezellige cafés, toonaangevende restaurants en bijzondere winkels. Op zaterdag is er markt voor de deur. De Noordermarkt, Westerstraat en Haarlemmerdijk liggen op loopafstand. Met de fiets bereikt u in enkele minuten de grachtengordel en het Centraal Station. Tram- en bushaltes zijn nabij, evenals de Ring A10 op ca. 10-15 minuten rijden. Hier woont u in een van de meest geliefde buurten van Amsterdam, waar historie, gezelligheid en stadse dynamiek samenkomen.
BIJZONDERHEDEN
- Woonoppervlakte: 132 m² (NEN 2580 meetrapport aanwezig)
- Geheel pand met 4 woonlagen en 4 slaapkamers
- Eigen grond, dus geen erfpacht
- Bouwjaar 1894, bijzonder charmant en gerenoveerd
- Beschermd stadsgezicht (geen monument)
- Dakterras en patio
- Gelegen in het hart van de Jordaan
- Oplevering in overleg
Wonen in het mooiste pand op de Lindengracht? Dit is uw kans. Kom deze unieke woning nu zelf ervaren! Plan vandaag nog een bezichtiging en laat u verrassen door dit comfortabele woonhuis op een toplocatie in de Jordaan. Lengers Housing heet u van harte welkom en laat u graag door middel van een persoonlijke rondleiding alle mogelijkheden van deze woning zien.
Belangrijke informatie
De woning is ingemeten conform NEN 2580. De meetinstructie is bedoeld om een indicatie van de gebruiksoppervlakte te geven, maar sluit meetverschillen niet uit. Deze informatie is met grote zorg samengesteld. Toch kunnen er geen rechten aan worden ontleend. We raden kopers aan zelf onderzoek te doen naar alle voor hen relevante zaken. Ons kantoor vertegenwoordigt de verkopers, en voor een soepel aankoopproces adviseren we om een Vastgoed Ned-makelaar in te schakelen. De Algemene Consumentenvoorwaarden van de Vastgoed Nederland zijn van toepassing.
------------------------------------------------------------------------------------------------------------------------------------------------------------------------------------------------------------------------------------
EXCEPTIONALLY CHARMING 4-BEDROOM CANAL HOUSE ON OWN GROUND IN THE HEART OF THE JORDAAN
A unique opportunity! This charming 132 m² canal house, divided over four levels and featuring four bedrooms, is located on the popular Lindengracht. The property has been fully renovated and combines historic charm with modern comfort. You'll enjoy a surprising amount of space, a charming patio, and a sunny roof terrace. Authentic beamed ceilings give the entire house character, while the beautiful wisteria cloaks the facade in greenery almost year-round. Set up a chair by the door, let yourself be carried away by the lively street life, and chat with the neighbors – you'll instantly feel at home here.
LAYOUT
Upon entering, the high-ceilinged entrance hall immediately catches your eye, beautifully setting the ambiance of the house. Both floors are accessible from here: a few steps down lead to the spacious kitchen-diner with a warm and homely feel, while a few steps up lead to the bright, spacious living room. The split-level layout creates a playful and spacious feel with plenty of natural light.
Ground Floor
The spacious and practically designed kitchen/diner is equipped with a freezer, refrigerator, dishwasher, Quooker with flushing tap, an extra-wide gas cooktop, and oven. Authentic elements such as the beamed ceiling, granite countertops, and oak flooring give the space a robust and warm feel. There's ample storage space, including two extra-deep drawers with handy storage behind them. At the rear is a separate storage cupboard, and double doors open onto the intimate patio, a sheltered spot for enjoying the outdoors in peace.
Main Floor
The living room on the ground floor is bright and spacious, with views of both the green back garden and the lively Lindengracht. There's room for a large lounge sofa and comfortable armchairs, making it the ideal space for relaxing or entertaining.
First Floor
A staircase leads to the first floor, where the master bedroom and bathroom are connected via a hallway with a separate toilet and a spacious laundry room. Cleverly placed designer sliding doors ensure an optimal layout. The luxurious bathroom features an infrared sun shower, rain shower, bathtub, double sink, towel radiator, and underfloor heating. Two large sliding windows facing the street provide abundant natural light. The master bedroom at the rear is exceptionally spacious and overlooks the greenery. Two large windows provide ample light, and a stylish custom-built wardrobe has been built around the bed, complemented by a dresser in the same style. In spring, you can enjoy the beautiful blossoms of the large tree in the backyard.
Second Floor
On the second floor, you'll find a spacious bedroom and a bright office, previously one large space. The bedroom features a generous wardrobe wall, while the office benefits from a charming dormer window with two French windows, making it ideal for an office or guest space.
Third Floor
The third floor comprises a beautiful bedroom that could also serve as a studio. This floor features a private kitchenette and sliding doors leading to the spacious roof terrace. Here you can enjoy the sun, greenery, and tranquility in complete privacy.
OUTDOOR SPACES
In addition to the patio at the rear, the house boasts a lovely roof terrace on the third floor – a peaceful spot to relax in the heart of the city. And in front of the house, you can create a cozy seating area where you can experience the true Jordaan feeling on sunny days: chatting with passersby, children playing, and the lively Saturday market.
GROUND LEASE
The property is located on freehold land, so there is no leasehold.
THE NEIGHBORHOOD
The Lindengracht is located in the heart of the Jordaan, surrounded by charming cafés, leading restaurants, and unique shops. On Saturdays, there's a market right outside. The Noordermarkt, Westerstraat, and Haarlemmerdijk are within walking distance. The canal district and Central Station are just a few minutes away by bike. Tram and bus stops are nearby, as is the A10 ring road, approximately a 10-15 minute drive away. Here you'll live in one of Amsterdam's most desirable neighborhoods, where history, charm, and urban dynamism converge.
SPECIAL FEATURES
- Living area: 132 m² (NEN 2580 measurement report available)
- Entire canal house divided over 4 levels with 4 bedrooms
- Own ground, so no leasehold
- Built in 1894, exceptionally charming and renovated
- Protected cityscape (not a listed building
- Roof terrace and patio
- Located in the heart of the Jordaan district
- Delivery by arrangement
Come experience this unique home for yourself! Want to live in a prime location, with ambiance, space, and outdoor area in the Jordaan district? This is your chance. Schedule a viewing today and be amazed by this comfortable home on the Lindengracht! Lengers Housing warmly welcomes you and would be happy to show you all the possibilities of this spacious home with a personal tour.
Important information
The apartment has been measured according to the NEN 2580 standard. The measurement instructions are intended to give an indication of the usable living area, but discrepancies may occur. This information has been compiled with great care. However, no rights can be derived from it. We recommend that buyers conduct their own research into all matters that are important to them. Our office represents the seller, and for a smooth purchasing process, we advise buyers to engage a Vastgoed Ned real estate agent. The General Consumer Terms and Conditions of Vastgoed Ned apply.
Kenmerken
Overdracht
- Laatste vraagprijs
- € 1.550.000 kosten koper
- Vraagprijs per m²
- € 11.742
- Status
- Verkocht
Bouw
- Soort woonhuis
- Eengezinswoning, geschakelde woning
- Soort bouw
- Bestaande bouw
- Bouwjaar
- 1894
- Specifiek
- Beschermd stads- of dorpsgezicht
- Soort dak
- Zadeldak bedekt met pannen
Oppervlakten en inhoud
- Gebruiksoppervlakten
- Wonen
- 132 m²
- Perceel
- 42 m²
- Inhoud
- 434 m³
Indeling
- Aantal kamers
- 5 kamers (4 slaapkamers)
- Aantal badkamers
- 1 badkamer en 1 apart toilet
- Badkamervoorzieningen
- Douche, inloopdouche, ligbad, wastafel, en wastafelmeubel
- Aantal woonlagen
- 4 woonlagen
- Voorzieningen
- Mechanische ventilatie en TV kabel
Energie
- Energielabel
- Verwarming
- Cv-ketel
- Warm water
- Cv-ketel
- Cv-ketel
- Kombi Kompakt HRE 36/30 (gas gestookt combiketel uit 2013, eigendom)
Kadastrale gegevens
- AMSTERDAM L 836
- Kadastrale kaart
- Oppervlakte
- 42 m²
- Eigendomssituatie
- Volle eigendom
Buitenruimte
- Ligging
- In centrum
- Tuin
- Patio/atrium en zonneterras
- Patio/atrium
- 3 m² (1,95 meter diep en 1,53 meter breed)
- Ligging tuin
- Gelegen op het noorden
Parkeergelegenheid
- Soort parkeergelegenheid
- Betaald parkeren, openbaar parkeren en parkeervergunningen
Foto's 65
© 2001-2026 funda
































































