
Omschrijving
ENGLISH BELOW*
Lichte en Moderne Tussenwoning met Uitzicht over het Water inclusief afgesloten parkeerplaats op het binnenterrein.
BIJZONDERHEDEN
- Energiezuinige woning met dubbel glas, isolatie en label A+
- 8 zonnepanelen op het dak die het hele jaar door energie leveren
- Gerenoveerde keuken (2021) voorzien van de hoogste klasse energiezuinige AEG-apparatuur
- Geavanceerd Honeywell Home systeem voor verwarming, bedienbaar via een app
- Nieuwe Panasonic airconditioning (2025) op de bovenste verdieping, ook bedienbaar via een app
- Volledig gerenoveerde badkamer (2022) en trap (2023)
- Gloednieuwe op maat gemaakte raambekleding
- Beveiligde parkeerplaats voor één auto op een afgesloten binnenplaats
- Erfpacht afgekocht tot 1 december 2056 en daarna is de canon vastgezet onder gunstige voorwaarden
- MJOP plan aanwezig uit 2021
INDELING
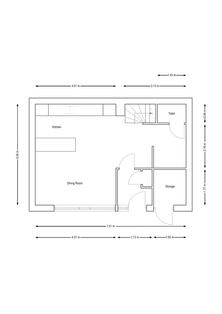
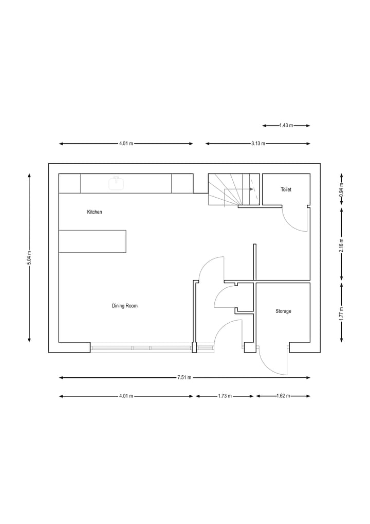
Deze moderne woning is ontworpen voor zowel comfort als efficiëntie. Alle verdiepingen zijn voorzien van duurzaam laminaat, met op de begane grond vloerverwarming. De rest van het huis wordt verwarmd door een efficiënt stads verwarmingssysteem met radiatoren. Het gehele verwarmingssysteem kan nauwkeurig worden aangestuurd door het geavanceerde Honeywell Home systeem, waarmee u voor elke kamer een aparte temperatuur kunt instellen en dit zelfs op afstand kunt beheren via uw mobiele telefoon, wat de stookkosten helpt te verlagen. De begane grond beschikt ook over een praktische berging met aanwezige stellingen.
Op de begane grond bevindt zich de volledig gerenoveerde keuken, geïnstalleerd in oktober 2021 door KVIK. Deze is uitgerust met een complete set gloednieuwe, energiezuinige AEG-apparaten, allemaal nog onder garantie. De grote inductiekookplaat, extra grote koelkast, vaatwasser en stoomoven maken het een genot voor elke chef-kok. De keuken is tevens voorzien van een grote AEG wijnkoelkast en een Quooker-kraan voor direct kokend water.
Op de eerste verdieping vindt u twee slaapkamers en een badkamer die eind 2022 volledig is gerenoveerd door Grando, uitgerust met een ligbad, douche, wastafel en toilet. De glazen tegels laten daglicht de badkamer binnenstromen via de hoofdslaapkamer en geven een retro-uitstraling aan de moderne woning.
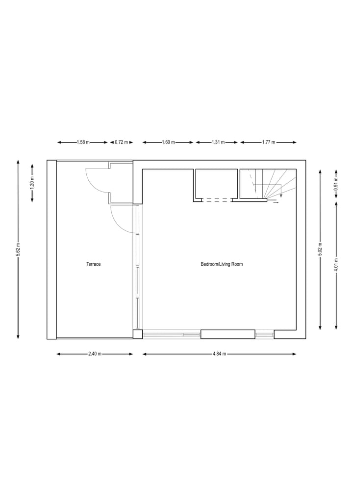
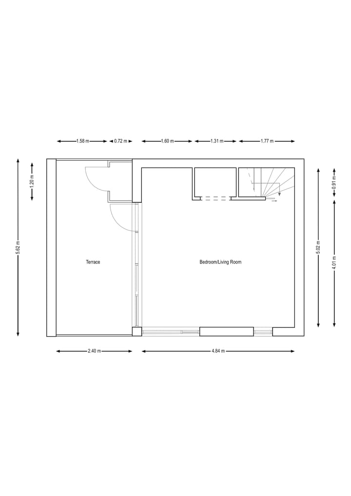
De woonkamer bevindt zich op de tweede verdieping, van waaruit u het hele jaar door kunt genieten van een prachtig uitzicht op het water. De bovenste verdieping beschikt over een gloednieuwe Panasonic airconditioning unit (juni 2025) die zowel kan koelen als verwarmen, voor optimaal comfort gedurende alle seizoenen. Op deze verdieping bevindt zich ook een gezellig balkon met direct uitzicht op het water en uw eigen parkeerplaats, een ideale plek voor een lounge set en gezellige BBQ's.
Alle trappen zijn stijlvol gerenoveerd in oktober 2023. Bovendien zijn alle ramen voorzien van gloednieuwe op maat gemaakte raambekleding van Veneta.
OMGEVING
Gelegen op korte afstand van het water, is deze woning perfect voor liefhebbers van buitenactiviteiten zoals suppen, zwemmen of zonnebaden. De locatie biedt uitzonderlijk gemak, met het IJburg Tramstation op slechts 6 minuten lopen of 1 minuut fietsen, wat zorgt voor een snelle reistijd van 20 minuten naar Amsterdam Centraal. Er zijn verschillende winkels binnen handbereik, waaronder een grote Albert Heijn (20 minuten lopen, 5 minuten fietsen) en een dichterbij gelegen Dekamarkt (10 minuten lopen, 3 minuten fietsen). De omgeving beschikt ook over een gezellige bakkerij, Etos, Action, Gall&Gall, een boekhandel en Hizi Hair. Voor ontspanning ligt Strand IJburg op een aangename 24 minuten lopen. De buurt is buitengewoon vriendelijk en positief, met buren die makkelijk in de omgang en behulpzaam zijn. De straat organiseert jaarlijks een zomerse BBQ, wat zorgt voor een echt gevoel van gemeenschap en saamhorigheid.
PERSOONLIJK WOORD VAN DE VERKOPER
'We hebben genoten van onze tijd hier in dit vredige, zeer goed verbonden deel van Amsterdam. We hebben prachtige herinneringen en hebben goed voor het huis gezorgd, het verder geüpgraded en in topvorm is onderhouden. We vinden het jammer om dit huis te moeten verlaten, maar het is tijd voor ons om met ons groeiende gezin door te gaan naar de volgende fase in ons leven. We bieden een instapklare 'parel' aan met zonnige leefruimtes en alle voorzieningen binnen handbereik. Dit goed onderhouden pand biedt een perfecte mix van modern comfort en tijdloze charme, met ruime woonvertrekken, een strakke keuken en overvloedig daglicht. Geniet van een zonnige voortuin die ideaal is om te ontspannen of te entertainen, evenals van uitstekende vervoersverbindingen, lokale winkels en groene ruimtes om de hoek. Of u nu een groeiend gezin bent of gewoon op zoek naar een levendige maar toch rustige plek om thuis te noemen, dit is een zeldzame kans die u niet wilt missen.
Deze informatie is door ons met de nodige zorgvuldigheid samengesteld. Onzerzijds wordt echter geen enkele aansprakelijkheid aanvaard voor enige onvolledigheid, onjuistheid of anderszins, dan wel de gevolgen daarvan. Alle opgegeven maten en oppervlakten zijn indicatief. Koper heeft zijn eigen onderzoek plicht naar alle zaken die voor hem of haar van belang zijn. Met betrekking tot deze woning is de makelaar adviseur van verkoper. Wij adviseren u een deskundige makelaar in te schakelen die u begeleidt bij het aankoopproces. Indien u specifieke wensen heeft omtrent de woning, adviseren wij u deze tijdig kenbaar te maken aan uw aankopend makelaar en hiernaar zelfstandig onderzoek te (laten) doen. Indien u geen deskundige vertegenwoordiger inschakelt, acht u zich volgens de wet deskundige genoeg om alle zaken die van belang zijn te kunnen overzien.
ENGLISH
A Bright Modern Home with Waterside Views and a secured parking space in the inner courtyard.
HIGHLIGHTS
- Energy-efficient home with double-glazed windows and label A+
- 8 solar panels on the roof providing year-round energy
- Renovated kitchen (2021) with top-of-the-line, energy-efficient AEG appliances
- Advanced Honeywell Home system for zoned heating control via a mobile app
- New Panasonic air conditioning unit (2025) on the top floor, also app controllable
- Brand new custom made window shutters
- Fully renovated bathroom (2022) and stairs (2023)
- Secure parking for one car in a gated courtyard
- Leasehold bought off until December 1, 2056, after which the lease was fixed under favorable conditions
- Multi year maintenance plan 2021.
LAYOUT
This contemporary home is designed for both comfort and efficiency. All floors feature durable laminate, with the ground floor benefiting from cozy underfloor heating. The rest of the house is warmed by an efficient district heating system with radiators. The entire heating system can be precisely controlled by the advanced Honeywell Home system, allowing you to set separate temperatures for each room and even manage it remotely from your mobile phone, helping to reduce heating bills. The ground floor also includes a practical storage room with shelving already in place.
On the ground floor you will find a completely renovated kitchen, installed in October 2021 by KVIK. It's equipped with a full suite of brand-new, high-efficiency AEG appliances, all still under warranty. The large induction cooktop, extra-large fridge, dishwasher, and steam-function oven make it a chef's delight. The kitchen also features a large AEG wine fridge and a Quooker tap, providing instant boiling water.
On the first floor you will find two bedrooms and a bathroom that was fully renovated at the end of 2022 by Grando, equipped with a bathtub, shower, sink and toilet. The glass tiles allow daylight to enter the bathroom through the master bedroom and give a retro feel to the modern home.
The living room is located on the second floor, where you can enjoy great views of the water all year round. The top floor features a brand new Panasonic air conditioning unit (June 2025) that can both cool and warm the space, ensuring comfort year-round. This floor also boasts a cozy balcony with a direct view of the water and your private parking spot, an ideal setting for a lounge set and BBQs.
All stairs were stylishly renovated in October 2023. Additionally, all windows have brand new custom-made blinds from Veneta.
SURROUNDINGS
Situated just a short distance from the water, this home is perfect for those who enjoy outdoor activities like paddle boarding, swimming, or sunbathing. The location offers exceptional convenience, with the IJburg Tram station just a 6-minute walk or a 1-minute bike ride away, providing a quick 20-minute commute to Amsterdam Centraal. A variety of shopping options are within easy reach, including a large Albert Heijn (20-minute walk, 5-minute bike ride) and a closer Dekamarkt (10-minute walk, 3-minute bike ride). The area also features a nice bakery, Etos, Action, Gall&Gall, a bookstore, and Hizi Hair. For recreation, Strand IJburg is a pleasant 24-minute walk away. The community atmosphere is exceptionally friendly and positive, with neighbors who are easy-going and helpful. The street organizes an annual summer BBQ, creating a true sense of community and belonging.
THE SELLERS WORDS
'We have enjoyed our time here in this peaceful yet very well connected part of Amsterdam. We had great memories and really looked after the house well, made sure it was well upgraded and kept in top shape. We are sad to let this house go, but it is time for us to move to our next stage in life as a growing family. We offer a move-in-ready gem with sunny living spaces and all amenities within easy reach. This well maintained property offers a perfect blend of modern comfort and timeless charm, with spacious living areas, a sleek kitchen, and abundant natural light throughout. Enjoy a sunny front garden ideal for relaxing or entertaining, as well as excellent transport links, local shops, and green spaces just around the corner. Whether you’re a growing family or simply seeking a vibrant yet peaceful place to call home, this is a rare opportunity you won’t want to miss.'
This information has been compiled by us with the utmost care. However, no liability is accepted on our part for any incompleteness, inaccuracy or otherwise, nor for the consequences thereof. All stated dimensions and surface areas are indicative. The buyer has an obligation to conduct their own investigation into all matters that are important to him or her. With regard to this property, the estate agent acts as the seller’s advisor. We recommend that you engage a qualified estate agent to guide you through the purchase process. If you have specific wishes regarding the property, we advise you to make these known to your purchasing agent in good time and to (have) them independently investigated. If you do not engage a qualified representative, you are considered by law to be sufficiently expert to oversee all matters of importance yourself.
Kenmerken
Overdracht
- Laatste vraagprijs
- € 685.000 kosten koper
- Vraagprijs per m²
- € 7.062
- Status
- Verkocht
Bouw
- Soort woonhuis
- Eengezinswoning, tussenwoning
- Soort bouw
- Bestaande bouw
- Bouwjaar
- 2008
- Soort dak
- Plat dak bedekt met bitumineuze dakbedekking
Oppervlakten en inhoud
- Gebruiksoppervlakten
- Wonen
- 97 m²
- Overige inpandige ruimte
- 3 m²
- Gebouwgebonden buitenruimte
- 13 m²
- Perceel
- 54 m²
- Inhoud
- 344 m³
Indeling
- Aantal kamers
- 4 kamers (2 slaapkamers)
- Aantal badkamers
- 1 badkamer
- Badkamervoorzieningen
- Douche, dubbele wastafel, ligbad, en toilet
- Aantal woonlagen
- 3 woonlagen
- Voorzieningen
- Mechanische ventilatie, natuurlijke ventilatie, TV kabel, en zonnepanelen
Energie
- Energielabel
- Isolatie
- Volledig geïsoleerd
- Verwarming
- Stadsverwarming
- Warm water
- Stadsverwarming
Kadastrale gegevens
- AMSTERDAM AU 1746
- Kadastrale kaart
- Oppervlakte
- 54 m²
- Eigendomssituatie
- Gemeentelijke erfpacht (einddatum erfpacht: 30-11-2056)
- Lasten
- Afgekocht tot 30-11-2056
Buitenruimte
- Ligging
- Aan rustige weg, in woonwijk en open ligging
- Balkon/dakterras
- Dakterras aanwezig
Bergruimte
- Schuur/berging
- Aangebouwde stenen berging
- Voorzieningen
- Elektra
Parkeergelegenheid
- Soort parkeergelegenheid
- Op afgesloten terrein
Foto's 42
© 2001-2026 funda









































