
Passeerdersgracht 211016 XG AmsterdamPasseerdersgrachtbuurt
€ 3.675.000 k.k.
Omschrijving
HET VAKWERK PAND | Een uniek "vakwerk" huis, dat op een prachtige wijze is getransformeerd tot een designhuis. Dit stoere, strakke, verrassende en speelse gezinshuis heeft een totaal bruto vloeroppervlakte van meer dan 373 m², waarvan 313 m² gebruiksoppervlakte. Het huis heeft zijn eigen sfeer en karakter, en biedt veel luxe. Bovendien is het halfvrijstaand en daardoor zeer privé, en het is uitzonderlijk goed geïsoleerd voor geluid van binnen naar buiten en vice versa. Met het aangrenzende schoolbuurpand dat 's avonds en in het weekend leeg is, geniet je hier van veel rust en stilte.
Nieuwsgierig geworden? Ervaar de volledige woonbeleving op onze website of download ons magazine. *See English translation below *
Rondleiding
Dit pand heeft een prachtige en stoere gevel met originele 19e-eeuwse dubbele deuren. De ruime hal heeft een bakstenen muur, betonnen vloer en stalen deuren, samen met een grote garderobe. De woonkeuken biedt een gezellige zit- en eethoek met uitzicht op de gracht en een ruime luxe keuken van Italiaans design. De keuken is op maat gemaakt en voorzien van hoogwaardige apparatuur. Er is ook een tweede zithoek grenzend aan de keuken en een grote woonkamer met een plafondhoogte van ruim 3 meter met veel ramen, een visgraatvloer en een gashaard.
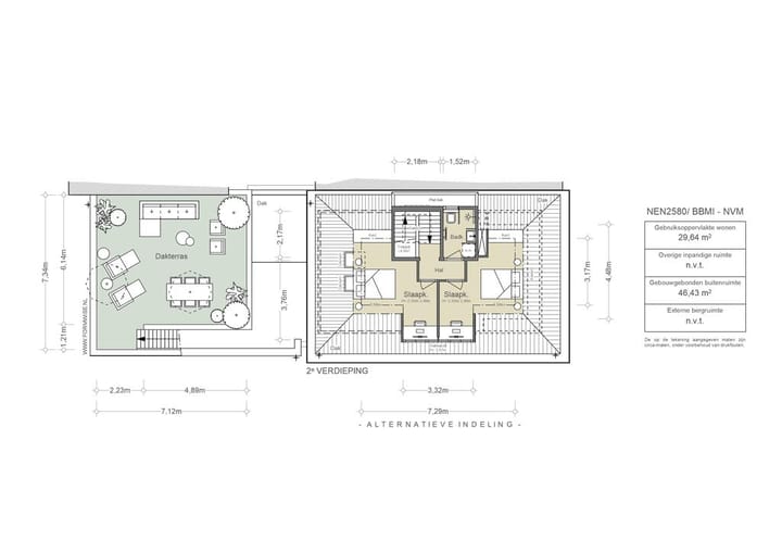
Op de eerste verdieping met een plafondhoogte van 2,90 meter bevinden zich een ruime overloop, drie slaapkamers, een luxueuze badkamer en een mastersuite met kleedruimte en open badkamer. Het huis heeft ook een sauna, inbouwkasten en een extra badkamer op zolder. De zolderruimte is ideaal voor een au pair, nanny of zelfs een apart appartement voor een studerend kind. Buiten is er een prachtig dakterras, een patio-terras en een eigen steeg die toegang geeft tot de gracht. Het pand biedt veel mogelijkheden voor ontspanning en genieten van buitenruimtes.
Buurtgids
Gelegen aan een rustige en idyllisch grachtje aan de oostzijde van de Jordaan nabij Leidsegracht en Prinsengracht. Vanaf hier is ook Oud West op loopafstand.
Winkels, theaters zoals de Nieuwe De La Mar, bioscopen, musea en galeries, volop horecagelegenheden en poppodia als De Melkweg en Paradiso; deze zijn allen te vinden op een steenworp afstand.
Bijzonderheden
• Feitelijk als 1 woning in gebruik; als 2 huisnummers, 21A en
• 21B, te boek
• Mogelijkheid huren parkeerplaats(en) op 300 meter afstand
• Mogelijkheid tot aanvraag 2 parkeervergunningen;
• Unesco Wereld erfgoed
• Rijksbeschermd stadsgezicht
• Recent uitgebouwd
• Gestoffeerd
• Luxe sauna
• Mastersuite voorzien van airconditioning
• Binnen- en buiten videobewaking
• Gelegen op erfpachtgrond van Gemeente Amsterdam. Huidig tijdvak 23-04-2020 t/m 30-06-2061, AB 2000, te betalen canon bedraagt € 18.017,24 per jaar
• Erfpachtcanon is op basis van AB 2016 vastgeklikt voor canonbetaling per 01-07-2061 met jaarlijkse indexerig
• In beginsel IB aftrekbaar van inkomstenbelasting.
• Volledig geïsoleerd met onder andere isolatieglas en dakisolatie
• Achterhuis betreft nieuwbouw uit 2014 en 2020 met onder andere nieuwe fundering
Deze informatie is door ons met de nodige zorgvuldigheid samengesteld. Onzerzijds wordt echter geen enkele aansprakelijkheid aanvaard voor enige onvolledigheid, onjuistheid of anderszins, dan wel de gevolgen daarvan. Alle opgegeven maten en oppervlakten zijn slechts indicatief. De Meetinstructie is gebaseerd op de NEN2580. De Meetinstructie is bedoeld om een meer eenduidige manier van meten toe te passen voor het geven van een indicatie van de gebruiksoppervlakte. De Meetinstructie sluit verschillen in meetuitkomsten niet volledig uit, door bijvoorbeeld interpretatieverschillen, afrondingen of beperkingen bij het uitvoeren van de meting
--------------------------------------
HET VAKWERK PAND | A unique "timber frame" home that has been beautifully transformed into a designer residence. This rugged, sleek, surprising, and playful family home boasts a total gross floor area of over 373 m², of which 313 m² is usable space. The house possesses its own ambiance and character, offering a wealth of luxury. Furthermore, it is semi-detached, ensuring exceptional privacy, and it is exceptionally well soundproofed, both from inside to outside and vice versa. With the adjacent school neighbor property being vacant in the evenings and on weekends, you can relish in tranquility and peace here.
Guided tour
This property has a beautiful and sturdy facade with original 19th-century double doors. The spacious entrance hall has a brick wall, concrete floor and steel doors, along with a large cloakroom. The kitchen diner offers a cosy sitting and dining area with canal views and a spacious luxury kitchen of Italian design. The kitchen is custom-made and equipped with high-end appliances. There is also a second sitting area adjacent to the kitchen and a large living room with a ceiling height of over 3 metres with many windows, a herringbone floor and a gas fireplace.
On the first floor with a ceiling height of 2.90 metres are a spacious landing, three bedrooms, a luxurious bathroom and a master suite with dressing area and open bathroom. The house also has a sauna, fitted wardrobes and an additional bathroom in the attic. The attic space is ideal for an au pair, nanny or even a separate flat for a studying child. Outside, there is a beautiful roof terrace, a patio terrace and a private alley giving access to the canal. The property offers many opportunities for relaxing and enjoying outdoor spaces.
Neighbourhood guide
Located on a quiet and idyllic canal on the east side of the Jordaan near Leidsegracht and Prinsengracht. From here, Oud West is also within walking distance.
Shops, theatres such as the Nieuwe De La Mar, cinemas, museums and galleries, plenty of catering establishments and pop stages such as De Melkweg and Paradiso; these can all be found a stone's throw away.
Details
- Actually used as 1 property; as 2 house numbers, 21A and
- 21B, on the books
- Possibility to rent parking spot(s) at 300 metres distance
- Possibility to apply for 2 parking permits;
- Unesco World Heritage
- State-protected townscape
- Recently expanded
- Semi-furnished
- Luxury sauna
- Master suite with air conditioning
- Inside and outside video surveillance
- Situated on leasehold land owned by the Municipality of Amsterdam. Current period: 23-04-2020 until 30-06-2061, under AB 2000. Annual ground rent amounts to €18,017.24.
- As of 01-07-2061, the ground rent will be fixed under AB 2016, with annual indexation.
- In principle, tax deductible from personal income tax.
- Fully insulated with e.g. insulating glass and roof insulation
- Back house concerns new construction from 2014 and 2020 with a.o. new foundation
This information was drafted with the utmost care. However, we are not liable for any unintended omission or inaccuracy, etcetera, nor any consequences related thereto. All measurements and sizes are indicative only. The Measurement Code is based on NEN2580 standards. The Measurement Code is intended to ensure a more universal survey method for indicating total net internal area (usable floor area). The Measurement Code cannot fully preclude discrepancies between individual surveys, due to e.g. differences regarding interpretation, rounding and restrictions to conducting measurement surveys.
Kenmerken
Overdracht
- Aangeboden sinds
- Aanvaarding
- In overleg
- Vraagprijs
- € 3.675.000 kosten koper
- Vraagprijs per m²
- € 11.741
- Status
- Beschikbaar
Bouw
- Bouwjaar
- Voor 1906
- Soort woonhuis
- Grachtenpand, halfvrijstaande woning
- Soort bouw
- Nieuwbouw
- Specifiek
- Beschermd stads- of dorpsgezicht
Oppervlakten en inhoud
- Gebruiksoppervlakten
- Wonen
- 313 m²
- Gebouwgebonden buitenruimte
- 61 m²
- Perceel
- 204 m²
- Inhoud
- 900 m³
Indeling
- Aantal kamers
- 7 kamers (5 slaapkamers)
- Aantal badkamers
- 3 badkamers en 3 aparte toiletten
- Badkamervoorzieningen
- Sauna, 3 douches, 2 dubbele wastafels, 2 ligbaden, 2 inloopdouches, toilet, en wastafel
- Aantal woonlagen
- 3 woonlagen
- Voorzieningen
- Airconditioning, alarminstallatie, balansventilatie, dakraam, domotica, mechanische ventilatie, rookkanaal, en sauna
Energie
- Energielabel
- Isolatie
- Volledig geïsoleerd
- Verwarming
- Cv-ketel, open haard en gedeeltelijke vloerverwarming
- Warm water
- Cv-ketel
- Cv-ketel
- HR
Kadastrale gegevens
- GEMEENTE E 7695
- Kadastrale kaart
- Oppervlakte
- 204 m²
- Eigendomssituatie
- Gemeentelijk eigendom belast met erfpacht
- Lasten
- € 18.017,24 per jaar met optie tot afkopen
Buitenruimte
- Ligging
- Aan water en in centrum
- Tuin
- Zijtuin en zonneterras
- Zonneterras
- 97 m² (10,00 meter diep en 9,70 meter breed)
- Balkon/dakterras
- Dakterras aanwezig
Parkeergelegenheid
- Soort parkeergelegenheid
- Betaald parkeren, openbaar parkeren en parkeervergunningen
Foto's 63
Plattegronden 3
© 2001-2026 funda

































































