Dit huis op Funda: https://www.funda.nl/detail/koop/amsterdam/huis-talbotstraat-8/43106325/

BlikvangerSchitterend familiehuis, high-end verbouwd + P.P.
Omschrijving
*English tekst below*
##ZO MOOI..ECHT EEN PRACHTIG FAMILIEHUIS -CA 175 M2- RUIM EN LICHT, GROTE WOONKAMER, HOOG PLAFOND, SPECTACULAIRE UITBOUW MET GLAZEN SCHUIFPUI VAN VLOER TOT PLAFOND. EEN TUIN WAAR JE HEERKLIJK VAN DE ZON KAN GENIETEN. MAATWERK INBOUWKASTEN, 4 SLAAPKAMERS, APARTE WERKKAMER EN ALS KERS OP DE TAART EEN TWEEDE WOON-/CHILLKAMER. TEVENS EIGEN PARKEERPLAATS. GELEGEN IN EEN RUSTIG ZIJSTRAATJE VAN DE IJBURGLAAN MET EEN PARKJE EN SPEELTUINEN OM DE HOEK.
KOFFERS UITPAKKEN EN WONEN!##
lees hieronder snel verder;
HIGHLIGHTS:
-Boek online je bezichtiging in! Klik op "vraag bezichtiging aan" op Funda en je krijgt binnen 10 seconden een link met onze digitale agenda!
- Erfpacht afgekocht voor 50 jaar (2055), tevens is de overstap naar AB 2016 onder de gunstige voorwaarden alreeds gedaan.
- Uitbouw met spectaculaire glazen schuifpui van vloer tot plafond, zomers openschuiven, binnen en buiten vloeien moeiteloos in elkaar over. (Tudor 3,25 x 5,5)
- Prachtige beschutte tuin, goed aangelegd, je kan hier in alle rust genieten van de ochtend en middagzon, tevens een achterom met berging voor bijvoorbeeld je fietsen.
- Vloerverwarming door gehele woning.
- Grote woonkamer met een plafondhoogte van 3,25m heerlijk licht en ruim.
- Hoogwaardige "custom made" inbouwkasten door de gehele woning.
- Ingebouwde spots en wand lichtpunten, sfeervol en mooi.
- De woning is volledige gestuukt en recent geschilderd.
- Sfeervolle Keuken met diverse inbouwapparatuur.
- Twee badkamers met twee separate wc's.
- Vier ruime slaapkamers, waarvan de "master bedroom" een eigen en-suite badkamer heeft.
- Extra tv-/woon-/chill- kamer op de eerste verdieping, heerlijk met bezoek.
- Aparte werkkamer.
- 11 zonnepanelen, vrijwel gratis elektra.
- Energielabel A+
- Eigen parkeerplaats om de hoek.
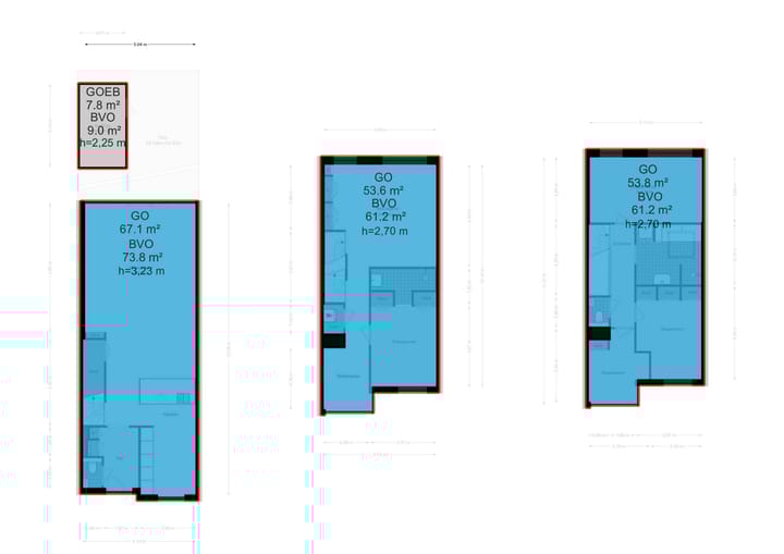
INDELING:
Zie 2/3d plattegronden.
OVERIGE BIJZONDERHEDEN:
- Erfpacht huidig tijdvak afgekocht tot 31 dec 2055 tevens overstap naar AB 2016 alreeds gedaan.
- Meetrapport aanwezig, ingemeten voor NEN2580 methode.
- Energielabel A++
OMGEVING:
IJburg is duidelijk in opkomst en biedt een jachthaven met vele restaurants aan het water, nieuwe trendy cafés, een filmhuis en theater, diverse activiteiten op het gebied van sport zoals een prachtige tennisclub, ook is er een hockeyclub en voetbalclub. Kunst en cultuur, verschillende parken, een watersportvereniging en artistieke Amsterdamse winkeltjes. Opvallend aan de bevolkingssamenstelling is dat hier veel creatieve en ondernemende mensen wonen. Dit vind je terug in de bijzondere architectuur waar bewoners vaak zelf een hand in hebben gehad.
Het Diemerpark, ter grootte van twee keer het Vondelpark en waar men naar hartenlust kan wandelen, hardlopen, fietsen en skaten, ligt op loopafstand. Er bevindt zich een voetbal- en hockeyclub en het park heeft zelfs een eigen strandje met zonneweide.
Op het Haveneiland is een winkelcentrum met onder andere ambachtelijke verswinkels, diverse lunch- en espressobars, een grote Albert Heijn, een biologische supermarkt, de HEMA, Vomar, kappers, Action en Bruna met een PostNL-postkantoor. Op het plein achter het winkelcentrum is wekelijks een gezellige markt. Ook zijn er voorzieningen zoals basisscholen, het IJburg College voor voortgezet onderwijs (VWO, HAVO en VMBO), kinderopvang, bibliotheken, sportscholen en een medisch centrum. Daarnaast mag de grote jachthaven E. Peek vermeld worden; ook deze ligt op loopafstand. Door het vele omringende water en de bevaarbare grachten heeft IJburg een maritieme inslag.
IJburg is een waterrijke, rustige en inspirerende omgeving. Een ideale locatie om te wonen met het centrum van Amsterdam via tram 26 op 10 minuten afstand. De A1, A9 en en de ring A10 zijn binnen een minuut te bereiken. Het is een prachtig alternatief voor mensen die ruim, stads en buiten willen wonen, maar eigenlijk toch het liefst verbonden willen blijven met het centrum van Amsterdam. Kortom, een heerlijk centrale waterrijke plek om te wonen.
DISCLAIMER
Deze informatie is door ons met de nodige zorgvuldigheid samengesteld. Onzerzijds wordt echter geen enkele aansprakelijkheid aanvaard voor enige onvolledigheid, onjuistheid of anderszins, dan wel de gevolgen daarvan. Koper heeft zijn eigen onderzoeksplicht naar alle zaken die voor hem of haar van belang zijn. Met betrekking tot deze woning is de makelaar adviseur van verkoper. Wij adviseren u een deskundige (NVM-)makelaar in te schakelen die u begeleidt bij het aankoopproces. Indien u specifieke wensen heeft omtrent de woning, adviseren wij u deze tijdig kenbaar te maken aan uw aankopend makelaar en hiernaar zelfstandig onderzoek te (laten) doen. Indien u geen deskundige vertegenwoordiger inschakelt, acht u zich volgens de wet deskundige genoeg om alle zaken die van belang zijn te kunnen overzien. Van toepassing zijn de NVM voorwaarden.
MEET/NEN CLAUSULE
De gebruiksoppervlakte is berekend conform de branche vastgestelde Meetinstructies welke grotendeels gebaseerd is op de NEN2580. De oppervlakte kan derhalve afwijken van vergelijkbare panden en/of oude referenties. Dit heeft vooral te maken met deze (nieuwe) rekenmethode. Koper verklaart voldoende te zijn geïnformeerd over de hiervoor bedoelde normering. Verkoper en diens makelaar doen hun uiterste best de juiste oppervlakte en inhoud te berekenen aan de hand van eigen metingen en dit zoveel mogelijk te ondersteunen door het plaatsen van plattegronden met maatvoering. Mocht de maatvoering onverhoopt niet (volledig) overeenkomstig de normering zijn vastgesteld, wordt dit door koper aanvaard. Koper is voldoende in de gelegenheid gesteld de maatvoering zelf te (laten) controleren. Verschillen in de opgegeven maat en grootte geven geen der partijen enig recht, zo ook niet op aanpassing van de koopsom. Verkoper en diens makelaar aanvaarden geen enkele aansprakelijkheid in deze.
----
##SO BEAUTIFUL… TRULY A STUNNING FAMILY HOME – APPROX. 175M² – SPACIOUS AND BRIGHT, LARGE LIVING ROOM, HIGH CEILINGS, SPECTACULAR EXTENSION WITH FLOOR-TO-CEILING GLASS SLIDING DOORS. A SUNNY GARDEN TO RELAX AND ENJOY. CUSTOM-BUILT FITTED WARDROBES, 4 BEDROOMS, SEPARATE HOME OFFICE, AND AS THE ICING ON THE CAKE, A SECOND LIVING/CHILL ROOM. PRIVATE PARKING INCLUDED. LOCATED IN A QUIET SIDE STREET OFF IJBURGLAAN, WITH A PARK AND PLAYGROUNDS JUST AROUND THE CORNER.
UNPACK YOUR BAGS AND MOVE RIGHT IN!##
Read on for more details:
HIGHLIGHTS
* Book your viewing online! Click on *“request a viewing”* on Funda and you’ll receive a link to our digital calendar within 10 seconds.
* Leasehold bought off for 50 years (until 2055). Transfer to AB 2016 under favorable conditions already completed.
* Extension with spectacular floor-to-ceiling glass sliding doors. In summer, open them wide and let indoor and outdoor living blend seamlessly. (Tudor 3.25 x 5.5m).
* Beautiful, sheltered, well-landscaped garden – enjoy peace and quiet in the morning and afternoon sun. Includes rear access with storage for bikes.
* Underfloor heating throughout the house.
* Spacious living room with 3.25m high ceilings, filled with natural light.
* High-quality custom-made fitted wardrobes throughout the home.
* Built-in spotlights and wall lighting, stylish and atmospheric.
* Entire house plastered and recently painted.
* Attractive kitchen with various built-in appliances.
* Two bathrooms and two separate toilets.
* Four spacious bedrooms, including a master suite with its own en-suite bathroom.
* Extra TV/living/chill room on the first floor, perfect for guests or family evenings.
* Separate home office.
* 11 solar panels, providing almost free electricity.
* Energy label A+.
* Private parking space just around the corner.
LAYOUT
See 2D/3D floor plans.
ADDITIONAL DETAILS
* Leasehold current term bought off until Dec 31, 2055; transfer to AB 2016 already completed.
* Measurement report available, measured in accordance with NEN2580.
* Energy label A++.
SURROUNDINGS
IJburg is clearly on the rise and offers a marina with many waterfront restaurants, trendy cafés, a cinema, a theater, and a wide variety of sports activities, including a beautiful tennis club, hockey and football clubs. Art and culture, several parks, a water sports association, and creative Amsterdam boutiques all contribute to the vibrant atmosphere.
The Diemerpark – twice the size of the Vondelpark – is within walking distance. It’s perfect for walking, jogging, cycling, or skating. The park also has football and hockey clubs, plus its own beach with sunbathing area.
On Haveneiland you’ll find a shopping center with artisanal food shops, cafés, espresso bars, a large Albert Heijn, an organic supermarket, HEMA, Vomar, Action, Bruna (with a PostNL service point), and a lively weekly market on the square behind it. There are also schools, IJburg College (secondary education: VWO, HAVO, VMBO), childcare facilities, libraries, gyms, and a medical center. Another highlight is the large E. Peek marina, also within walking distance. With its surrounding waters and navigable canals, IJburg has a distinctly maritime feel.
IJburg offers a water-rich, peaceful, and inspiring environment. It is an ideal location for families who want space, green surroundings, and city life all at once. Amsterdam’s city center is just 10 minutes away by tram 26, while the A1, A9, and A10 ring road are only a minute’s drive. A perfect alternative for those who want spacious, urban, and outdoor living while staying closely connected to central Amsterdam.
DISCLAIMER
This information has been compiled with the utmost care. However, no liability is accepted for any incompleteness, inaccuracies, or consequences thereof. Buyers must carry out their own due diligence regarding all matters of importance. The broker acts as advisor to the seller. We recommend engaging a professional (NVM) buyer’s agent to guide you through the purchase process. If you have specific wishes regarding the property, please communicate them in time to your purchasing agent and investigate them independently. If you choose not to engage professional representation, you are deemed by law to be sufficiently knowledgeable to oversee all relevant matters yourself. NVM terms and conditions apply.
MEASUREMENT/NEN CLAUSE
The living area has been measured in accordance with industry-standard Measurement Instructions, largely based on NEN2580. As such, the area may differ from comparable properties and/or older references, mainly due to this (new) calculation method. Buyer acknowledges being sufficiently informed about this standard. Seller and broker have made every effort to calculate the correct living area and volume using their own measurements and to support this with floor plans including dimensions. Should the measurements not fully conform to the standard, the buyer accepts this. The buyer has been given sufficient opportunity to verify the measurements independently. Any differences in the stated dimensions do not entitle either party to any claims, including adjustments of the purchase price. Seller and broker accept no liability in this respect.
Kenmerken
Overdracht
- Aangeboden sinds
- Aanvaarding
- In overleg
- Vraagprijs
- € 950.000 kosten koper
- Vraagprijs per m²
- € 5.429
- Status
- Verkocht onder voorbehoud
Bouw
- Soort woonhuis
- Eengezinswoning, 2-onder-1-kapwoning
- Soort bouw
- Bestaande bouw
- Bouwjaar
- 2009
- Soort dak
- Plat dak bedekt met bitumineuze dakbedekking
Oppervlakten en inhoud
- Gebruiksoppervlakten
- Wonen
- 175 m²
- Externe bergruimte
- 9 m²
- Perceel
- 132 m²
- Inhoud
- 657 m³
Indeling
- Aantal kamers
- 6 kamers (4 slaapkamers)
- Aantal badkamers
- 2 badkamers en 2 aparte toiletten
- Badkamervoorzieningen
- 2 douches, 2 wastafels, en ligbad
- Aantal woonlagen
- 3 woonlagen
- Voorzieningen
- Domotica, glasvezelkabel, mechanische ventilatie, schuifpui, TV kabel, en zonnepanelen
Energie
- Energielabel
- Isolatie
- Dubbel glas en volledig geïsoleerd
- Verwarming
- Stadsverwarming
- Warm water
- Stadsverwarming
Kadastrale gegevens
- AMSTERDAM AU 2410
- Kadastrale kaart
- Oppervlakte
- 132 m²
- Eigendomssituatie
- Gemeentelijke erfpacht
- Lasten
- Afgekocht tot 31-12-2055
Buitenruimte
- Ligging
- Aan rustige weg, in woonwijk en vrij uitzicht
- Tuin
- Achtertuin
- Achtertuin
- 53 m² (9,60 meter diep en 5,50 meter breed)
- Ligging tuin
- Gelegen op het zuidoosten
Bergruimte
- Schuur/berging
- Vrijstaande houten berging
Garage
- Soort garage
- Parkeerplaats
Parkeergelegenheid
- Soort parkeergelegenheid
- Op eigen terrein
Foto's 35
Plattegronden 4
© 2001-2026 funda



































