Dit huis op Funda: https://www.funda.nl/detail/koop/apeldoorn/appartement-hofveld-86/43891540/

Omschrijving
Zeer verrassende gemoderniseerde maisonnette, gelegen op de 1e en 2e etage van dit appartementengebouw aan het Hofveld. Vlakbij winkelcentrum Schubertplein en Adelaarsplein en op korte afstand van de uitvalswegen.
Voorzien van een stenen berging op het achtergelegen terrein en een mooi vrij uitzicht aan beide zijden.
Gebouwd in 1954 en gemoderniseerd. Grotendeels voorzien van dubbele beglazing.
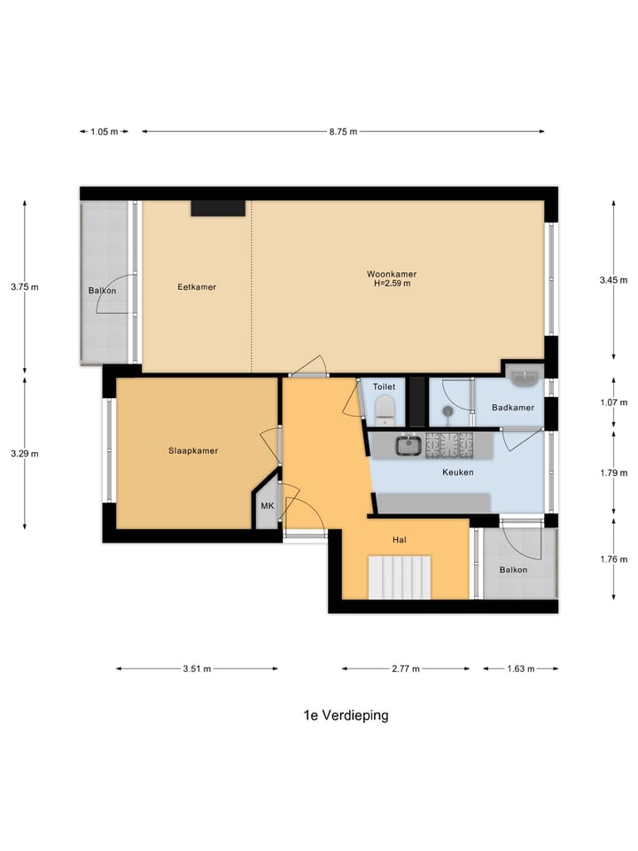
Indeling:
Trap naar de 1e etage, waar zich de voordeur bevindt. Hal met meterkast, modern toilet, halletje (voormalige slaapkamer) met vaste trap naar de etage, slaapkamer aan de voorzijde, praktische keuken met inbouwapparatuur en deur naar het achterbalkon. Vanaf dit balkon kijk je over het achtergelegen plantsoen. Via de keuken bereik je ook de geheel betegelde badkamer met een inloopdouche en een wasmeubel.
De woonkamer is een verhaal apart: een zee van licht door de grote ramen aan voor- en achterzijde, maar ook door de dakramen en de grote vide, die extra ruimte en hoogte geven. Vanuit de woonkamer kom je op het balkon aan de voorzijde, met de ochtendzon.
Op de slaapetage kom je boven op de grote overloop, die je prima als werk- of hobbyruimte kunt gebruiken. Je kunt natuurlijk ook besluiten om hier een extra slaapkamer te maken. Er is veel bergruimte, met de aansluiting van de wasapparatuur en de opstelling van de c.v.-ketel uit 2018.
Kom gauw eens kijken bij dit leuke huis, bel ons voor een afspraak op 055-5555555 en we laten het je graag zien!
Oplevering in overleg.
Kenmerken
Overdracht
- Laatste vraagprijs
- € 295.000 kosten koper
- Vraagprijs per m²
- € 2.921
- Status
- Verkocht
- Bijdrage VvE
- € 150,00 per maand
Bouw
- Soort appartement
- Bovenwoning (appartement)
- Soort bouw
- Bestaande bouw
- Bouwjaar
- 1954
- Soort dak
- Dwarskap bedekt met pannen
Oppervlakten en inhoud
- Gebruiksoppervlakten
- Wonen
- 101 m²
- Gebouwgebonden buitenruimte
- 6 m²
- Externe bergruimte
- 6 m²
- Inhoud
- 360 m³
Indeling
- Aantal kamers
- 4 kamers (2 slaapkamers)
- Aantal badkamers
- 1 badkamer en 1 apart toilet
- Badkamervoorzieningen
- Douche en wastafel
- Aantal woonlagen
- 2 woonlagen
- Voorzieningen
- Dakraam en TV kabel
- Gelegen op
- 1e woonlaag
Energie
- Energielabel
- E
- Isolatie
- Gedeeltelijk dubbel glas
- Verwarming
- Cv-ketel
- Warm water
- Cv-ketel
- Cv-ketel
- Gas gestookt combiketel uit 2018, eigendom
Kadastrale gegevens
- APELDOORN L 8749
- Kadastrale kaart
- Eigendomssituatie
- Volle eigendom
Buitenruimte
- Ligging
- In woonwijk en vrij uitzicht
- Balkon/dakterras
- Balkon aanwezig
Bergruimte
- Schuur/berging
- Vrijstaande stenen berging
Parkeergelegenheid
- Soort parkeergelegenheid
- Openbaar parkeren
VvE checklist
- Inschrijving KvK
- Nee
- Jaarlijkse vergadering
- Ja
- Periodieke bijdrage
- Ja (€ 150,00 per maand)
- Reservefonds aanwezig
- Nee
- Onderhoudsplan
- Nee
- Opstalverzekering
- Ja
Foto's 32
© 2001-2025 funda































