
Omschrijving
Op zoek naar een leuk en ruim appartement? Dan is dit je kans!
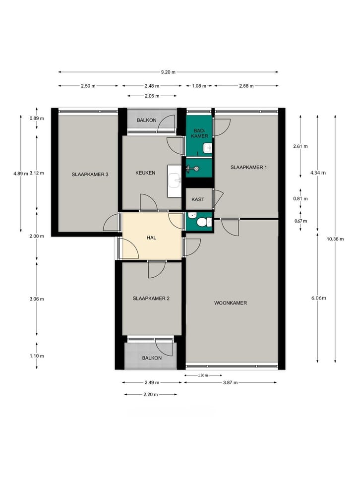
Deze 4 kamerwoning is voorzien van twee balkons en is gelegen op de vierde woonlaag.
Het appartementencomplex is in 2018 verduurzaamd met deels HR glas, kunststof kozijnen en zonnepanelen. Het appartement beschikt over een aantal eigen zonnepanelen waarbij niet gebruikte stroom wordt opgeslagen in een batterij wat dan op een later moment weer gebruikt kan worden, daardoor zijn er heel lage energiekosten.
In de onderbouw bevindt zich een ruime berging en er is voldoende parkeergelegenheid in de directe omgeving van de woning.
Verwarming vindt plaats middels een CV installatie (blokverwarming), warm water middels elektrische boiler (eigendom).
Het appartement is gunstig gelegen op een rustige locatie. Daarnaast bevinden zich uitvalswegen, openbaar vervoer en diverse buurtwinkelcentra op korte afstand.
INDELING
Entree/hal, toilet, gesloten keuken en toegang tot balkon, badkamer voorzien van een douchehoek en wastafel. Ruime woonkamer en drie slaapkamers van een goed formaat. De slaapkamer aan de voorzijde heeft direct toegang tot het balkon.
Bijzonderheden:
- Energielabel A.
- Goed onderhouden.
- Leuke, rustige locatie.
- Geheel dubbel glas (gedeeltelijk HR glas) en kunststof kozijnen (grotendeels).
- Het appartementencomplex is in 2019 v.v. zonnepanelen met een accupakket.
- Actieve Vereniging van Eigenaren.
- VVE bijdrage € 242,- (inclusief kosten zonnepanelen).
- Voorschot stookkosten € 41,--.
Het betreft een voormalige huurwoning waarbij de overdracht dient plaats te vinden via de projectnotaris. Informeer naar de overige voorwaarden.
Interesse in de IJsselstraat 93 te Apeldoorn? Bel of mail gerust voor het maken van een bezichtigingsafspraak!
Aanvaarding: in overleg.
Kenmerken
Overdracht
- Laatste vraagprijs
- € 230.000 kosten koper
- Vraagprijs per m²
- € 3.067
- Status
- Verkocht
- Bijdrage VvE
- € 241,74 per maand
Bouw
- Soort appartement
- Portiekflat (appartement)
- Soort bouw
- Bestaande bouw
- Bouwjaar
- 1966
- Soort dak
- Plat dak bedekt met bitumineuze dakbedekking
Oppervlakten en inhoud
- Gebruiksoppervlakten
- Wonen
- 75 m²
- Gebouwgebonden buitenruimte
- 4 m²
- Externe bergruimte
- 19 m²
- Inhoud
- 308 m³
Indeling
- Aantal kamers
- 4 kamers (3 slaapkamers)
- Aantal badkamers
- 1 badkamer en 1 apart toilet
- Badkamervoorzieningen
- Douche en wastafel
- Aantal woonlagen
- 4 woonlagen
- Voorzieningen
- Glasvezelkabel, mechanische ventilatie, en zonnepanelen
- Gelegen op
- 4e woonlaag
Energie
- Energielabel
- A
- Isolatie
- Dubbel glas en HR-glas
- Verwarming
- Blokverwarming
- Warm water
- Elektrische boiler
Kadastrale gegevens
- APELDOORN L 10732
- Kadastrale kaart
- Eigendomssituatie
- Volle eigendom
- APELDOORN L 10732
- Kadastrale kaart
Buitenruimte
- Ligging
- In woonwijk
- Balkon/dakterras
- Balkon aanwezig
Bergruimte
- Schuur/berging
- Inpandig
- Voorzieningen
- Elektra
Parkeergelegenheid
- Soort parkeergelegenheid
- Openbaar parkeren
VvE checklist
- Inschrijving KvK
- Ja
- Jaarlijkse vergadering
- Ja
- Periodieke bijdrage
- Ja (€ 241,74 per maand)
- Reservefonds aanwezig
- Ja
- Onderhoudsplan
- Ja
- Opstalverzekering
- Ja
Foto's 18
© 2001-2025 funda

















