
Omschrijving
Exclusieve stadsvilla op een toplocatie aan het Apeldoorns Kanaal! Zeer unieke en royale stadsvilla waar luxe en comfort samenkomen. Deze royale woning beschikt over een inpandige garage geschikt voor twee auto’s, een voor- en achtertuin en een Frans balkon. Dankzij de indeling en de grote van de woning is er tevens de perfecte mogelijkheid voor een kantoor- of praktijkruimte aan huis te creëren.
Deze unieke 4-laagse stadsvilla is gelegen in het appartementencomplex: ‘Stadspalazzo Rome’ en beschikt over een fraai uitzicht over het brede gedeelte van het kanaal. Op loopafstand van de woning treft u alle denkbare voorzieningen, waaronder: het treinstation, het gezellige centrum van Apeldoorn, diverse uitgaansgelegenheden, een huisartsenpraktijk, apotheek, diverse sportscholen en supermarkten. De Veluwse bossen liggen op ongeveer 4 kilometer van de woning.
Gebruiksoppervlakte wonen: 178m² + inpandige garage 35m²
Indeling
Begane grond: entree, hal met garderobe, meterkast en trap naar de inpandige garage, modern toilet met fonteintje, royale woonkeuken voorzien van diverse inbouwapparatuur en een eilandgedeelte met veel kastruimte. De woonkeuken is tevens voorzien van zeer hoge plafonds en dubbele openslaande deuren naar zowel de voor- als achtertuin. Op deze verdieping is relatief eenvoudig een kantoor-/praktijkruimte aan huis te creëren.
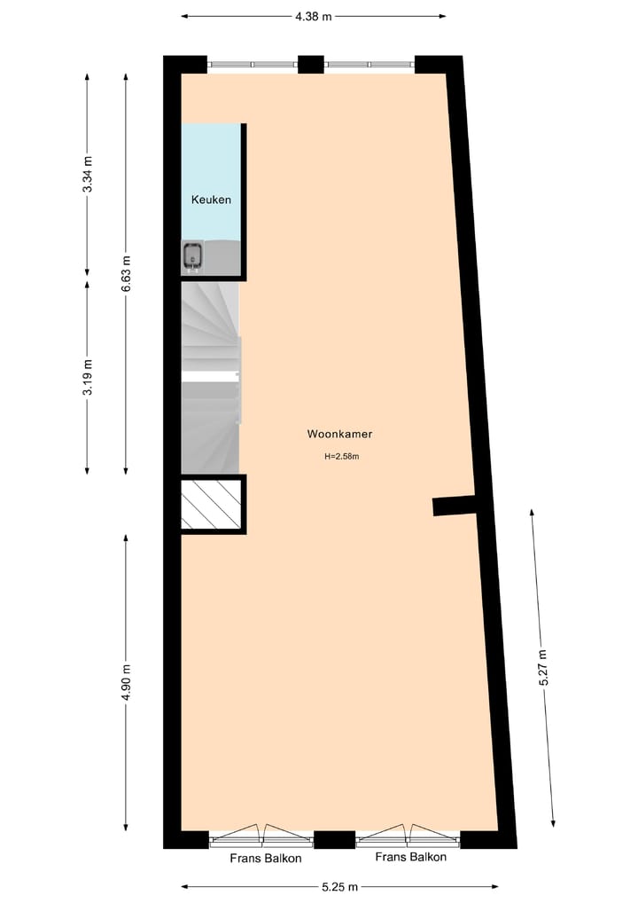
1e verdieping: royale living met 2 zitgedeeltes waarvan het zitgedeelte aan de voorzijde is voorzien van 2 Franse balkons met een fantastisch panoramisch uitzicht over het brede gedeelte van het kanaal. Het zitgedeelte aan de achterzijde beschikt over een pantry/koffiecorner met ingebouwde koelkast. Deze verdieping is voorzien van een fraaie houten parketvloer.
2de verdieping: overloop, 3 ruime slaapkamers waarvan de grote slaapkamer is voorzien van een grote vaste kastenwand, moderne badkamer met dubbele wastafelmeubel, ligbad en inloopdouche. Berging voorzien van aansluiting voor wasapparatuur en opstelling HR Cv-ketel. Separaat 2de toilet met fonteintje.
De garagebox is ca. 35m² groot en is voorzien van een elektrische overheaddeur en geschikt voor 2 auto’s. In de parkeerkelder bestaat er tevens de mogelijkheid om elektrisch te laden.
Bouwjaar 2008. De woning is volledig geïsoleerd en beschikt over een definitief energielabel A. De servicekosten bedragen € 168,61 per maand voor het appartement en € 62,17 per maand voor de parkeerkelder.
Kortom een luxe en modern stadsvilla op een toplocatie die u gezien moet hebben!
Interesse in deze woning? Schakel direct uw eigen NVM aankoopmakelaar in. Uw NVM aankoopmakelaar komt op voor uw belang en bespaart u tijd, geld en zorgen.
Kenmerken
Overdracht
- Oorspronkelijke vraagprijs
- € 665.000 kosten koper
- Laatste vraagprijs
- € 649.500 kosten koper
- Vraagprijs per m²
- € 3.649
- Status
- Verkocht
Bouw
- Soort woonhuis
- Eengezinswoning, tussenwoning
- Soort bouw
- Bestaande bouw
- Bouwjaar
- 2008
- Soort dak
- Plat dak bedekt met bitumineuze dakbedekking
- Keurmerken
- Energie Prestatie Advies
Oppervlakten en inhoud
- Gebruiksoppervlakten
- Wonen
- 178 m²
- Overige inpandige ruimte
- 35 m²
- Perceel
- 145 m²
- Inhoud
- 765 m³
Indeling
- Aantal kamers
- 5 kamers (3 slaapkamers)
- Aantal badkamers
- 1 badkamer en 2 aparte toiletten
- Badkamervoorzieningen
- Douche, dubbele wastafel, ligbad, en vloerverwarming
- Aantal woonlagen
- 3 woonlagen en een kelder
- Voorzieningen
- Buitenzonwering, frans balkon, glasvezelkabel, mechanische ventilatie, en TV kabel
Energie
- Energielabel
- Isolatie
- Dakisolatie, HR-glas, muurisolatie, vloerisolatie en volledig geïsoleerd
- Verwarming
- Cv-ketel
- Warm water
- Cv-ketel
- Cv-ketel
- Remeha Avanta 28c (gas gestookt combiketel uit 2008, eigendom)
Kadastrale gegevens
- APELDOORN M 8920
- Kadastrale kaart
- Oppervlakte
- 144 m²
- Eigendomssituatie
- Volle eigendom
- APELDOORN M 8920
- Kadastrale kaart
- Oppervlakte
- 1 m²
- Eigendomssituatie
- Volle eigendom
Buitenruimte
- Balkon/dakterras
- Frans balkon aanwezig
- Ligging
- Aan rustige weg, aan water, in centrum, in woonwijk en vrij uitzicht
- Tuin
- Achtertuin en voortuin
- Achtertuin
- 43 m² (9,82 meter diep en 4,38 meter breed)
- Ligging tuin
- Gelegen op het oosten bereikbaar via achterom
Garage
- Soort garage
- Garagebox en inpandig
- Capaciteit
- 2 auto's
- Voorzieningen
- Elektrische deur en elektra
Parkeergelegenheid
- Soort parkeergelegenheid
- Op afgesloten terrein en parkeergarage
Foto's 59
© 2001-2026 funda


























































