
Omschrijving
NIEUW TE BOUWEN 2 ONDER 1 KAPWONING MET BERGING EN 2 PARKEERPLAATSEN OP EIGEN TERREIN.
INRUIL EIGEN WONING IS MOGELIJK.
Het object wordt gesitueerd in een besloten zijstraatje nabij de Arnhemseweg.
Eendrachtstraat 6-B is gelegen in de gezellige buurt Zuidwest.
De woning is goed bereikbaar met veel faciliteiten in de buurt. Gelegen op fietsafstand van het centrum van Apeldoorn, loop/fietsafstand van supermarkten, een bus-treinstation en andere openbare voorzieningen.
De autosnelwegen A1 en A 50 liggen op enkele autominuten.
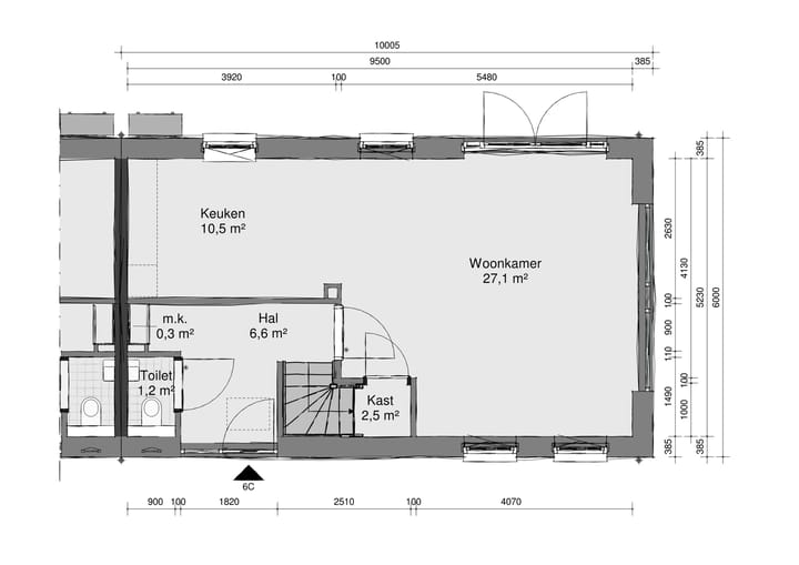
Indeling: Entree, hal, toilet, meterkast, woonkamer met berg/provisiekast en openslaande tuindeuren naar de achterliggende tuin en een open keuken.
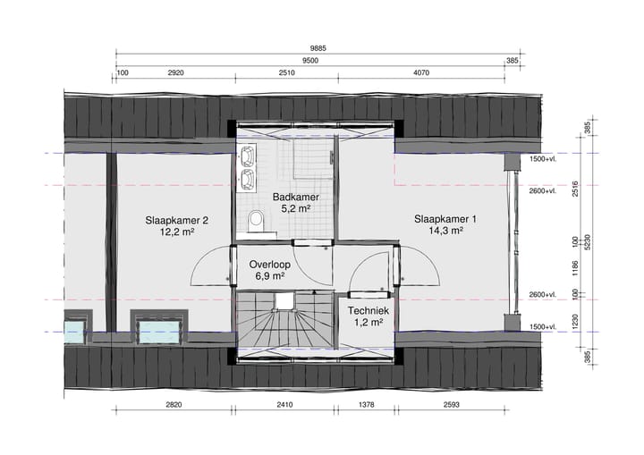
1e verdieping: overloop, 2 slaapkamers, badkamer voorzien van een douche, 2 wastafels, en een technische ruimte.
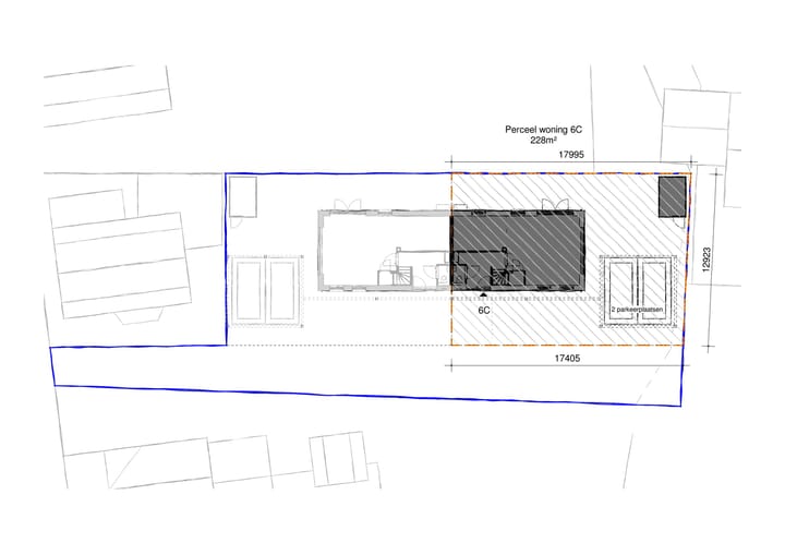
Het perceel dient nog nader te worden ingemeten en bedraagt indicatief circa 228 m2.
De woonoppervlakte bedraagt circa 92 m2.
De woning wordt voorzien van 8 zonnepanelen en een elektrische warmtepomp installatie.
Het betreft een energiezuinig woning met energielabel A +++.
Kenmerken
Overdracht
- Aangeboden sinds
- Aanvaarding
- In overleg
- Vraagprijs
- € 485.000 vrij op naam
- Vraagprijs per m²
- € 5.272
- Status
- Verkocht onder voorbehoud
Bouw
- Soort woonhuis
- Eengezinswoning, 2-onder-1-kapwoning
- Soort bouw
- Nieuwbouw
- Bouwjaar
- 2026
- Soort dak
- Zadeldak bedekt met pannen
Oppervlakten en inhoud
- Gebruiksoppervlakten
- Wonen
- 92 m²
- Externe bergruimte
- 6 m²
- Perceel
- 228 m²
- Inhoud
- 280 m³
Indeling
- Aantal kamers
- 3 kamers (2 slaapkamers)
- Aantal badkamers
- 1 badkamer en 1 apart toilet
- Badkamervoorzieningen
- Douche, dubbele wastafel, en toilet
- Aantal woonlagen
- 2 woonlagen
Energie
- Energielabel
- Isolatie
- Volledig geïsoleerd
- Verwarming
- Warmtepomp
Kadastrale gegevens
- APELDOORN L 7955
- Kadastrale kaart
- Oppervlakte
- 228 m² (deelperceel)
- Eigendomssituatie
- Volle eigendom
Buitenruimte
- Ligging
- In woonwijk
- Tuin
- Achtertuin, voortuin, zijtuin en zonneterras
- Achtertuin
- 40 m² (2,50 meter diep en 16,00 meter breed)
- Ligging tuin
- Gelegen op het zuidwesten bereikbaar via achterom
Bergruimte
- Schuur/berging
- Vrijstaande houten berging
- Voorzieningen
- Elektra
Parkeergelegenheid
- Soort parkeergelegenheid
- Op eigen terrein
Foto's 9
© 2001-2026 funda








