Dit huis op Funda: https://www.funda.nl/detail/koop/apeldoorn/huis-gein-5/43923068/

Omschrijving
In rustig hofje gelegen nabij de Merwedestraat in de rivierenkwartier in Apeldoorn zuid in autoluw hofje deze eengezins tussenwoning met dakopbouw van het bouwjaar 1965 met energielabel B in de prijsklasse vanafprijs € 350.000,-- k.k.
De achtertuin is circa 14 meter diep en op het oosten georiënteerd, geheel bestraat met achterom en een stenen schuur (met nieuw dak) op een totaal perceel van 144 m2. De woning heeft 9 zonnepanelen, na-geïsoleerde vloer en een C.V. van 2024.
Zeer geschikt voor starter, jong gezin met kinderen middels vaste trap totaal 4 slaapkamers.
Welkom aan de Gein 5 in Apeldoorn. Bel voor een afspraak, wij laten het u graag zien.
Indeling:
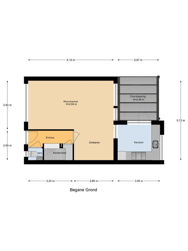
Entree, gang met toilet 2017 zwevend uitgevoerd, bergkast met meterkast, L-vormige tuingerichte woonkamer met parketvloer en tuindeur. In 2023 is de woonkamer/gang licht afwerkt.
Dichte en aangebouwd/ uitgebouwd in 1994 dichte keuken in hoekopstelling van 2010 met close in boiler, koel-/vriescombinatie, vaatwasser, oven, kookplaat, afzuigkap. Deur naar terras/tuin met een aangebouwde overkapping en deels bestraatte achtertuin met kunstgras gelegen op het oosten met achterom en een stenen schuur voor oa de fiets.
1e Verdieping:
Overloop, moderne badkamer 2017 met wastafel, douche en 2e toilet, 3 slaapkamers met inbouwkasten.
Vaste trap naar 2e verdieping:
Overloop met C.V. opstelling 2024, dakopbouw, berging en een inbouwkast, 4e slaap/hobbykamer.
De woning heeft gedeeltelijk dubbele beglazing en screens als zonwering.
Aanvaarding in overleg.
Kenmerken
Overdracht
- Laatste vraagprijs
- € 350.000 kosten koper
- Vraagprijs per m²
- € 3.763
- Status
- Verkocht
Bouw
- Soort woonhuis
- Eengezinswoning, tussenwoning
- Soort bouw
- Bestaande bouw
- Bouwjaar
- 1965
- Soort dak
- Zadeldak bedekt met pannen
- Keurmerken
- Algemene Woning Keur
Oppervlakten en inhoud
- Gebruiksoppervlakten
- Wonen
- 93 m²
- Gebouwgebonden buitenruimte
- 9 m²
- Externe bergruimte
- 10 m²
- Perceel
- 144 m²
- Inhoud
- 325 m³
Indeling
- Aantal kamers
- 5 kamers (4 slaapkamers)
- Aantal badkamers
- 1 badkamer en 1 apart toilet
- Badkamervoorzieningen
- Douche, toilet, en wastafel
- Aantal woonlagen
- 3 woonlagen
- Voorzieningen
- Buitenzonwering, glasvezelkabel, natuurlijke ventilatie, en zonnepanelen
Energie
- Energielabel
- Isolatie
- Dakisolatie, dubbel glas, gedeeltelijk dubbel glas en vloerisolatie
- Verwarming
- Cv-ketel
- Warm water
- Elektrische boiler
- Cv-ketel
- Atag (gas gestookt combiketel uit 2024, eigendom)
Kadastrale gegevens
- APELDOORN L 7580
- Kadastrale kaart
- Oppervlakte
- 144 m²
- Eigendomssituatie
- Volle eigendom
Buitenruimte
- Ligging
- Aan rustige weg en in woonwijk
- Tuin
- Achtertuin en voortuin
- Achtertuin
- 82 m² (14,00 meter diep en 5,85 meter breed)
- Ligging tuin
- Gelegen op het oosten bereikbaar via achterom
Bergruimte
- Schuur/berging
- Vrijstaande stenen berging
- Voorzieningen
- Elektra
- Isolatie
- Geen isolatie
Parkeergelegenheid
- Soort parkeergelegenheid
- Openbaar parkeren
Foto's 35
© 2001-2026 funda


































