
Omschrijving
Aan de westzijde van Apeldoorn, met zowel aan de voor- als achterzijde een prachtig uitzicht over het omliggende groen en de nabijgelegen bossen, ligt deze fraaie vrijstaande woning. De woning beschikt over een aangebouwde garage (momenteel in gebruik als werkkamer) en een fraai aangelegde, vrij gelegen tuin. Hier vind je een verwarmd en overdekt buitenzwembad van 10 x 4 x 1,5 meter, een volledig omheinde paddock met schrikdraad, twee paardenstallen, een was- en poetsplaats en een berging.
De woning is gebouwd in 1983, uitstekend onderhouden en staat op een royaal perceel van maar liefst 1.495 m².
Indeling:
Begane grond: entree, hal met prachtige vide, toiletruimte met modern wandcloset en toegang tot de provisie-/wijnkelder. L- vormige woonkamer met fraai zicht, schouw met gashaard en een tuingerichte woon-/eetkeuken welke voorzien is van diverse inbouwapparatuur. Bijkeuken met wasruimte en doorloop naar de voormalige garage, welke thans ingericht is als werkkamer.
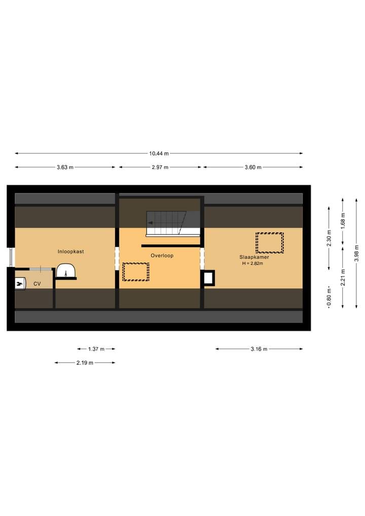
1ste verdieping: overloop, 3 slaapkamers, waarvan de ouderslaapkamer beschikt over een walk-in closet en toegang tot het balkon. Lichte badkamer met inloopdouche, 2de toilet, urinoir, dubbel wasmeubel en sauna.
2de verdieping: overloop met berg-/cv- ruimte/ kleedruimte met wasmeubel en vierde slaapkamer.
Dankzij de uitstekende staat van onderhoud, waaronder geheel aan de buitenzijde geschilderd, in combinatie met 20 zonnepanelen, de prachtige ligging en, voor paardenliefhebbers, de schitterende uitrijmogelijkheden, is deze woning absoluut een bezichtiging waard!
Kenmerken
Overdracht
- Laatste vraagprijs
- € 1.095.000 kosten koper
- Vraagprijs per m²
- € 6.117
- Status
- Verkocht
Bouw
- Soort woonhuis
- Eengezinswoning, vrijstaande woning
- Soort bouw
- Bestaande bouw
- Bouwjaar
- 1983
- Soort dak
- Samengesteld dak bedekt met pannen
Oppervlakten en inhoud
- Gebruiksoppervlakten
- Wonen
- 179 m²
- Overige inpandige ruimte
- 22 m²
- Gebouwgebonden buitenruimte
- 33 m²
- Externe bergruimte
- 62 m²
- Perceel
- 1.495 m²
- Inhoud
- 689 m³
Indeling
- Aantal kamers
- 6 kamers (4 slaapkamers)
- Aantal badkamers
- 1 badkamer en 1 apart toilet
- Badkamervoorzieningen
- Dubbele wastafel, inloopdouche, en toilet
- Aantal woonlagen
- 3 woonlagen en een kelder
- Voorzieningen
- Airconditioning, mechanische ventilatie, zonnepanelen, en zwembad
Energie
- Energielabel
- B
- Isolatie
- Dakisolatie, dubbel glas, muurisolatie en vloerisolatie
- Verwarming
- Cv-ketel
- Warm water
- Cv-ketel
- Cv-ketel
- Nefit Topline (gas gestookt combiketel uit 2007, eigendom)
Kadastrale gegevens
- HOOG SOEREN W 1198
- Kadastrale kaart
- Oppervlakte
- 1.495 m²
- Eigendomssituatie
- Volle eigendom
Buitenruimte
- Ligging
- Aan rustige weg, in woonwijk en vrij uitzicht
- Tuin
- Achtertuin, tuin rondom, voortuin en zijtuin
Bergruimte
- Schuur/berging
- Vrijstaande houten berging
Garage
- Soort garage
- Carport en parkeerplaats
Parkeergelegenheid
- Soort parkeergelegenheid
- Op eigen terrein
Foto's 68
© 2001-2026 funda



































































