Dit huis op Funda: https://www.funda.nl/detail/koop/apeldoorn/huis-hertenlaan-9/43880795/

Omschrijving
Gelegen nabij het Loo en het centrum van Apeldoorn, karakteristiek vrijstaand woonhuis met eigen oprit, vrijstaande garage en vrijstaand stenen schuur, zonnige fraai aangelegde tuin met terrassen gesitueerd op het zuiden, gelegen op een ruim perceel van 377 m².
Indeling
Begane grond: entree, hal, provisiekelder, toilet, ruime en lichte woonkamer, open keuken met 4-pits gasfornuis, afzuigkap, oven, koelkast en dubbele spoelbak, bijkeuken met aansluiting voor wasapparatuur en achteringang.
1e Verdieping: ruime overloop met werkhoek, 3 ruime slaapkamers met inbouwkasten en 2 slaapkamers voorzien van kunststof kozijnen, lichte badkamer met douche en wastafel. Via een luik toegang tot de bergzolder.
Bouwjaar 1910. Gebruiksoppervlakte wonen: 87m². De woning is goed onderhouden, grotendeels voorzien van dubbele beglazing en wordt verwarmd middels gaskachels, warm water middels geiser (huur).
Gunstige ligging op loopafstand van “Paleis Het Loo” en nabij bossen, winkels en uitvalswegen.
Interesse in deze woning? Schakel direct uw eigen NVM-aankoopmakelaar in!
Uw NVM aankoopmakelaar komt op voor uw belang en bespaart u tijd, geld en zorgen.
Kenmerken
Overdracht
- Laatste vraagprijs
- € 375.000 kosten koper
- Vraagprijs per m²
- € 4.310
- Status
- Verkocht
Bouw
- Soort woonhuis
- Eengezinswoning, vrijstaande woning
- Soort bouw
- Bestaande bouw
- Bouwjaar
- 1910
- Soort dak
- Mansarde dak bedekt met pannen
- Keurmerken
- Energie Prestatie Advies
Oppervlakten en inhoud
- Gebruiksoppervlakten
- Wonen
- 87 m²
- Overige inpandige ruimte
- 6 m²
- Externe bergruimte
- 29 m²
- Perceel
- 377 m²
- Inhoud
- 359 m³
Indeling
- Aantal kamers
- 4 kamers (3 slaapkamers)
- Aantal badkamers
- 1 badkamer en 1 apart toilet
- Badkamervoorzieningen
- Douche en wastafel
- Aantal woonlagen
- 2 woonlagen, een vliering, en een kelder
- Voorzieningen
- Buitenzonwering, dakraam, glasvezelkabel, rookkanaal, en TV kabel
Energie
- Energielabel
- G
- Isolatie
- Gedeeltelijk dubbel glas
- Verwarming
- Gaskachels en houtkachel
- Warm water
- Geiser (huur)
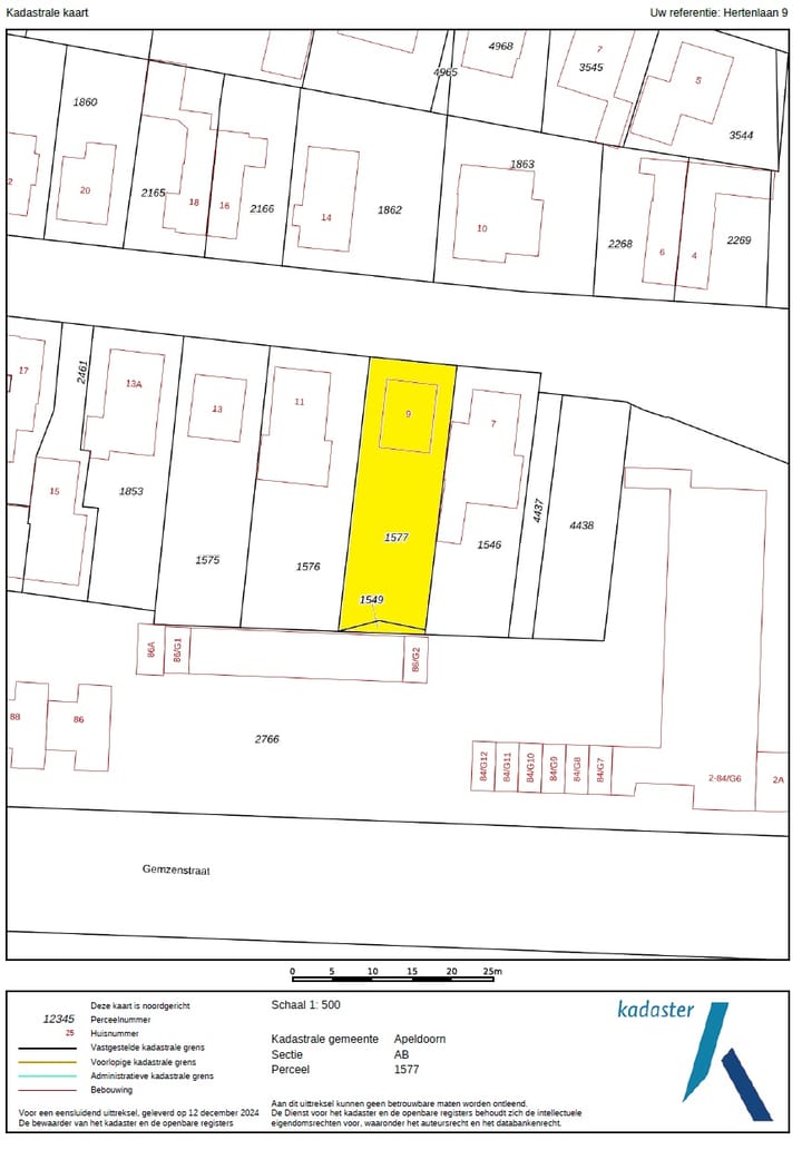
Kadastrale gegevens
- APELDOORN AB 1577
- Kadastrale kaart
- Oppervlakte
- 367 m²
- Eigendomssituatie
- Volle eigendom
- APELDOORN AB 1549
- Kadastrale kaart
- Oppervlakte
- 10 m²
- Eigendomssituatie
- Volle eigendom
Buitenruimte
- Ligging
- In bosrijke omgeving en in woonwijk
- Tuin
- Achtertuin, voortuin en zijtuin
- Achtertuin
- 230 m² (23,00 meter diep en 10,00 meter breed)
- Ligging tuin
- Gelegen op het zuiden
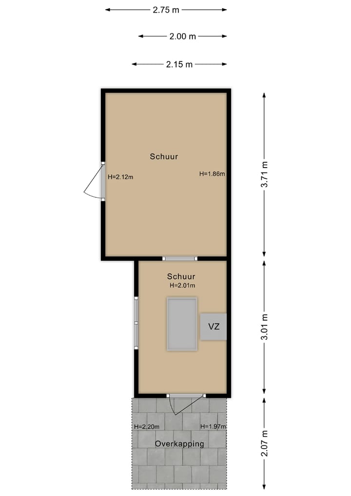
Bergruimte
- Schuur/berging
- Vrijstaande stenen berging
- Voorzieningen
- Elektra
- Isolatie
- Geen isolatie
Garage
- Soort garage
- Parkeerplaats en vrijstaande houten garage
- Capaciteit
- 1 auto
- Voorzieningen
- Elektra
- Isolatie
- Geen isolatie
Parkeergelegenheid
- Soort parkeergelegenheid
- Op eigen terrein
Foto's 43
© 2001-2025 funda










































