Dit huis op Funda: https://www.funda.nl/detail/koop/apeldoorn/huis-hogeweg-37/43861499/

Omschrijving
Aan een rustige straat is deze helft van dubbel woonhuis gelegen. De woning staat op een aantrekkelijk perceel van 371 m² met eigen oprit, diepe tuin en maar liefst 2 vrijstaande houten bergingen.
Zowel winkelcentrum Mercatorplein als de winkels aan de Koninginnelaan bevinden zich op loopafstand. Met enkele minuten fietsen bent u bij Paleis Het Loo of bevindt u zich in het centrum van Apeldoorn.
De woning is gebouwd in 1910 en is v.v. houten kozijnen en geheel dubbel glas. Verwarming vindt plaats door middel van gaskachels.
De eigendomsoverdracht dient plaats te vinden via notariskantoor Wille, daarnaast gelden nog aanvullende voorwaarden waaronder de niet zelfbewonings- en ouderdomsclausule.
INDELING
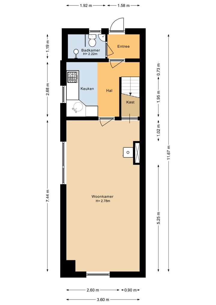
Begane grond: Entree/hal, badkamer v.v. wastafel, toilet en douche, keuken met 4-pits gasstel en afzuigkap, ruime woonkamer
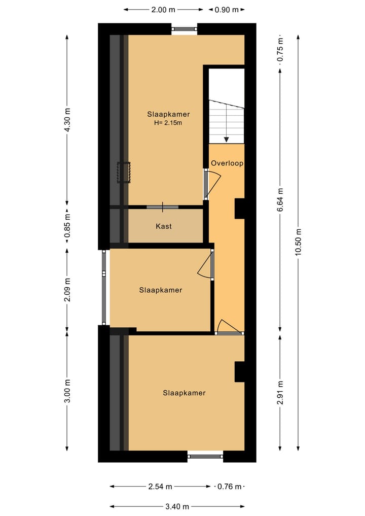
1e verdieping: Overloop en 3 slaapkamers
Interesse in deze woning? Neem direct contact met ons op of schakel uw eigen NVM aankoopmakelaar in. Uw NVM aankoopmakelaar komt op voor uw belang en bespaart u tijd, geld en zorgen.
Aanvaarding in overleg.
Kenmerken
Overdracht
- Laatste vraagprijs
- € 325.000 kosten koper
- Vraagprijs per m²
- € 4.392
- Status
- Verkocht
Bouw
- Soort woonhuis
- Eengezinswoning, 2-onder-1-kapwoning
- Soort bouw
- Bestaande bouw
- Bouwjaar
- 1910
- Soort dak
- Mansarde dak bedekt met pannen
Oppervlakten en inhoud
- Gebruiksoppervlakten
- Wonen
- 74 m²
- Externe bergruimte
- 18 m²
- Perceel
- 371 m²
- Inhoud
- 267 m³
Indeling
- Aantal kamers
- 4 kamers (3 slaapkamers)
- Aantal badkamers
- 1 badkamer
- Badkamervoorzieningen
- Douche, toilet, en wastafel
- Aantal woonlagen
- 2 woonlagen
- Voorzieningen
- Natuurlijke ventilatie en rolluiken
Energie
- Energielabel
- G
- Isolatie
- Dubbel glas
- Verwarming
- Gaskachels
- Warm water
- Geiser
Kadastrale gegevens
- APELDOORN AB 4926
- Kadastrale kaart
- Oppervlakte
- 371 m²
Buitenruimte
- Tuin
- Achtertuin
- Achtertuin
- 210 m² (20,00 meter diep en 10,50 meter breed)
- Ligging tuin
- Gelegen op het noorden
Bergruimte
- Schuur/berging
- Vrijstaande houten berging
- Voorzieningen
- Elektra
Garage
- Soort garage
- Parkeerplaats
Parkeergelegenheid
- Soort parkeergelegenheid
- Op eigen terrein
Foto's 30
© 2001-2025 funda





























