
Omschrijving
Charmante Vrijstaande Villa uit 1933 met 4 Slaapkamers en eigen oprit.
Welkom in deze prachtige, karakteristieke villa uit 1933, gelegen in de geliefde Parkenbuurt. Deze woning ademt historie en biedt tegelijkertijd het comfort van moderne voorzieningen. De villa heeft 4 ruime slaapkamers, een eigen oprit, een zonnige tuin en is perfect onderhouden, zowel binnen als buiten.
Begane grond: Ruim entree en hal met granitovloer, provisiekelder, meterkast, toilet met fonteintje, lichte woonkamer met massief eiken vloer, gashaard, doorgang naar de serre die zich ideaal leent als speelkamer voor de kinderen of een fijne plek voor een goed boek. Met fraaie glas in looddeuren is de eetkamer met moderne keuken bereikbaar. Deze prachtige keuken is voorzien van een kookeiland met inductiekookplaat met ingebouwde afzuigkap, een oven, vaatwasser. In bijkeuken ruimte voor de koelkast en vriezer. Tevens zit hier de aansluitingen voor de wasmachine en droger, netjes verwerkt in een kast met extra opbergruimte. Met openslaande deuren is de tuin bereikbaar. De tuin van de woning is zeer onderhoudsvriendelijk en biedt volop zonlicht, perfect voor buitenactiviteiten of gewoon om van het groen te genieten. Uiteraard ontbreekt een fraaie veranda niet. Een fotoreeks van de tuin in de zomer is beschikbaar, zodat u een goed beeld krijgt van de prachtige tuin.
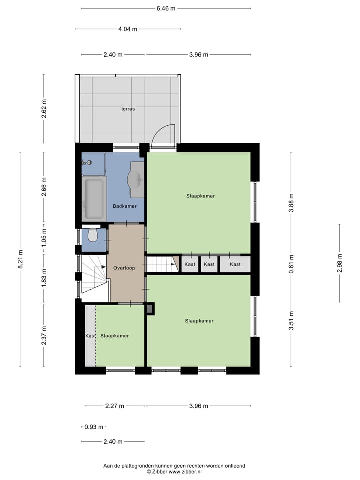
Eerste verdieping: Via de vaste trap kom je op de overloop die toegang verleend aan 3 slaapkamers, separaat toilet en badkamer. De badkamer is v.v. een ligbad, douchehoek en badmeubel met dubbele wastafel. De slaapkamer aan de achterzijde heeft toegang tot het dakterras. Een mooi plekje om op een zomerochtend rustig wakker te worden. Er zijn ingebouwde kasten aanwezig op twee slaapkamers.
Tweede verdieping: Via de vaste trap kom je op een ruime lichte overloop, extra bergruimte en de vierde slaapkamer. Aan ruimte geen gebrek.
Ligging:
De villa ligt in de rustige en groene Parkenbuurt, een wijk aan de noordkant van de binnenstad van Apeldoorn. De wijk staat bekend om zijn parkachtige uitstraling, met de vier aan elkaar grenzende parken: Oranjepark, Wilhelminapark, Prinsenpark en Verzetsstrijderspark. De wijk zelf is ook parkachtig door de relatief grote tuinen, de bomen in de lanen en het stratenplan in Engelse landschapsstijl.
Buren en Omgeving:
De buurt kenmerkt zich door een mix van verschillende leeftijden en een relaxte, vriendelijke sfeer. Het is een ideale plek voor mensen die op zoek zijn naar rust, maar ook naar een levendige gemeenschap. Beschermde stads- en dorpsgezichten zijn bijzonder en zeer waardevol vanwege hun ontstaan. Dit is vaak terug te zien in inrichting van het gebied, de bebouwing, de wegen en het groen. De gemeente Apeldoorn kent drie rijksbeschermde stadsgezicht: De Parken, Hoog Soeren en Radio Kootwijk.
Bijzonderheden:
- 4 ruime slaapkamers;
- De woning heeft zijn charme behouden met originele details, zoals kamer en suite deuren en glas-in-lood ramen;
- Achter de schuur vindt u een handige opbergstrook, die gebruikt kan worden voor extra opslag;
- Energielabel C (geldig t/m 13-11-2034).
Heeft u interesse in deze unieke villa met een rijke geschiedenis, charmante details en een uitstekende ligging in de prachtige Parkenbuurt? Neem contact met ons op voor een bezichtiging of meer informatie. We helpen u graag verder!
Vraagprijs: € 925.000,-- k.k.
Aanvaarding: In overleg.
Aan onvolkomenheden in bovenstaande kunnen geen aanspraken worden ontleend.
Kenmerken
Overdracht
- Laatste vraagprijs
- € 925.000 kosten koper
- Vraagprijs per m²
- € 6.336
- Status
- Verkocht
Bouw
- Soort woonhuis
- Villa, vrijstaande woning
- Soort bouw
- Bestaande bouw
- Bouwjaar
- 1933
- Specifiek
- Beschermd stads- of dorpsgezicht
- Soort dak
- Schilddak bedekt met pannen
Oppervlakten en inhoud
- Gebruiksoppervlakten
- Wonen
- 146 m²
- Overige inpandige ruimte
- 8 m²
- Gebouwgebonden buitenruimte
- 12 m²
- Externe bergruimte
- 10 m²
- Perceel
- 374 m²
- Inhoud
- 571 m³
Indeling
- Aantal kamers
- 9 kamers (4 slaapkamers)
- Aantal badkamers
- 1 badkamer en 2 aparte toiletten
- Badkamervoorzieningen
- Douche, ligbad, wastafel, en wastafelmeubel
- Aantal woonlagen
- 3 woonlagen en een kelder
- Voorzieningen
- Airconditioning en mechanische ventilatie
Energie
- Energielabel
- C
- Isolatie
- Dakisolatie, dubbel glas, HR-glas, muurisolatie, vloerisolatie en voorzetramen
- Verwarming
- Cv-ketel, gashaard en gedeeltelijke vloerverwarming
- Warm water
- Cv-ketel
- Cv-ketel
- Remaha Calenta CW5 (gas gestookt combiketel uit 2022, eigendom)
Kadastrale gegevens
- APELDOORN H 9590
- Kadastrale kaart
- Oppervlakte
- 374 m²
- Eigendomssituatie
- Volle eigendom
Buitenruimte
- Ligging
- Aan rustige weg en in woonwijk
- Tuin
- Achtertuin, voortuin en zijtuin
- Achtertuin
- 190 m² (12,80 meter diep en 14,83 meter breed)
- Ligging tuin
- Gelegen op het noordoosten
- Balkon/dakterras
- Dakterras aanwezig
Bergruimte
- Schuur/berging
- Vrijstaande houten berging
- Voorzieningen
- Elektra
Parkeergelegenheid
- Soort parkeergelegenheid
- Op eigen terrein
Foto's 49
© 2001-2025 funda
















































