Dit huis op Funda: https://www.funda.nl/detail/koop/apeldoorn/huis-warenargaarde-236/43839486/

Omschrijving
Gelegen op een prachtige locatie aan het Matenpark, ruime tussenwoning met eigen parkeerplaats, stenen berging, houten tuinhuis en een zonnige, fraai aangelegde tuin. De woning grenst aan de achterzijde direct aan het Matenpark waardoor je kunt genieten van een prachtig groen uitzicht en optimale privacy!
Op loopafstand van de woning treft u winkelcentrum De Eglantier met een breed winkelaanbod. In het Matenpark treft u diverse voorzieningen waaronder diverse speelveldjes en een kinderboerderij.
Indeling
Begane grond: entree, hal met meterkast en garderobehoek, toilet met fonteintje, lichte tuingerichte woonkamer met trapkast en toegang tot de achtertuin, half open keuken in hoekopstelling voorzien van diverse inbouwapparatuur.
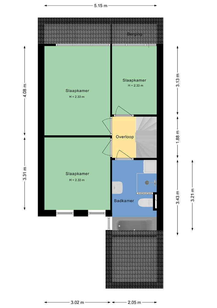
1e verdieping: overloop, 3 ruime slaapkamers allemaal voorzien van kunststof kozijnen met HR++ glas. Grote badkamer met ligbad, wastafelmeubel, douche, 2e toilet en aansluiting voor wasapparatuur.
2e verdieping: voorzolder met opstelling HR Cv-ketel en veel bergruimte achter de knieschotten. Zeer grote 4e slaapkamer met wastafel en bergruimte achter de knieschotten.
De achtertuin beschikt over een groot terras, een gazon en diverse plantenborders. Ook beschikt de achtertuin over een groot houten tuinhuis en een achterom naar het Matenpark. De voortuin beschikt over een parkeerplaats en geeft toegang tot de aangebouwde stenen (fietsen)berging.
Bouwjaar 1982. De woning is volledig voorzien van HR++ glas, dak-, vloer- en spouwisolatie. Ook de houten geveldelen zijn vervangen voor kunststof/keralit. Verwarming en warmwater middels een HR Cv-ketel uit 2023 in combinatie met een zonneboiler. De woning beschikt over een definitief energielabel B.
Diverse voorzieningen zoals basisscholen, kinderboerderij, speelveldjes, winkelcentrum De Eglantier zijn op korte afstand gelegen. Deze woning biedt veel mogelijkheden en de ligging aan het Matenpark is uniek met prachtige wandel- en fietsroutes.
Kortom een goed onderhouden gezinswoning op een unieke locatie aan het Matenpark! Wij laten u de woning graag zien!
Kenmerken
Overdracht
- Laatste vraagprijs
- € 375.000 kosten koper
- Vraagprijs per m²
- € 3.713
- Status
- Verkocht
Bouw
- Soort woonhuis
- Eengezinswoning, tussenwoning
- Soort bouw
- Bestaande bouw
- Bouwjaar
- 1982
- Soort dak
- Dwarskap bedekt met pannen
- Keurmerken
- Energie Prestatie Advies
Oppervlakten en inhoud
- Gebruiksoppervlakten
- Wonen
- 101 m²
- Overige inpandige ruimte
- 6 m²
- Externe bergruimte
- 10 m²
- Perceel
- 140 m²
- Inhoud
- 380 m³
Indeling
- Aantal kamers
- 5 kamers (4 slaapkamers)
- Aantal badkamers
- 1 badkamer en 1 apart toilet
- Badkamervoorzieningen
- Douche, ligbad, toilet, en wastafel
- Aantal woonlagen
- 3 woonlagen en een vliering
- Voorzieningen
- Buitenzonwering, dakraam, glasvezelkabel, mechanische ventilatie, TV kabel, en zonnecollectoren
Energie
- Energielabel
- B
- Isolatie
- Dakisolatie, dubbel glas, HR-glas, muurisolatie, vloerisolatie en volledig geïsoleerd
- Verwarming
- Cv-ketel
- Warm water
- Cv-ketel en zonneboiler
- Cv-ketel
- Intergas HRE 24/28a (gas gestookt combiketel uit 2023, eigendom)
Kadastrale gegevens
- APELDOORN AC 12221
- Kadastrale kaart
- Oppervlakte
- 20 m²
- Eigendomssituatie
- Volle eigendom
- APELDOORN AC 5513
- Kadastrale kaart
- Oppervlakte
- 120 m²
- Eigendomssituatie
- Volle eigendom
Buitenruimte
- Ligging
- Aan park, aan rustige weg, in woonwijk en vrij uitzicht
- Tuin
- Achtertuin en voortuin
- Achtertuin
- 63 m² (11,65 meter diep en 5,37 meter breed)
- Ligging tuin
- Gelegen op het zuidwesten bereikbaar via achterom
Bergruimte
- Schuur/berging
- Aangebouwde stenen berging
- Voorzieningen
- Elektra
- Isolatie
- Geen isolatie
Garage
- Soort garage
- Parkeerplaats
Parkeergelegenheid
- Soort parkeergelegenheid
- Op eigen terrein en openbaar parkeren
Foto's 45
© 2001-2025 funda












































