
Omschrijving
Hoekappartement met volledige privacy!
Dit ruime vierkamerappartement van circa 84 m² is gelegen op de tweede verdieping van een verzorgd appartementencomplex in de wijk Presikhaaf. Het complex is voorzien van een lift en het appartement beschikt over een eigen berging op de begane grond.
De woning heeft drie slaapkamers en een heerlijk balkon op het zuiden, dat zich uitstrekt over de volledige breedte van het appartement. Dankzij de hoekligging geniet je aan de voorzijde van extra privacy: de galerij loopt volledig langs jouw woning, maar wordt door niemand anders gebruikt.
Parkeren is hier geen probleem, er is volop parkeergelegenheid direct voor het complex en in de nabije omgeving.
Locatie:
Het Gamerslagplein ligt aan de oostzijde van Arnhem, tussen winkelcentrum Presikhaaf en park Presikhaaf. Het gerenoveerde en uitgebreide winkelcentrum biedt een breed assortiment, zodat dagelijkse boodschappen eenvoudig lopend kunnen worden gedaan. Het nabijgelegen park beschikt over een waterpartij, stadsboerderij en heemtuin. Kinderopvang, scholen en openbaar vervoer (bus en trein) bevinden zich op loopafstand. Zo zijn de Pleyroute naar Arnhem Zuid, A12, A50, de A15 en de A325 snel te bereiken. Tevens zijn er diverse (hoge) scholen, natuurgebied de Posbank en de binnenstad van Arnhem dichtbij.
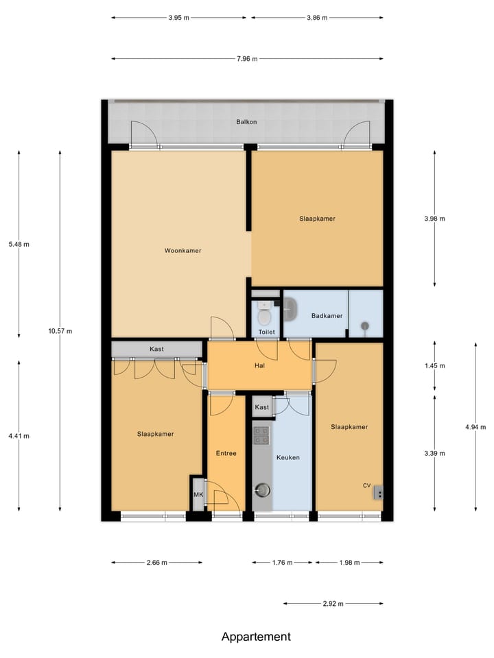
Indeling:
Begane grond:
Via de gezamenlijke afgesloten entree met brievenbussen en intercom bereik je de woning met de trap of lift naar de tweede verdieping.
Tweede verdieping:
Aan de voorzijde van het appartement bevindt zich een brede galerij, die, doordat dit een hoekwoning betreft, alleen door de bewoner wordt gebruikt. Dit zorgt niet alleen voor extra privacy, maar ook voor een prettige, open entree.
Je komt binnen via het tochtportaal, dat toegang geeft tot een centrale hal van waaruit nagenoeg alle vertrekken bereikbaar zijn. Aan de voorzijde bevinden zich de gesloten keuken en twee slaapkamers. De woonkamer ligt aan de achterzijde en grenst aan een derde slaapkamer, die direct vanuit de woonkamer toegankelijk is.
Zowel de woonkamer als deze slaapkamer bieden toegang tot het balkon, dat zich uitstrekt over de volledige breedte van de woning en een fraai, zijwaarts uitzicht biedt op park Presikhaaf. Grote raampartijen zorgen voor veel natuurlijk licht in zowel de woon- als slaapkamers.
De badkamer is uitgerust met een douchehoek en een wastafel. In een van de slaapkamers vind je de geiser en de aansluiting voor de wasmachine. Vanuit de hal is ook de toiletruimte bereikbaar.
Actieve VvE:
Het complex wordt beheerd door een actieve VvE. Deze is uitbesteed en er worden jaarlijks vergaderingen gehouden. De VvE bijdrage is € 169,74 per maand. De VvE is bezig met een verduurzamingsplan, wat betekent dat de VvE-bijdrage in de toekomst zal stijgen; daarentegen zullen de energielasten naar verwachting dalen.
Algemeen:
- bouwjaar 1964
- woonoppervlakte: 84 m2
- balkon: 10 m2
- externe bergruimte 4 m2
Bijzonderheden:
- hoekligging
- vrije ligging zonder inkijk of passerende buren
- ruim appartement met 3 slaapkamers
- het complex is voorzien van een liftinstallatie
- blokverwarming voor verwarming en geiser t.b.v. warm water
- nabij winkelcentrum en park Presikhaaf
- berging in de onderbouw
- alle voorzieningen in de directe nabijheid
- balkon op het zuiden met uitzicht op het park
- voldoende parkeermogelijkheden
- Maandelijkse VvE bijdrage € 169,74
- energielabel E
Kenmerken
Overdracht
- Laatste vraagprijs
- € 235.000 kosten koper
- Vraagprijs per m²
- € 2.798
- Status
- Verkocht
- Bijdrage VvE
- € 169,74 per maand
Bouw
- Soort appartement
- Galerijflat (appartement)
- Soort bouw
- Bestaande bouw
- Bouwjaar
- 1964
- Specifiek
- Gedeeltelijk gestoffeerd
- Soort dak
- Plat dak
Oppervlakten en inhoud
- Gebruiksoppervlakten
- Wonen
- 84 m²
- Gebouwgebonden buitenruimte
- 10 m²
- Externe bergruimte
- 4 m²
- Inhoud
- 262 m³
Indeling
- Aantal kamers
- 4 kamers (3 slaapkamers)
- Aantal badkamers
- 1 badkamer en 1 apart toilet
- Badkamervoorzieningen
- Douche en wastafel
- Aantal woonlagen
- 1 woonlaag
- Voorzieningen
- Buitenzonwering, lift, en natuurlijke ventilatie
- Gelegen op
- 2e woonlaag
Energie
- Energielabel
- Isolatie
- Dubbel glas en muurisolatie
- Verwarming
- Blokverwarming
- Warm water
- Geiser
Kadastrale gegevens
- ARNHEM T 2060
- Kadastrale kaart
- Eigendomssituatie
- Volle eigendom
Buitenruimte
- Ligging
- Aan park, in woonwijk en vrij uitzicht
- Balkon/dakterras
- Balkon aanwezig
Bergruimte
- Schuur/berging
- Box
- Voorzieningen
- Elektra
Parkeergelegenheid
- Soort parkeergelegenheid
- Openbaar parkeren
VvE checklist
- Inschrijving KvK
- Ja
- Jaarlijkse vergadering
- Ja
- Periodieke bijdrage
- Ja (€ 169,74 per maand)
- Reservefonds aanwezig
- Ja
- Onderhoudsplan
- Ja
- Opstalverzekering
- Ja
Foto's 34
© 2001-2026 funda

































