
Hommelseweg 3846821 LW ArnhemOnder de Linden
€ 369.000 k.k.
Omschrijving
In het geliefde Sonsbeekkwartier, op loopafstand van buurtwinkels, horeca, het gezellige centrum, het monumentale Sonsbeekpark en uitvalswegen gelegen, ruime bovenwoning met een balkon en separate berging.
De woning, gebouwd in 1933, had origineel 6 kamers, wat eenvoudig kan worden hersteld en is voorzien van diverse originele details, waaronder natuurstenen schouwen, stucwerk plafonds, roeden verdeling in de ramen en paneeldeuren.
Zoek je een karakteristieke woning die je helemaal naar eigen wens kunt moderniseren? Neem dan zeker contact met ons op. Er zijn verschillende ruime subsidieregelingen, die het verduurzamen zeer aantrekkelijk maken.
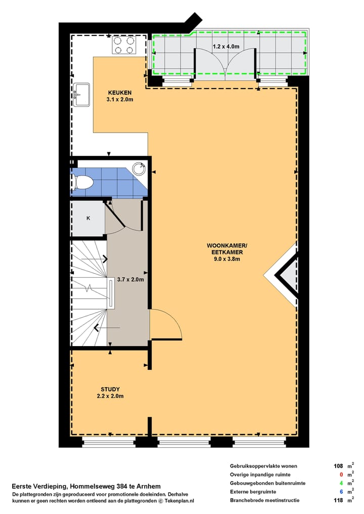
De woonoppervlakte is 108 m².
De woning heeft een energielabel D, geldig tot december 2035.
Indeling:
Begane grond: entree; hal voorzien van meterkast, trap naar de 1e verdieping.
1e verdieping:
Hal met ruime bergkast, toilet met fontein, royale L-vormige woonkamer met mooie authentieke schouwen, openslaande deuren naar het balkon, doorloop naar de keuken voorzien van gaskookplaat, afzuigkap en combi-oven.
2e verdieping: De overloop heeft een 2e toilet met opstelplaats voor de c.v. ketel. De zeer grote slaap- of werk kamer aan de voorzijde (voormalig 2 kamers) met panoramaview over het sonsbeekkwartier heeft een pantry en vaste kast met wasmachine-aansluiting. De badkamer is voorzien van bad, douche, dubbele wastafel en handdoekradiator. De slaapkamer aan de achterzijde heeft 2 ruime vaste kasten.
Bijzonderheden:
- C.v. ketel (Remeha Avanta 2016);
- Fraaie oorspronkelijke elementen;
- Lichte woning;
- Er is een intentieverklaring om de VvE te activeren, ook is er een inschrijving bij de KVK;
- De externe berging van 7m2 is te bereiken via een achterpad.
Kenmerken
Overdracht
- Aangeboden sinds
- Aanvaarding
- In overleg
- Vraagprijs
- € 369.000 kosten koper
- Vraagprijs per m²
- € 3.417
- Status
- Beschikbaar
Bouw
- Soort appartement
- Bovenwoning (appartement)
- Soort bouw
- Bestaande bouw
- Bouwjaar
- 1935
- Soort dak
- Plat dak
Oppervlakten en inhoud
- Gebruiksoppervlakten
- Wonen
- 108 m²
- Gebouwgebonden buitenruimte
- 4 m²
- Externe bergruimte
- 6 m²
- Inhoud
- 380 m³
Indeling
- Aantal kamers
- 3 kamers (2 slaapkamers)
- Aantal badkamers
- 1 badkamer en 2 aparte toiletten
- Badkamervoorzieningen
- Douche, dubbele wastafel, ligbad, en wastafelmeubel
- Aantal woonlagen
- 2 woonlagen
- Voorzieningen
- Natuurlijke ventilatie en TV kabel
- Gelegen op
- 2e woonlaag
Energie
- Energielabel
- Isolatie
- HR-glas
- Verwarming
- Cv-ketel
- Warm water
- Cv-ketel
- Cv-ketel
- Remeha Advanta (gas gestookt combiketel uit 2015, eigendom)
Kadastrale gegevens
- ARNHEM C 8022
- Kadastrale kaart
- Eigendomssituatie
- Volle eigendom
Buitenruimte
- Ligging
- In bosrijke omgeving en in woonwijk
- Balkon/dakterras
- Balkon aanwezig
Bergruimte
- Schuur/berging
- Vrijstaande stenen berging
Parkeergelegenheid
- Soort parkeergelegenheid
- Openbaar parkeren
VvE checklist
- Inschrijving KvK
- Ja
- Jaarlijkse vergadering
- Nee
- Periodieke bijdrage
- Nee
- Reservefonds aanwezig
- Nee
- Onderhoudsplan
- Nee
- Opstalverzekering
- Nee
Foto's 34
Plattegronden 4
© 2001-2026 funda





































