
Omschrijving
In het hart van de 7 straatjes, in het centrum van Arnhem, ligt dit mooi gelegen appartement. Het appartement beschikt over een rustig gelegen balkon welke is gesitueerd op het westen.
De locatie kan niet centraler en biedt vele voordelen. Door de diversiteit aan winkels, cafés, restaurants en theater is het in hartje Arnhem leuk om te shoppen en om uit te gaan. Hier woon je in een ontspannen omgeving met alles wat je nodig hebt binnen handbereik. Lekkere koffie op mooie terrasjes, leuke winkels en het NS-station op loopafstand. Nabij Arnhem ligt op korte fietsafstand het prachtige stadspark Sonsbeek, de prachtige Posbank en de veelzijdige Veluwe!
Indeling:
Begane grond:
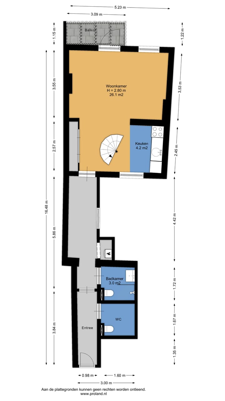
Gezamenlijk entree met intercom.
Eerste verdieping:
Entree, overloop met toegang naar separaat toilet, stookruimte, badkamer welke is voorzien van inloopdouche, toilet en wasbak, ruime woonkamer met open keuken welke is uitgerust met diverse inbouwapparatuur, waaronder een gasfornuis, koelkast en afzuigkap. Vanuit de woonkamer is er toegang naar het balkon.
Tweede verdieping:
Via de wenteltrap kom je uit op de ruime overloop. Deze overloop kan worden gebruikt als bergruimte of kantoor. Vanuit de overloop kom je uit bij de slaapkamer.
Bijzonderheden:
+ Licht en fris tweekamerappartement;
+ Geheel voorzien van HR++ beglazing;
+ Zeer geliefde locatie;
+ Energielabel B;
+ NEN 2580 meetrapport aanwezig;
Aanvaarding: per direct
Kenmerken
Overdracht
- Laatste vraagprijs
- € 285.000 kosten koper
- Vraagprijs per m²
- € 3.654
- Status
- Verkocht
Bouw
- Soort appartement
- Tussenverdieping (appartement)
- Soort bouw
- Bestaande bouw
- Bouwjaar
- 1890
- Soort dak
- Zadeldak bedekt met pannen
Oppervlakten en inhoud
- Gebruiksoppervlakten
- Wonen
- 78 m²
- Gebouwgebonden buitenruimte
- 4 m²
- Inhoud
- 247 m³
Indeling
- Aantal kamers
- 2 kamers (1 slaapkamer)
- Aantal badkamers
- 1 badkamer en 1 apart toilet
- Badkamervoorzieningen
- Douche, inloopdouche, toilet, en wastafelmeubel
- Aantal woonlagen
- 2 woonlagen en een zolder
- Voorzieningen
- Dakraam, mechanische ventilatie, en natuurlijke ventilatie
Energie
- Energielabel
- Isolatie
- Dakisolatie, dubbel glas, HR-glas, muurisolatie en vloerisolatie
- Verwarming
- Cv-ketel
- Warm water
- Cv-ketel
- Cv-ketel
- C.V.-Ketel (gas gestookt combiketel uit 2017, eigendom)
Kadastrale gegevens
- ARNHEM O 9111
- Kadastrale kaart
- Eigendomssituatie
- Volle eigendom
Buitenruimte
- Ligging
- In centrum
Parkeergelegenheid
- Soort parkeergelegenheid
- Betaald parkeren en parkeervergunningen
VvE checklist
- Inschrijving KvK
- Ja
- Jaarlijkse vergadering
- Nee
- Periodieke bijdrage
- Nee
- Reservefonds aanwezig
- Nee
- Onderhoudsplan
- Nee
- Opstalverzekering
- Ja
Foto's 26
© 2001-2026 funda

























