
Omschrijving
In dit monumentale herenhuis, dat door architect Willem Diehl ontworpen is, komt dit fraaie appartement beschikbaar. Op steenworp afstand gelegen van het Sonsbeekpark, openbaar vervoer, station Arnhem, het centrum van Arnhem en de gezellige restaurantjes in de tegenovergelegen wijk ‘Sint Marten’.
Het appartement beschikt over veel natuurlijk daglichtinval, een moderne en hoogwaardige afwerking met een warme maar neutrale kleurstelling, privé balkon aan de voorzijde en een airconditioning welke in 2024 is aangesloten. Ten slotte is er nog een gemeenschappelijke fietsenberging aanwezig in de zij-tuin.
Indeling:
Bel etage:
Gezamenlijke entree, ruime hal met trapopgang naar de eerste verdieping en de overige appartementen en toegang naar de onderbouw met meterkasten.
Appartement:
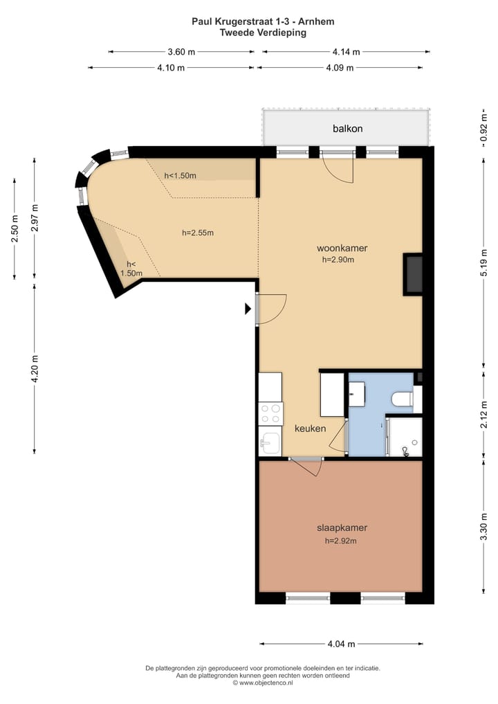
Entree, met aan de rechterzijde meteen de open keuken in neutrale kleurstelling, v.v. diverse inbouwapparatuur, de badkamer met douchecabine, toilet en wastafel met meubel en de ruime slaapkamer. Het appartement heeft een zeer ruime woonkamer met prachtige raampartijen en een gezellige ruimte in de “ronding” van het pand - ideaal voor bijvoorbeeld de eethoek - met fraai glaswerk in de originele raampartijen. Het balkon is vanuit de woonkamer toegankelijk.
Bijzonderheden:
• Op steenworp gelegen van Sonsbeekpark, Arnhem Centrum en OV (station);
• Ontworpen door architect Willem Diehl;
• Monumentaal herenhuis (gemeentelijk);
• VvE kosten € 150,- per maand;
• Eigen water-, gas- en elektrameter;
• Buitenschilderwerk 2018/2019;
• Fraaie eiken houten vloeren in het appartement gelegd;
• Hoogwaardig afwerkingsniveau;
• Gemeenschappelijke fietsenberging.
Kenmerken
Overdracht
- Laatste vraagprijs
- € 319.000 kosten koper
- Vraagprijs per m²
- € 5.907
- Status
- Verkocht
- Bijdrage VvE
- € 150,00 per maand
Bouw
- Soort appartement
- Bovenwoning (appartement)
- Soort bouw
- Bestaande bouw
- Bouwjaar
- 1904
- Specifiek
- Monumentaal pand
- Soort dak
- Samengesteld dak bedekt met bitumineuze dakbedekking en leisteen
Oppervlakten en inhoud
- Gebruiksoppervlakten
- Wonen
- 54 m²
- Gebouwgebonden buitenruimte
- 4 m²
- Inhoud
- 195 m³
Indeling
- Aantal kamers
- 2 kamers (1 slaapkamer)
- Aantal badkamers
- 1 badkamer
- Badkamervoorzieningen
- Inloopdouche, toilet, en wastafelmeubel
- Aantal woonlagen
- 1 woonlaag
- Voorzieningen
- Mechanische ventilatie en natuurlijke ventilatie
- Gelegen op
- 4e woonlaag
Energie
- Energielabel
- Niet beschikbaar
- Isolatie
- Dakisolatie, gedeeltelijk dubbel glas, muurisolatie en vloerisolatie
- Verwarming
- Cv-ketel
- Warm water
- Cv-ketel
- Cv-ketel
- CV (gas gestookt combiketel, eigendom)
Kadastrale gegevens
- ARNHEM N 8222
- Kadastrale kaart
- Eigendomssituatie
- Volle eigendom
Buitenruimte
- Ligging
- In bosrijke omgeving en in woonwijk
- Balkon/dakterras
- Balkon aanwezig
Bergruimte
- Schuur/berging
- Vrijstaande stenen berging
- Voorzieningen
- Elektra
Parkeergelegenheid
- Soort parkeergelegenheid
- Openbaar parkeren en parkeervergunningen
VvE checklist
- Inschrijving KvK
- Ja
- Jaarlijkse vergadering
- Nee
- Periodieke bijdrage
- Nee
- Reservefonds aanwezig
- Nee
- Onderhoudsplan
- Nee
- Opstalverzekering
- Ja
Foto's 26
© 2001-2025 funda

























