Dit huis op Funda: https://www.funda.nl/detail/koop/arnhem/huis-tormentilstraat-8/43198084/

Tormentilstraat 86813 EP ArnhemHeijenoord
€ 495.000 k.k.
Omschrijving
Deze karakteristieke tussenwoning uit de jaren ’30 is gelegen in de rustige en geliefde wijk ‘Heijenoord’. Aan de voorzijde geniet de woning van een vrij uitzicht over het groen, de diepe achtertuin beschikt over een handige achterom en een praktische stenen berging. De woonkamer is voorzien van openslaande deuren met originele glas-in-lood bovenlichten, wat bijdraagt aan de authentieke uitstraling. Met drie goed bemeten slaapkamers is er voldoende ruimte voor een gezin of thuiswerkplek. Via een vlizotrap is de bergzolder bereikbaar, die extra bergruimte biedt. Deze woning biedt een uitstekende kans om geheel naar eigen smaak te moderniseren en in te richten.
De wijk ‘Heijenoord’ is rustig en kindvriendelijk, met veel gezinnen die hier hun ideale thuis hebben gevonden. De binnenstad van Arnhem en het Centraal Station zijn binnen enkele minuten met de auto of fiets te bereiken. Op loopafstand ligt het prachtige bos Mariëndaal, perfect voor ontspannende wandelingen in de natuur. Daarnaast zijn openbaar vervoer, diverse winkels, supermarkten en de uitvalswegen naar verschillende snelwegen snel en eenvoudig bereikbaar.
Indeling
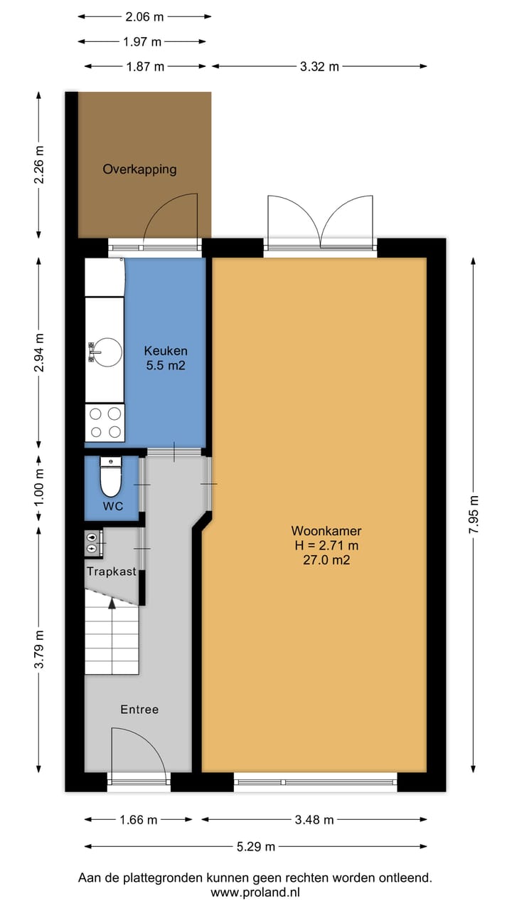
Begane grond:
Entree met een ruime hal die toegang biedt tot de trapopgang naar de eerste verdieping, een provisiekast en een apart toilet. De doorzonwoonkamer is voorzien van stijlvolle openslaande deuren met originele glas-in-lood bovenlichten, die uitkomen op de diepe achtertuin. De dichte keuken is uitgerust met een eenvoudig keukenblok en biedt via een deur directe toegang tot de achtertuin. De tuin beschikt over een stenen berging, die via een overkapping met de woning is verbonden. Daarnaast is er een handige achterom, wat zorgt voor extra gemak.
Verdieping:
Vanaf de overloop zijn drie slaapkamers bereikbaar. Twee van de kamers zijn ruimer van formaat en beschikken over zowel een wastafel als een vaste kast. De badkamer is eenvoudig uitgevoerd en voorzien van een douche.
Vliering:
Een luik met vlizotrap geeft toegang tot de ruime vliering, ideaal voor extra opbergruimte.
Bijzonderheden
• Charmante tussenwoning;
• Unieke kans om naar eigen wens te moderniseren;
• Drie slaapkamers;
• Diepe achtertuin met stenen bering en achterom;
• Gunstige ligging in kindvriendelijke en groene wijk;
• NEN 2580 meetrapport aanwezig.
Kenmerken
Overdracht
- Aangeboden sinds
- Aanvaarding
- In overleg
- Vraagprijs
- € 495.000 kosten koper
- Vraagprijs per m²
- € 5.893
- Status
- Beschikbaar
Bouw
- Soort woonhuis
- Eengezinswoning, tussenwoning
- Soort bouw
- Bestaande bouw
- Bouwjaar
- 1935
- Soort dak
- Zadeldak bedekt met pannen
Oppervlakten en inhoud
- Gebruiksoppervlakten
- Wonen
- 84 m²
- Overige inpandige ruimte
- 10 m²
- Gebouwgebonden buitenruimte
- 5 m²
- Externe bergruimte
- 5 m²
- Perceel
- 140 m²
- Inhoud
- 343 m³
Indeling
- Aantal kamers
- 4 kamers (3 slaapkamers)
- Aantal badkamers
- 1 badkamer en 1 apart toilet
- Badkamervoorzieningen
- Douche
- Aantal woonlagen
- 3 woonlagen
- Voorzieningen
- Glasvezelkabel, natuurlijke ventilatie, en TV kabel
Energie
- Energielabel
- Isolatie
- Gedeeltelijk dubbel glas
- Verwarming
- Cv-ketel
- Warm water
- Cv-ketel
- Cv-ketel
- Gas gestookt combiketel, eigendom
Kadastrale gegevens
- ARNHEM P 3531
- Kadastrale kaart
- Oppervlakte
- 140 m²
- Eigendomssituatie
- Volle eigendom
Buitenruimte
- Ligging
- In bosrijke omgeving, in woonwijk en vrij uitzicht
- Tuin
- Achtertuin en voortuin
- Achtertuin
- 27 m² (5,00 meter diep en 5,42 meter breed)
- Ligging tuin
- Gelegen op het noordoosten bereikbaar via achterom
Bergruimte
- Schuur/berging
- Vrijstaande stenen berging
- Voorzieningen
- Elektra
Parkeergelegenheid
- Soort parkeergelegenheid
- Openbaar parkeren
Foto's 34
Plattegronden 4
© 2001-2026 funda





































