
Omschrijving
Nieuwbouw appartement in Koopmanstaete met twee ruime slaapkamers in het centrum van Assen.
Vier jaar geleden zijn deze nieuwe appartementen in hartje Assen opgeleverd. Het is dus van alle gemakken voorzien en met recht modern en instap-klaar te noemen. Met alle voorzieningen op loopafstand zoals een supermarkt, winkels, restaurants en cafés is dit de ideale plek om te wonen. Daarnaast heeft het een energielabel A++ en is er de mogelijkheid om één van de slaapkamers bij de woonkamer te betrekken voor een ruimere woonkamer. Voor ieder wat wils dus!
Indeling:
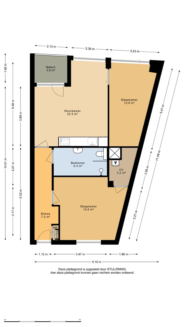
Via de gezamenlijke entree is het complex toegankelijk. Het appartement is gelegen op de eerste verdieping en met de trap of lift bereikbaar. Hier bevindt zich een grote gedeelde binnenplaats. Hier is de ingang naar het appartement met als eerste de hal en toegang tot de woonkamer met moderne, open keuken met alle nodige inbouwapparatuur zoals een vaatwasser, oven, inductiekookplaat, koelkast met vriesvak en een afzuigkap. Vanwege de grote raampartijen heeft deze ruimte veel daglicht. Vanuit de woonkeuken is het balkon toegankelijk en de eerste slaapkamer van ca. 14 m² met een grote raampartij. Indien je een grotere woonkamer en/of eethoek zou willen hebben, is deze kamer ook gemakkelijk bij de woonkamer te betrekken. Aan de achterzijde van het het appartement is de grootste slaapkamer gelegen van ca. 17 m². Ook is hier nog een opbergruimte met de technische ruimte. Vanuit de hal is de badkamer te vinden welke is voorzien van een toilet, inloopdouche en wastafel.
Beneden in het complex is een gemeenschappelijke berging te vinden voor de fiets.
-Energielabel A++
-Voorzien van een lift
-Voorzien van warmtepomp
-Gelegen in hartje Assen
-Originele bouwjaar 1993, volledig renovatie/nieuwbouw van de bovenliggende appartementen in 2021.
Kenmerken
Overdracht
- Laatste vraagprijs
- € 245.000 kosten koper
- Vraagprijs per m²
- € 3.403
- Status
- Verkocht
- Bijdrage VvE
- € 145,00 per maand
Bouw
- Soort appartement
- Portiekflat (appartement)
- Soort bouw
- Bestaande bouw
- Bouwjaar
- 2021
- Soort dak
- Plat dak
Oppervlakten en inhoud
- Gebruiksoppervlakten
- Wonen
- 72 m²
- Gebouwgebonden buitenruimte
- 4 m²
- Inhoud
- 233 m³
Indeling
- Aantal kamers
- 3 kamers (2 slaapkamers)
- Aantal badkamers
- 1 badkamer
- Badkamervoorzieningen
- Douche, toilet, en wastafel
- Aantal woonlagen
- 1 woonlaag
- Voorzieningen
- Balansventilatie en lift
- Gelegen op
- 1e woonlaag
Energie
- Energielabel
- A++
- Isolatie
- Dubbel glas, HR-glas en muurisolatie
- Verwarming
- Warmtepomp
Kadastrale gegevens
- ASSEN S 3267A
- Kadastrale kaart
- Eigendomssituatie
- Volle eigendom
Buitenruimte
- Balkon/dakterras
- Balkon aanwezig
Parkeergelegenheid
- Soort parkeergelegenheid
- Betaald parkeren, openbaar parkeren en parkeervergunningen
VvE checklist
- Inschrijving KvK
- Ja
- Jaarlijkse vergadering
- Ja
- Periodieke bijdrage
- Ja (€ 145,00 per maand)
- Reservefonds aanwezig
- Ja
- Onderhoudsplan
- Ja
- Opstalverzekering
- Ja
Foto's 31
© 2001-2025 funda






























