
Omschrijving
Ruime hoekwoning met garage en energielabel A in de geliefde wijk Kloosterveen.
Nabij het centrum van de wijk staat de instapklare HOEKWONING met vrijstaande stenen garage en parkeergelegenheid op eigen terrein in de wijk KLOOSTERVEEN. De woning is voorzien van een ruime woon-/eetkamer, moderne open keuken, een nette badkamer en een keurig aangelegde achtertuin op het zuiden. Een praktisch ingedeelde woning met achterom en zonnige tuin op het zuiden.
De woning ligt in de geliefde wijk: Kloosterveen. Kloosterveen is een ruim opgezette wijk vol groen en waterpartijen, perfect voor jong en oud. Direct achter de woning ligt een speelveldje met een bankje en speeltoestel, ideaal voor kinderen. Op loopafstand vind je een divers winkelcentrum, meerdere basisscholen, een sportschool, sportfaciliteiten en een gezondheidscentrum. Voor ontspanning zijn recreatiegebieden zoals de Baggelhuizerplas, het Arboretum en het Fochteloërveen dichtbij, evenals de eigen haven van de wijk.
Met het centrum van Assen op fietsafstand en een uitstekende bereikbaarheid dankzij bushaltes in de wijk en een snelle aansluiting op de A28 richting Groningen, Drachten, Hoogeveen en Zwolle, is de ligging van Kloosterveen perfect om te genieten van het beste van zowel stad als natuur.
INDELING
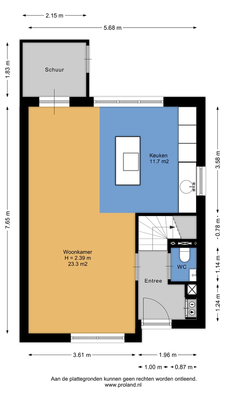
Begane grond:
Entree/ hal met uitgebreide meterkast, garderobe, modern toilet, trapopgang en toegang tot de woonkamer. Lichte woonkamer met aansluitend de ruime open keuken. De volledige benedenverdieping is voorzien van een visgraat PVC vloer. De moderne keuken (2022) is voorzien van een inductiekookplaat, koelkast, diepvries, vaatwasser en heetwaterkraan. De keuken is tuingericht en heeft grote ramen die voor veel lichtinval zorgen. Via de keuken kun je de tuin betreden. Achterin de tuin bevindt zich de vrijstaande stenen garage en is er voldoende ruimte om een auto te parkeren.
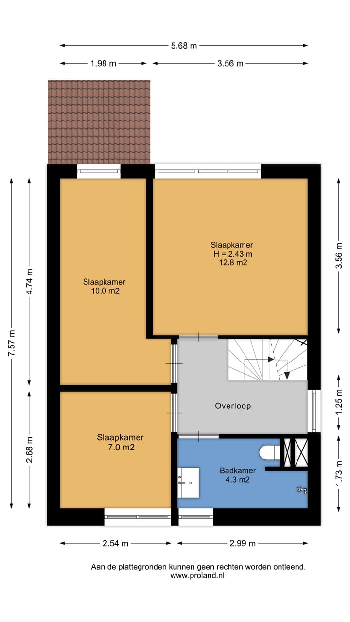
Eerste verdieping
Via de trap kom je binnen op de ruime overloop met vaste trap naar de tweede verdieping, de verdieping kent drie ruime slaapkamers en badkamer, voorzien van inloopdouche, wastafelmeubel en een tweede toilet.
Tweede verdieping
Via de vaste trap bereik je de tweede verdieping. Deze verdieping is voorzien van een nette en ruime slaap/ werkkamer. Ook is er veel opbergruimte achter de makkelijk toegankelijke knieschotten (voorzien van verlichting). Een overloop met aparte ruimte voor de Cv-installatie (Nefit Trendlinde CW5, 2016), mechanische ventilatie, zonneboiler en witgoedaansluitingen.
Bijzonderheden en sterke punten:
- 4 slaapkamers
- Tuin op het Zuiden
- Voorzien van 9 zonnepanelen met een vermogen van 305 WP per paneel (2019)
- Parkeren kan op eigen terrein in zowel de garage als op de eigen parkeerplaats aan de achterzijde
- Moderne keuken
- Voorzien van een zonneboiler
Virtueel al te bezichtigen!
Deze woning heeft een unieke eigen website met onder andere een virtuele tour. Druk rechts op 'Download Brochure' en kom alles te weten van het appartement en de omgeving!
Toelichting meting gebruiksoppervlakte
Deze woning is gemeten op basis van de Branche Brede Meetinstructie (BBMI). Deze meetinstructie is bedoeld om een meer eenduidige manier van meten toe te passen voor het geven van een indicatie van de gebruiksoppervlakte. De Meetinstructie sluit verschillen in meetuitkomsten niet volledig uit, door bijvoorbeeld interpretatieverschillen, afrondingen of beperkingen bij het uitvoeren van de meting.
Kenmerken
Overdracht
- Laatste vraagprijs
- € 375.000 kosten koper
- Vraagprijs per m²
- € 3.289
- Status
- Verkocht
Bouw
- Soort woonhuis
- Eengezinswoning, hoekwoning
- Soort bouw
- Bestaande bouw
- Bouwjaar
- 2004
- Soort dak
- Lessenaardak
Oppervlakten en inhoud
- Gebruiksoppervlakten
- Wonen
- 114 m²
- Overige inpandige ruimte
- 4 m²
- Externe bergruimte
- 18 m²
- Perceel
- 243 m²
- Inhoud
- 407 m³
Indeling
- Aantal kamers
- 6 kamers (4 slaapkamers)
- Aantal badkamers
- 1 badkamer en 1 apart toilet
- Badkamervoorzieningen
- Inloopdouche, toilet, wastafel, en wastafelmeubel
- Aantal woonlagen
- 3 woonlagen
- Voorzieningen
- Mechanische ventilatie en TV kabel
Energie
- Energielabel
- A
- Isolatie
- Volledig geïsoleerd
- Verwarming
- Cv-ketel
- Warm water
- Zonneboiler
- Cv-ketel
- Nefit Cw 5 (gas gestookt combiketel uit 2016, eigendom)
Kadastrale gegevens
- ASSEN Q 5290
- Kadastrale kaart
- Oppervlakte
- 243 m²
- Eigendomssituatie
- Volle eigendom
Buitenruimte
- Tuin
- Achtertuin, voortuin en zijtuin
- Achtertuin
- 120 m² (8,00 meter diep en 15,00 meter breed)
- Ligging tuin
- Gelegen op het zuiden
Bergruimte
- Schuur/berging
- Vrijstaande stenen berging
Parkeergelegenheid
- Soort parkeergelegenheid
- Op eigen terrein
Foto's 37
© 2001-2025 funda




































