Dit huis op Funda: https://www.funda.nl/detail/koop/axel/huis-ds-jan-scharpstraat-22/89634016/

Ds. Jan Scharpstraat 224571 GX AxelKern Axel
€ 189.000 k.k.
Blikvangerheerlijk gelegen, nette, instapklare starterswoning met 3 slaapkamers
Omschrijving
Welkom in de woning aan de Ds. Jan Scharpstraat 22 in Axel.
Bent u op zoek naar een bijzonder nette, instapklare woning? Dan is een bezichtiging van dit huis zeker de moeite waard.
Deze half vrijstaande woning met een zonnige tuin met berging is gelegen op 82 m² eigen grond in een rustige woonwijk van Axel dichtbij het centrum.
Hier geniet u iedere dag van de sfeer en ruimte die de woning biedt!
+ instapklaar
+ moderne badkamer
+ 3 slaapkamers
+ keurig verzorgd
+ bijkeuken
+ centraal gelegen
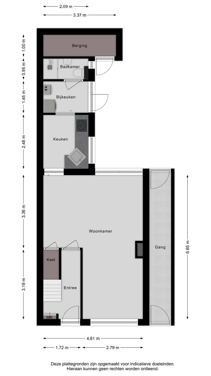
Begane grond:
Entree:
Via de voordeur komt u in de sfeervolle woning.
Hal:
Via de hal met laminaatvloer komt u in de woonkamer. In de hal bevindt zich de meterkast en de trap naar 1e verdieping.
Woonkamer:
De ruime woonkamer heeft een laminaatvloer en veel lichtinval door de raampartijen. Vanuit de woonkamer heeft u toegang tot de trapkast en, via de stijlvolle industriële deur, tot de keuken.
Keuken:
De keurige keuken met zicht op de achtertuin is voorzien van een vinylvloer met visgraatlook, natuurstenen aanrechtblad en en inbouwapparatuur: keramische kookplaat, afzuigkap en een vaatwasser. Vanuit de keuken heeft u toegang tot de bijkeuken.
Bijkeuken:
De bijkeuken is voorzien van een vinylvloer met visgraatlook. In de bijkeuken bevinden zich de aansluitingen voor de wasmachine en droger en de cv-installatie. Vanuit de bijkeuken heeft u toegang tot de achtertuin.
Badkamer:
De badkamer is recentelijk vernieuwd (2022) en voorzien van een heerlijke regendouche, wastafel, toilet en elektrische handdoekradiator.
Bijzonderheden begane grond:
* deels voorzien van een laminaatvloer
* deels voorzien van een vinylvloer met visgraat design
* volledig voorzien van (hard)houten kozijnen
* grotendeels voorzien van dubbelglas
* meterkast met 4 groepen inclusief kookgroep, 1 aardlekschakelaar
* glasvezel KPN
* bijkeuken
* moderne badkamer (2022)
* cv Nefit (+/-2012)
1e verdieping:
Overloop:
De overloop is voorzien van een laminaatvloer en biedt toegang tot de drie slaapkamers en de vlizotrap naar de bergzolder.
Slaapkamers:
Op de 1e verdieping zijn drie slaapkamers met een laminaatvloer en veel lichtinval door de raampartijen. Eén slaapkamer is voorzien van inbouwkasten
Bijzonderheden 1e verdieping:
* volledig voorzien van een laminaatvloer
* grotendeels voorzien van kunststof kozijnen
* voorzien van draai / kiepramen
* voorzien van HR++ glas
* deels voorzien van vliegenhorren
* voorzien van origenele deuren
* voorzien van een zonnescreen
Bergzolder:
Via een vlizotrap heeft u toegang tot de bergzolder. De zolder is voorzien van elektra en verlichting en biedt veel bergruimte
Bijzonderheden bergzolder:
* veel bergruimte
* dakisolatie
* voorzien van elektriciteit en licht
Tuin:
De onderhoudsvriendelijke achtertuin is gelegen op het oosten, heeft een gedeelde vrij achterom en is aangelegd in 2023. Achterin de tuin staat een berging.
In de tuin kunt u heerlijk van het buitenleven genieten!
Bijzonderheden tuin:
* onderhoudsvriendelijk
* veel privacy
* berging
* vrij achterom
Berging:
In de tuin is een kleine berging voorzien van elektriciteit en verlichting. Ideaal voor het opslaan van (tuin)gereedschap en / of (tuin)meubelen.
afmeting berging: 3,40 m x 1,00 m
oppervlakte berging: 3,40 m²
Bijzonderheden:
Deze woning ligt in het gezellige dorp Axel op wandelafstand van het centrum. De voorzieningen zoals basisscholen, supermarkten, winkels, restaurants en sportaccommodaties liggen op loopafstand. De woning ligt op fietsafstand van de Zeeuwse polders.
Met de auto bent u snel in Terneuzen, Hulst, Gent, Brugge, Antwerpen, Middelburg, Goes of bij het Noordzeestrand.
De Westerscheldetunnel is tolvrij sinds 1-1-2025 (m.u.v. vrachtverkeer)
Heeft u nog vragen? Of wilt u een bezichtiging?
Bel, app, mail of kom gewoon langs!
Nog een prettige dag!
GeuS uw makelaar
Kenmerken
Overdracht
- Aangeboden sinds
- Aanvaarding
- In overleg
- Vraagprijs
- € 189.000 kosten koper
- Vraagprijs per m²
- € 2.700
- Status
- Beschikbaar
Bouw
- Soort woonhuis
- Eengezinswoning, halfvrijstaande woning
- Soort bouw
- Bestaande bouw
- Bouwjaar
- 1930
- Soort dak
- Mansarde dak bedekt met pannen
- Keurmerken
- Energie Prestatie Advies
Oppervlakten en inhoud
- Gebruiksoppervlakten
- Wonen
- 70 m²
- Overige inpandige ruimte
- 3 m²
- Gebouwgebonden buitenruimte
- 7 m²
- Perceel
- 83 m²
- Inhoud
- 278 m³
Indeling
- Aantal kamers
- 4 kamers (3 slaapkamers)
- Aantal badkamers
- 1 badkamer
- Badkamervoorzieningen
- Douche, toilet, en wastafel
- Aantal woonlagen
- 2 woonlagen en een zolder
- Voorzieningen
- Glasvezelkabel
Energie
- Energielabel
- E
- Isolatie
- Dakisolatie en grotendeels dubbelglas
- Verwarming
- Cv-ketel
- Warm water
- Cv-ketel
- Cv-ketel
- Nefit (gas gestookt combiketel uit 2012, eigendom)
Kadastrale gegevens
- AXEL G 3753
- Kadastrale kaart
- Oppervlakte
- 83 m²
- Eigendomssituatie
- Volle eigendom
Buitenruimte
- Ligging
- Aan rustige weg en in woonwijk
- Tuin
- Achtertuin
- Achtertuin
- 36 m² (6,50 meter diep en 5,50 meter breed)
- Ligging tuin
- Gelegen op het oosten bereikbaar via achterom
Bergruimte
- Schuur/berging
- Vrijstaande stenen berging
Parkeergelegenheid
- Soort parkeergelegenheid
- Openbaar parkeren
Foto's 29
Plattegronden 3
© 2001-2025 funda































