
Omschrijving
Deze instapklare en ruime tussenwoning zal je bij binnenkomst direct verrassen. Op de begane grond is een hal, meterkast, garderobekast, toilet, woonkamer met open keuken, trapkast en een privacy biedende achtertuin voorzien van een ruime (geïsoleerde) overkapping. Naast de 3 slaapkamers is er op de 1e verdieping een badkamer. Met een vaste trap kun je naar de 2e verdieping waar je een open ruimte hebt. Winkels, scholen en sportvelden zijn op loopafstand aanwezig. Ben jij op zoek naar een instapklare woning? Dan is deze woning zeker iets voor jou!
Bouwjaar : 2009
Perceeloppervlakte : 140 m²
Aanvaarding : In onderling overleg
Indeling:
Begane grond
Via de entree kom je in de hal met de meterkast ( 7 groepen, 2 aardlekschakelaars, 1 hoofdschakelaar en 1 beltrafo), een garderobekast, de betegelde toiletruimte met wandcloset en fontein en de trapopgang naar de 1e verdieping. Vanuit de hal kun je naar de woonkamer met open keuken.
De keuken heeft een hoekopstelling met diverse onderkasten, lades, een inductiekookplaat, een r.v.s. afzuigkap, een combi oven/magnetron, een koelkast, een vaatwasmachine, een r.v.s. spoelbak en een kunststof werkblad.
De tuingerichte woonkamer staat in open verbinding met de keuken aan de voorzijde van de woning (samen circa 36 m² groot). Extra bergruimte vind je in de trapkast. Via een loopdeur kun je naar de achtertuin met overkapping.
1e verdieping
De overloop biedt toegang tot 3 slaapkamers en de badkamer. Met een vaste trap kun je naar de 2e verdieping.
De slaapkamer gelegen aan de voorzijde van de woning is ca. 3.44. x 3.51 m groot. De twee slaapkamers gelegen aan de achterzijde van de woning zijn ca. 4.84 x 3.51 m en ca. 2.91 x 2.09 m groot. Momenteel is één van deze slaapkamers in gebruik als “walk-in-closet”.
De geheel betegelde badkamer (ca. 2.20 x 2.61 m) is voorzien van een inloopdouche, staand closet, een wastafel met wastafelmeubel, een wandradiator en mechanische ventilatie.
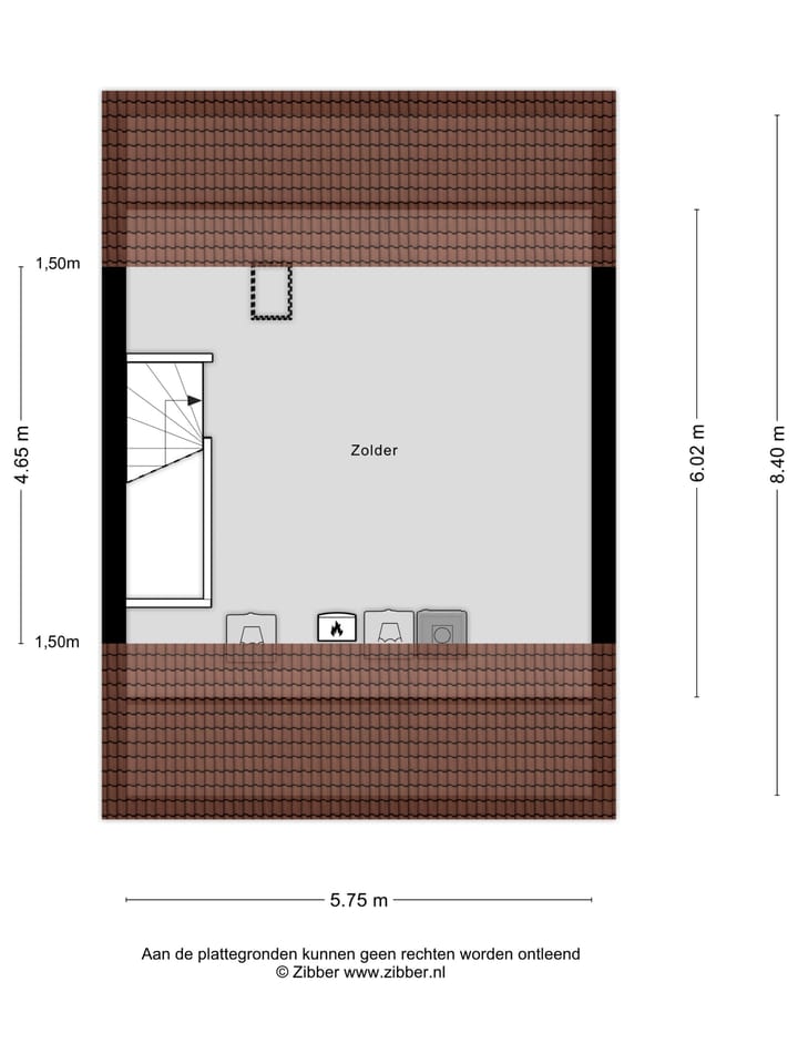
2e verdieping
Met een vaste trap kom je op de 2e verdieping. Je hebt hier een open ruimte van ca. 27 m² groot met een dakraam en de aansluitingen ten behoeve van de was- en droogapparatuur. Als je dat wilt, dan kun je op deze verdieping eenvoudig een extra slaapkamer creëren.
Tevens bevinden zich op deze verdieping de opstelplaats van de c.v.-combiketel (Intergas, 2009) en de ventilatie-unit.
Tuin, overkapping & berging
De voortuin is voorzien van borders, welke voorzien zijn van verlichting. De achtertuin met eigen achterom is gelegen op het noorden, ca. 8 m diep en voorzien van sierbestrating. Je hebt in deze tuin geen directe inkijk van achterburen.
Eind 2024 is er door de huidige bewoners een serre over de volledige breedte van het perceel gerealiseerd, welke voorzien is van wand en dakisolatie. Deze serre is zéér behaaglijk door de aanwezigheid van een sfeervolle houthaard en biedt de mogelijkheid om tot in de late uurtjes lekker buiten te zitten. De aluminium schuifpui zorgt ervoor dat u de gehele ruimte kunt afsluiten.
Achter in de tuin bevindt zich een houten berging voorzien van elektra. Tevens is er een houthok aanwezig en kunt u de vuilcontainers netjes in de tuin opbergen.
Kenmerken
o Bouwjaar 2009.
o Hardhouten kozijnen.
o HR++ beglazing.
o Energielabel A.
o De begane grondvloer en de verdiepingsvloeren zijn van beton.
o C.v.-combiketel (Intergas, 2009).
o De gehele woning is voorzien van een laminaatvloer.
o De wanden en plafonds in de gehele woning zijn voorzien glad stucwerk.
o Privacy biedende tuin.
o Parkeergelegenheid in de directe omgeving van de woning.
o Scholen, sportvelden en winkels zijn dichtbij.
o Aanvaarding in overleg.
Baarle-Nassau
Baarle is een enclavedorp dat bestaat uit België en Nederland. Deze twee landen liggen kris kras door elkaar. Er zijn zelfs huizen die deels in België en deels in Nederland staan. Het Belgische Baarle-Hertog en het Nederlandse Baarle-Nassau heeft een hoog voorzieningenniveau met diverse supermarkten, bakkers, kledingwinkels, cafés en restaurants. Ook vind je er diverse sportverenigingen, twee basisscholen en een middelbare school. Brabantse steden zoals Breda, Tilburg en ‘s-Hertogenbosch zijn vlot bereikbaar, maar ook de Belgische steden Turnhout en Antwerpen. Naar de steden Tilburg, Breda en Turnhout zijn goede busverbindingen. Wil je even ontspannen? Dan wandel je naar visvijver ’t Goordonk. Rust en ruimte om te wonen met goede voorzieningen en de steden dichtbij. Kortom, het is fijn wonen in Baarle-Nassau!
Verkoopvoorwaarden
- Meetinstructie NEN2580
Deze woning is opgemeten conform de Meetinstructie. De Meetinstructie is gebaseerd op de NEN2580. De Meetinstructie is bedoeld om een meer eenduidige manier van meten toe te passen voor het geven van een indicatie van de gebruiksoppervlakte en inhoud. De Meetinstructie sluit verschillen in meetuitkomsten niet volledig uit, door bijvoorbeeld interpretatieverschillen, afrondingen of beperkingen bij het uitvoeren van de meting. Uitgangspunt blijft altijd; “wat je ziet is wat je koopt” en de objectinformatie is van lagere prioriteit.
Kenmerken
Overdracht
- Laatste vraagprijs
- € 400.000 kosten koper
- Vraagprijs per m²
- € 4.124
- Status
- Verkocht
Bouw
- Soort woonhuis
- Eengezinswoning, tussenwoning
- Soort bouw
- Bestaande bouw
- Bouwjaar
- 2009
- Soort dak
- Zadeldak bedekt met pannen
Oppervlakten en inhoud
- Gebruiksoppervlakten
- Wonen
- 97 m²
- Overige inpandige ruimte
- 27 m²
- Gebouwgebonden buitenruimte
- 21 m²
- Externe bergruimte
- 8 m²
- Perceel
- 140 m²
- Inhoud
- 437 m³
Indeling
- Aantal kamers
- 6 kamers (3 slaapkamers)
- Aantal badkamers
- 1 apart toilet
- Aantal woonlagen
- 3 woonlagen
- Voorzieningen
- Glasvezelkabel en mechanische ventilatie
Energie
- Energielabel
- A
- Verwarming
- Cv-ketel en houtkachel
- Warm water
- Cv-ketel
- Cv-ketel
- Intergas (gas gestookt combiketel uit 2009, eigendom)
Kadastrale gegevens
- BAARLE-NASSAU C 4751
- Kadastrale kaart
- Oppervlakte
- 140 m²
- Eigendomssituatie
- Volle eigendom
Buitenruimte
- Ligging
- Aan rustige weg, in centrum en in woonwijk
- Tuin
- Achtertuin en voortuin
- Achtertuin
- 49 m² (8,50 meter diep en 5,75 meter breed)
- Ligging tuin
- Gelegen op het noorden bereikbaar via achterom
Bergruimte
- Schuur/berging
- Vrijstaande houten berging
- Voorzieningen
- Elektra
Parkeergelegenheid
- Soort parkeergelegenheid
- Openbaar parkeren
Foto's 29
© 2001-2025 funda




























