Dit huis op Funda: https://www.funda.nl/detail/koop/baarn/huis-van-speijklaan-26/43088762/

Omschrijving
Ruime hoekwoning met diepe achtertuin in rustige en kindvriendelijke wijk
Gelegen in de geliefde en kindvriendelijke Zeeheldenwijk, met openbare parkeergelegenheid direct voor de deur, bevindt zich deze robuuste en ruime hoekwoning uit 1972. De woning beschikt over een verzorgde voortuin en een diepe, zonnige achtertuin op het noordwesten, voorzien van een stenen berging en een achterom. Het perceeloppervlak bedraagt 154 m² en de woonoppervlakte circa 121 m².
De woning is gunstig gelegen ten opzichte van scholen, sportvoorzieningen en het gezellige stadscentrum, dat per fiets goed bereikbaar is. Een degelijke gezinswoning met potentie, die na modernisering kan uitgroeien tot een comfortabele woning met de woonwensen van nu.
Deze woning wordt tot 1 augustus 2025 uitsluitend verkocht aan een voor Stichting Omthuis aanvaardbare kandidaat. Deze kandidaat dient aantoonbaar huurder van Stichting Omthuis Baarn en/of Leusden te zijn. Verkoop geschiedt onder voorbehoud gunning Omthuis.
I N D E L I N G
Overdekte entree, hal met meterkast en garderobenis. Z-vormige woon-/eetkamer met laminaatvloer. Open, eenvoudige keuken in L-opstelling met dubbele spoelbak, afzuigkap en wasmachineaansluiting. Tussenhal met trapkast en toilet met fonteintje. Aansluitend een praktische bijkeuken met wasmachineaansluiting en buitendeur naar de achtertuin.
1 E V E R D I E P I N G
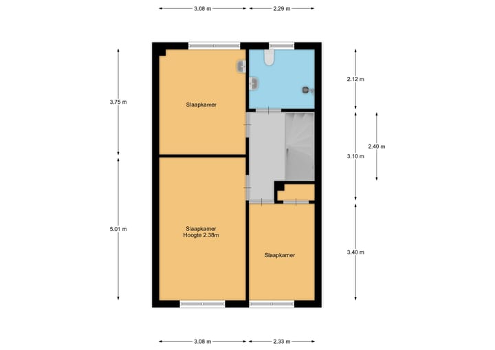
Overloop met toegang tot drie royale slaapkamers. De kleinere slaapkamer aan de voorzijde beschikt over een inbouwkast en de slaapkamer aan de achterzijde heeft een eigen wastafel. De badkamer is uitgerust met een douche, wastafelmeubel en toilet.
2 E V E R D I E P I N G
Overloop/voorzolder met bergruimte en toegang tot een ruime berging met opstelling van de cv-combiketel. Tot slot een vierde royale slaapkamer met dakraam.
K E N M E R K E N
- woonoppervlakte 121 m²
- perceeloppervlakte 154 m²
- diepe achtertuin op het noordwesten met achterom
- stenen berging in de achtertuin
- gelegen in rustige en kindvriendelijke wijk
- op fietsafstand van het stadscentrum
- voormalig huurwoning, dient gemoderniseerd te worden
- verkoop conform verkoopvoorwaarden van Omthuis
- overdracht via vaste notaris: Jager Bokdam De Visser, Soest
Een ruime gezinswoning op een fijne locatie, met mogelijkheden om er een modern en comfortabel thuis van te maken.
Kenmerken
Overdracht
- Laatste vraagprijs
- € 510.000 kosten koper
- Vraagprijs per m²
- € 4.215
- Status
- Verkocht
Bouw
- Soort woonhuis
- Eengezinswoning, hoekwoning
- Soort bouw
- Bestaande bouw
- Bouwjaar
- 1972
- Soort dak
- Zadeldak bedekt met pannen
Oppervlakten en inhoud
- Gebruiksoppervlakten
- Wonen
- 121 m²
- Externe bergruimte
- 9 m²
- Perceel
- 154 m²
- Inhoud
- 423 m³
Indeling
- Aantal kamers
- 5 kamers (4 slaapkamers)
- Aantal badkamers
- 1 badkamer en 1 apart toilet
- Badkamervoorzieningen
- Douche, toilet, en wastafel
- Aantal woonlagen
- 2 woonlagen en een zolder
- Voorzieningen
- Dakraam, glasvezelkabel, mechanische ventilatie, en natuurlijke ventilatie
Energie
- Energielabel
- C
- Isolatie
- Dakisolatie, dubbel glas en HR-glas
- Verwarming
- Cv-ketel
- Warm water
- Cv-ketel
- Cv-ketel
- Gas gestookt combiketel, eigendom
Kadastrale gegevens
- BAARN M 4362
- Kadastrale kaart
- Oppervlakte
- 154 m²
Buitenruimte
- Ligging
- Aan rustige weg, in woonwijk en vrij uitzicht
- Tuin
- Achtertuin en voortuin
- Achtertuin
- 72 m² (12,00 meter diep en 6,00 meter breed)
- Ligging tuin
- Gelegen op het noordwesten bereikbaar via achterom
Bergruimte
- Schuur/berging
- Vrijstaande stenen berging
- Voorzieningen
- Elektra
Parkeergelegenheid
- Soort parkeergelegenheid
- Openbaar parkeren
Foto's 28
© 2001-2025 funda



























