
Omschrijving
WAT EEN PARELTJE...
Een luxueus uitgevoerd 3-kamer appartement van ca 91 m2 met gigantische achtertuin met overkapping ligt verborgen in het gezellige Badhoevedorp.
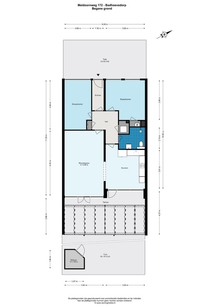
De grote woonkamer met woonkeuken aan de achterzijde gaat harmonieus over in de grote tuin. Er zijn geen achterburen, dus je bent verzekerd van van je privacy. Over de gehele achterzijde is een grote overkapping geplaatst. Hier zit je heerlijk beschut te genieten van de zon, uitkijkend over het vele groen. Er zijn 2 slaapkamers aan de voorzijde. De badkamer is modern uitgevoerd in wit en v.v. een inloopdouche, toilet en een wastafelmeubel. Verder tref je nog een aparte berging voor de wasmachine.
Een ander pluspunt is de centrale ligging, vlakbij Amsterdam en alle uitvalswegen. Schiphol is binnen 10 autominuten bereikbaar.
Kortom, een comfortabel huis, met hoogwaardige materialen verbouwd, op een fijne locatie. Je kunt er zo in!
LOCATIE
Badhoevedorp is dankzij de sluiting van de A9 getransformeerd tot een gezellig dorp met een dorpshart. Je vindt er rust en ruimte en dat vlakbij Amsterdam! In de dorpskern is het gezellig winkelen. Niet alleen voor alle dagelijkse boodschappen, ook de delicatesse winkels, kleding- en cadeauwinkels bieden een groot aanbod. Er zijn diverse restaurants en horecagelegenheden en sportverenigingen, zoals sportschool HealthCity, Golfbaan The International, Tennispark TVB, voetbal- en hockeyclubs. Ook vind je er scholen en kinderopvang
Het appartementencomplex ligt in een rustige en groene omgeving vlakbij het Amsterdamse Bos, de Nieuwe Meer en de brug over de Ringvaart naar Amsterdam. De bereikbaarheid met het openbaar vervoer is goed. De woning ligt centraal ten opzichte van diverse uitvalswegen naar Amsterdam, Schiphol, Amstelveen, Haarlem en Hoofddorp (A4, A9, A10).
Amsterdam ligt op 20 minuten fietsen en op Schiphol ben je in 10 autominuten.
HIGHLIGHTS
- Bouwjaar 1977;
- 3 kamer appartement;
- Woonoppervlakte ca 91 m2;
- Energielabel C;
- Gelegen op eigen grond;
- Gratis parkeren voor de deur;
- Tuin op het zuidoosten van ca 101 m2;
- Voortuin van ca. 31 m2;
- Berging in de onderbouw en houten schuur in tuin;
- Servicekosten € 294,- per maand;
- CV-ketel Remeha september 2018;
- Professioneel beheerde en gezonde VvE;
- Op fietsafstand van Amsterdam;
- Houten kozijnen met dubbel beglazing;
- Notaris naar keuze koper;
- Turn-key woning, indicatie oplevering april 2024.
Kenmerken
Overdracht
- Laatste vraagprijs
- € 450.000 kosten koper
- Vraagprijs per m²
- € 4.945
- Status
- Verkocht
- Bijdrage VvE
- € 294,00 per maand
Bouw
- Soort appartement
- Benedenwoning (appartement)
- Soort bouw
- Bestaande bouw
- Bouwjaar
- 1977
- Soort dak
- Plat dak bedekt met bitumineuze dakbedekking
Oppervlakten en inhoud
- Gebruiksoppervlakten
- Wonen
- 91 m²
- Externe bergruimte
- 10 m²
- Inhoud
- 321 m³
Indeling
- Aantal kamers
- 3 kamers (2 slaapkamers)
- Aantal badkamers
- 1 badkamer en 1 apart toilet
- Badkamervoorzieningen
- Inloopdouche, toilet, en wastafelmeubel
- Aantal woonlagen
- 1 woonlaag
- Voorzieningen
- Natuurlijke ventilatie en TV kabel
- Gelegen op
- Begane grond
Energie
- Energielabel
- C
- Isolatie
- Dubbel glas
- Verwarming
- Cv-ketel
- Warm water
- Cv-ketel
- Cv-ketel
- Remeha Avante 28C (gas gestookt combiketel uit 2018, eigendom)
Kadastrale gegevens
- HAARLEMMERMEER H 10151
- Kadastrale kaart
- Eigendomssituatie
- Volle eigendom
- HAARLEMMERMEER H 10151
- Kadastrale kaart
- Oppervlakte
- Deelperceel
- Eigendomssituatie
- Volle eigendom
Buitenruimte
- Ligging
- In woonwijk
- Tuin
- Achtertuin en voortuin
- Achtertuin
- 94 m² (11,60 meter diep en 8,08 meter breed)
- Ligging tuin
- Gelegen op het zuidoosten bereikbaar via achterom
Bergruimte
- Schuur/berging
- Box
- Voorzieningen
- Elektra
Parkeergelegenheid
- Soort parkeergelegenheid
- Openbaar parkeren
VvE checklist
- Inschrijving KvK
- Ja
- Jaarlijkse vergadering
- Ja
- Periodieke bijdrage
- Ja (€ 294,00 per maand)
- Reservefonds aanwezig
- Ja
- Onderhoudsplan
- Ja
- Opstalverzekering
- Ja
Foto's 26
© 2001-2025 funda

























