
Weidesleep kavel 305 + 3068314 BM BantBant-woonkern
€ 413.700 v.o.n.
Omschrijving
Nieuw te bouwen 2-onder-1 kapwoning met aangebouwde berging in nieuwbouw van polderdorp Bant!
In de nieuwbouw van polderdorp Bant wordt deze prachtige tweekapper gebouwd in samenwerking met Bouw Totaal Emmeloord. Een unieke kans om je eigen buren zelf uit te kiezen! En dit is niet zomaar de eerste de beste nieuwbouwwoning. Hoogwaardige materialen en installaties zijn voor deze aannemer de standaard. Denk o.a. aan:
• Kunststof kozijnen
• Zinken hemelwaterafvoeren,
• Warmtepomp met groot boilervat (300L)
• 8 zonnepanelen
• Binnenkozijnen hout
• Luxe sanitair en tegelwerk
• Geïsoleerde stenen berging
Wat verder opvalt is de moderne en strakke vormgeving in combinatie met de warme kleur gevelsteen. Wil je een bad en slaapkamer op de begane grond? Ook dat is hier mogelijk. Maak snel een afspraak bij ons op kantoor. We vertellen je er graag alles over!
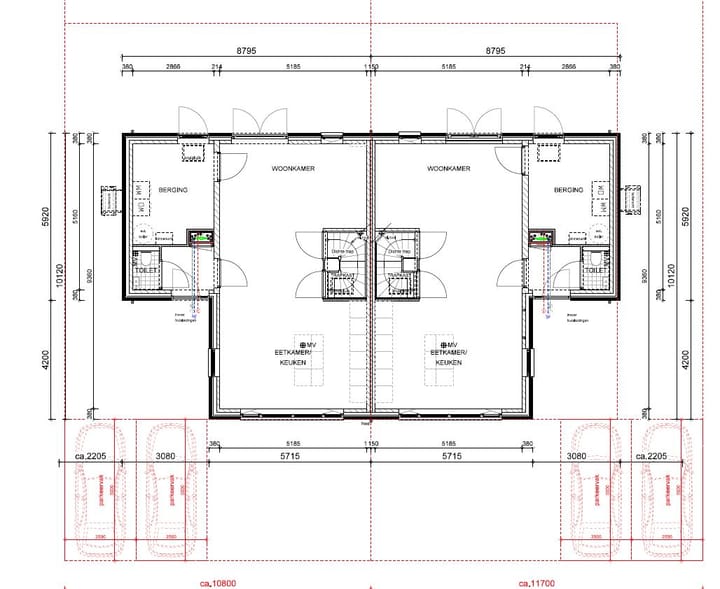
INDELING
Begane grond:
Entree, hal met meterkast en toilet en doorgang naar de woonkamer en eetkamer/keuken. Centraal gelegen tussen woonkamer en eetkamer is de afgesloten doorgang naar het trappenhuis. Straatgerichte eetkamer/keuken. Keuken niet bij de prijs inbegrepen. Achterin woonkamer een doorgang naar de aangebouwde en geïsoleerde berging met witgoedopstelling en warmtepomp.
Eerste verdieping:
Overloop, 3 slaapkamers. Badkamer voorzien van douchehoek, badmeubel, elektrische design radiator en wand closet.
Tweede verdieping:
Vaste trap naar open zolder. Naar wens in te delen. Mogelijkheid voor extra kamer.
Wil je ook weten wat de aankoop van deze woning financieel voor jou betekent? Maak dan een vrijblijvende afspraak met één van onze hypotheekadviseurs of vraag de makelaar naar de mogelijkheden bij Alpina.
Let op!
Kavel 305 prijs woning inclusief grond € 413.700,00 v.o.n.--------> ca. 372m² perceel
Kavel 306 prijs woning inclusief grond € 427.243,00 v.o.n. -------> ca. 435m² perceel
Kenmerken
Overdracht
- Aangeboden sinds
- Aanvaarding
- In overleg
- Vraagprijs
- € 413.700 vrij op naam
- Vraagprijs per m²
- € 4.137
- Status
- Beschikbaar
Bouw
- Soort woonhuis
- Eengezinswoning, 2-onder-1-kapwoning
- Soort bouw
- Nieuwbouw
- Bouwjaar
- 2026
- Soort dak
- Zadeldak bedekt met pannen
- Keurmerken
- Woningborg Garantiecertificaat
- Toegankelijkheid
- Toegankelijk voor ouderen
Oppervlakten en inhoud
- Gebruiksoppervlakten
- Wonen
- 100 m²
- Overige inpandige ruimte
- 10 m²
- Perceel
- 372 m²
- Inhoud
- 405 m³
Indeling
- Aantal kamers
- 5 kamers (3 slaapkamers)
- Aantal badkamers
- 1 apart toilet
- Aantal woonlagen
- 3 woonlagen
- Voorzieningen
- Dakraam, mechanische ventilatie, natuurlijke ventilatie, en zonnepanelen
Energie
- Energielabel
- Isolatie
- Dakisolatie, muurisolatie, vloerisolatie en volledig geïsoleerd
- Verwarming
- Gedeeltelijke vloerverwarming en warmtepomp
- Warm water
- Elektrische boiler
Kadastrale gegevens
- NOORDOOSTPOLDER FX 0000
- Kadastrale kaart
- Oppervlakte
- 372 m²
- Eigendomssituatie
- Volle eigendom
Buitenruimte
- Ligging
- Aan rustige weg en in woonwijk
- Tuin
- Achtertuin, voortuin en zijtuin
Bergruimte
- Schuur/berging
- Aangebouwde stenen berging
- Voorzieningen
- Elektra
- Isolatie
- Volledig geïsoleerd
Parkeergelegenheid
- Soort parkeergelegenheid
- Op eigen terrein
Foto's 15
© 2001-2026 funda














