
Omschrijving
Wat een prachtige en zeer ruime twee-onder-een-kapwoning, gelegen in de geliefde wijk Vrijenburg mogen we hier aan u presenteren. Dit huis biedt alles wat u zoekt in een moderne en comfortabele gezinswoning: luxe afwerking, royale leefruimtes, en een zonnige tuin op het zuiden.
De woning beschikt over een indrukwekkende lijst van pluspunten. Denk aan een aangebouwde serre, een stijlvolle afsluitbare veranda met 2 aangebouwde bergingen en een eigen toilet, en maar liefst 23 zonnepanelen voor een duurzame energierekening. De begane grond is een genot om te beleven: een complete keuken met kookeiland en eetbar, een ruime woonkamer met een sfeervolle tuinkamer, en een praktische inpandige berging.
De eerste verdieping biedt drie royale slaapkamers en een luxe badkamer. Op de tweede verdieping vindt u nog eens twee slaapkamers en een aparte was- en CV-ruimte. Deze woning is perfect afgestemd op de behoeften van een groot gezin of iedereen die extra ruimte waardeert.
Gelegen in een centrale, kindvriendelijke buurt, profiteert u van de nabijheid van uitstekende voorzieningen zoals winkelcentrum Carnisse Veste, scholen, sportverenigingen en een uitstekende tramverbinding naar Rotterdam Centrum. De ideale plek om te wonen, werken en genieten.
Indeling met indicatieve maten:
BEGANE GROND:
Entree in de ruime hal met een vaste maatwerk kast voor schoenen en jassen, meterkast en de geheel betegeld toiletruimte met een hangend toilet met sensor en een fonteintje. De trap naar de eerste verdieping is afgewerkt met laminaat en fraai verlichting.
De glazen paneeldeur geeft u toegang tot de woonkamer en de keuken. De woonkamer is opgedeeld in een leefruimte (ca. 38 m²) en een eetgedeelte (ca. 18 m²). Vanuit het eetgedeelte heeft u toegang tot de inpandige berging. In de woonkamer is er een fraaie cinewall gecreëerd voor de tv met ingebouwde gashaard. De woonkamer is vorozien van airco.
De keuken (ca. 16 m²) is gelegen aan de voorzijde en is uitgevoerd met een hoge kastenwand met diverse apparatuur zoals een oven, combi oven, koelkast, vriezer, klimaatkast en een warmhoudlade. Het kook/spoeleiland is voorzien van een extra brede spoelbak met Quooker, een 4 pits inductie kookplaat met afzuiging in het plafond en een eetbar voor 5 personen.
Zowel de woonkamer als de keuken zijn volledig afgewerkt met glad gestucte wanden en plafonds. In het plafonds zijn overal inbouwspots verwerkt. Aan de achterzijde zijn de ramen voorzien van elektrisch bedienbare rolgordijnen. De gehele begane grond is uitgevoerd met vloerverwarming.
De openslaande deuren geven vanuit de woonkamer toegang tot de serre (ca. 31 m²) welke geplaatst is over de gehele breedte van de woning. Door het vele glas rondom is deze serre heerlijk licht en een fijne plek om toch beschut van buiten te kunnen genieten. Voor de zonnige dagen heeft u de beschikking over een zonnescherm om de serre af te schermen van de zon. Voor de koudere dagen heeft u een elektrische heater voor extra warmte tot uw beschikking.
Achter in de tuin is er een brede veranda aanwezig welke afgesloten kan worden door de glazen schuifdeuren. Aangebouwd aan de veranda treft u 2 bergingen waarvan er 1 is voorzien van een apart toilet. De veranda is uitgevoerd met een complete Boretti buitenkeuken met een koelkast en een spoelbak met warm en koud stromend water.
Aan de voorzijde heeft u de mogelijkheid om de auto te parkeren op uw eigen oprit welke tevens is voorzien van een laadpunt voor de elektrische auto.
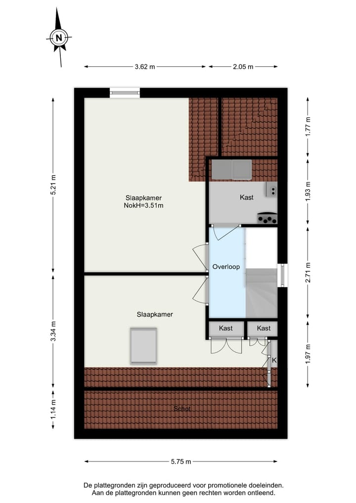
EERSTE VERDIEPING:
Overloop met toegang tot de slaapkamers en en de badkamer.
Slaapkamer 1 (ca. 19 m²) gelegen aan de voorzijde en uitgevoerd met airco.
Slaapkamer 2 (ca. 14 m²) gelegen aan de achterzijde en bereikbaar via de tussenkamer (ca. 7 m²), De kamer is voorzien van een dakkapel en bergruimte achter de knieschotbergingen en heeft airco.
Slaapkamer 3 (ca. 14 m²) gelegen aan de achterzijde en is uitgevoerd met airco.
De beide slaapkamers aan de achterzijde zijn voorzien van elektrisch bedienbare rolluiken.
De badkamer (ca. 8 m²) is luxe uitgevoerd met een riante inloopdouche, een dubbel wastafelmeubel met spiegelkast en een hangend toilet met sensor. Het geheel is volledig betegeld in een wit/ grijze kleurstelling en is uitgevoerd met comfortabele vloerverwarming.
TWEEDE VERDIEPING:
Overloop met toegang tot de slaapkamers en de was/CV ruimte. Het raam op de overloop is voorzien van een elektrisch bedienbaar rolgordijn.
Slaapkamer 4 (ca. 18 m²) gelegen aan de voorzijde en uitgevoerd met airco.
Slaapkamer 5 (ca. 15 m²) gelegen aan de achterzijde en voorzien van maatwerk kasten onder het schuine dak.
De was/CV (ca. 3 m²) ruimte biedt voldoende ruimte voor wasmachine en de droger. Hier bevindt zich ook de omvormer van de zonnepanelen.
- Ruime 6 kamer twee onder één kapwoning
- Laadpaal aanwezig aan de voorzijde op de eigen oprit
- Alle ruimtes voorzien van een eigen UTP aansluiting
- 10 Zonnepanelen geplaatst in 2017 (opbrengst ca. 255 KwH per stuk)
- 11 Zonnepanelen geplaatst in 2021 (opbrengst ca. 342 KwH per stuk)
- Begane grond afgewerkt met een marmeren vloer met vloerverwarming
- Eerste en tweede verdieping afgewerkt met een laminaatvloer
- Horren aanwezig voor de openslaande ramen
- Buitenkraan in de voor- en achtertuin aanwezig
- Centrale ligging t.o.v. winkels, scholen, kinderopvang, openbaar vervoer en uitvalswegen
Makelaar: Marco Bos
Kenmerken
Overdracht
- Laatste vraagprijs
- € 889.000 kosten koper
- Vraagprijs per m²
- € 4.536
- Status
- Verkocht
Bouw
- Soort woonhuis
- Eengezinswoning, 2-onder-1-kapwoning
- Soort bouw
- Bestaande bouw
- Bouwjaar
- 2017
Oppervlakten en inhoud
- Gebruiksoppervlakten
- Wonen
- 196 m²
- Overige inpandige ruimte
- 6 m²
- Gebouwgebonden buitenruimte
- 31 m²
- Externe bergruimte
- 16 m²
- Perceel
- 310 m²
- Inhoud
- 645 m³
Indeling
- Aantal kamers
- 6 kamers (5 slaapkamers)
- Aantal badkamers
- 1 badkamer en 1 apart toilet
- Badkamervoorzieningen
- Dubbele wastafel, inloopdouche, toilet, en wastafelmeubel
- Aantal woonlagen
- 3 woonlagen
- Voorzieningen
- Airconditioning, buitenzonwering, dakraam, mechanische ventilatie, en zonnepanelen
Energie
- Energielabel
- A
- Verwarming
- Cv-ketel
- Cv-ketel
- Gas gestookt combiketel
Kadastrale gegevens
- BARENDRECHT A 6362
- Kadastrale kaart
- Oppervlakte
- 310 m²
- Eigendomssituatie
- Volle eigendom
Buitenruimte
- Ligging
- In woonwijk
- Tuin
- Achtertuin, voortuin en zijtuin
- Achtertuin
- 140 m² (13,00 meter diep en 10,80 meter breed)
- Ligging tuin
- Gelegen op het zuiden bereikbaar via achterom
Bergruimte
- Schuur/berging
- Vrijstaande houten berging
Parkeergelegenheid
- Soort parkeergelegenheid
- Op eigen terrein en openbaar parkeren
Foto's 40
© 2001-2025 funda







































