
Omschrijving
In de kern van Barger-Compascuum op een markante locatie aan de 'stille' kant (WZ) van het Verlengde Oosterdiep staat op nummer 60 deze nette en ruime vrijstaande woning met grote vrijstaande schuur (ca. 145 m²) op 645 m² eigen grond. Er is een slaapkamer en badkamer op de begane grond en dus kan worden gesproken van een levensloopbestendige woning. Oorspronkelijk bouwjaar van de woning is 1930 maar in de loop van de jaren zijn er veranderingen en verbeteringen uitgevoerd. Onder andere aanbrengen kunststof kozijnen met HR++ glas. De woning is netjes onderhouden maar kan op punten naar eigen inzicht verder worden gemoderniseerd. Door de fraaie ligging in de kern zijn de voorzieningen in Barger-Compascuum altijd binnen handbereik. De Veenvaartroute geeft de nodige aangename reuring. Het weidse landschap en de prachtige natuur is altijd dichtbij.
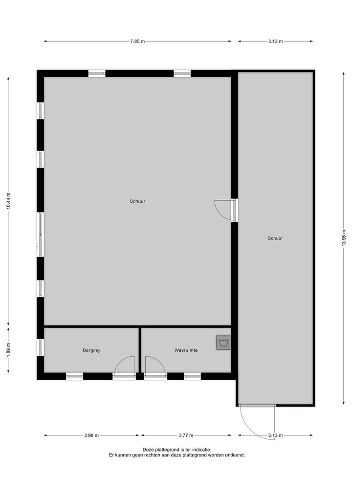
Achter de woning staat een grote stenen schuur (totaal circa 145 m²) met daarin een afgesloten bijkeuken met wasmachineaansluiting en een berging, de rest is biedt diverse mogelijkheden van stalling tot werkplaats.
Indeling:
kelder: provisieruimte/berging.
begane grond: entree/hal met toilet, trap, doucheruimte, L-vormige woonkamer met open keuken en aansluitend slaapkamer.
1e verdieping: overloop, 3 slaapkamers.
Nieuwsgierig geworden naar dit unieke geheel? Maak een afspraak voor bezichtiging, dit geeft namelijk de enige juiste indruk.
Kenmerken
Overdracht
- Laatste vraagprijs
- € 350.000 kosten koper
- Vraagprijs per m²
- € 2.349
- Status
- Verkocht
Bouw
- Soort woonhuis
- Eengezinswoning, vrijstaande woning
- Soort bouw
- Bestaande bouw
- Bouwjaar
- 1930
- Soort dak
- Zadeldak bedekt met pannen
Oppervlakten en inhoud
- Gebruiksoppervlakten
- Wonen
- 149 m²
- Overige inpandige ruimte
- 9 m²
- Externe bergruimte
- 145 m²
- Perceel
- 645 m²
- Inhoud
- 548 m³
Indeling
- Aantal kamers
- 5 kamers (4 slaapkamers)
- Aantal badkamers
- 1 apart toilet
- Aantal woonlagen
- 2 woonlagen
Energie
- Energielabel
- F
- Isolatie
- HR-glas en muurisolatie
- Verwarming
- Cv-ketel
- Warm water
- Cv-ketel
- Cv-ketel
- Gas gestookt combiketel, lease
Kadastrale gegevens
- EMMEN I 10958
- Kadastrale kaart
- Oppervlakte
- 645 m²
- Eigendomssituatie
- Volle eigendom
Buitenruimte
- Ligging
- Aan rustige weg, aan vaarwater, in centrum, landelijk gelegen en vrij uitzicht
- Tuin
- Tuin rondom
Bergruimte
- Schuur/berging
- Vrijstaande stenen berging
Garage
- Soort garage
- Parkeerplaats en vrijstaande stenen garage
- Capaciteit
- 4 auto's
- Voorzieningen
- Elektra en stromend water
Foto's 43
© 2001-2026 funda










































