Dit huis op Funda: https://www.funda.nl/detail/koop/barneveld/huis-rutgerslaan-12/43983598/

Omschrijving
Te koop: unieke kans op een duurzame nieuwbouwwoning in De Lanen Oost – Barneveld
Heerlijk wonen in een rustige en groene omgeving
In de jonge en populaire woonwijk De Lanen Oost – fase 2 bieden wij deze prachtige, halfvrijstaande nieuwbouwwoning met aangebouwde garage aan. De woning is momenteel in aanbouw en wordt gerealiseerd op een royaal perceel van circa 360 m².
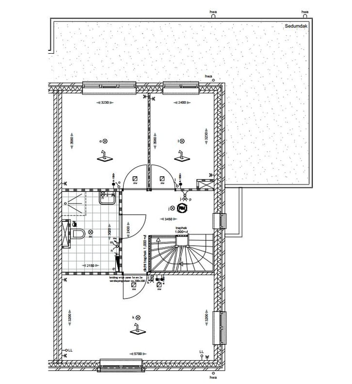
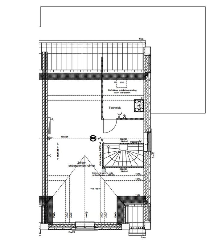
Deze woning biedt volop ruimte en comfort. Dankzij de uitbouw aan de achterzijde geniet je van een royale woonkeuken. De woning beschikt over drie ruime slaapkamers op de eerste verdieping én een grote tweede verdieping waar gemakkelijk extra slaapkamers of een thuiswerkplek kunnen worden gerealiseerd.
Comfortabel wonen in stijl
Het ontwerp van woningtype Kruisridder is stijlvol en doordacht. De voorgevel is speels vormgegeven met fraaie kozijnindelingen en veel glas, wat zorgt voor een lichte en open sfeer in de woonkamer. Het Franse balkon in de voorste slaapkamer geeft je dat luxe hotelgevoel – elke dag opnieuw.
De wijk kenmerkt zich door ambachtelijk metselwerk, gebruik van handvorm bakstenen en verfijnde geveldetails. Topgevels zorgen voor een aantrekkelijk en afwisselend straatbeeld.
Duurzaam en energiezuinig wonen
Deze woning is gebouwd met oog voor de toekomst. Dankzij een bodemwarmtepomp, vloerverwarming en een slim ventilatiesysteem (dat reageert op aanwezigheid) voldoet de woning aan de nieuwste BENG-eisen (Bijna Energie Neutraal Gebouw). Het resultaat? Een comfortabel binnenklimaat én een lage energierekening.
Van de Mheen Planontwikkeling BV hecht veel waarde aan duurzaam bouwen. Door slim te ontwerpen en energie-efficiënte installaties toe te passen, wordt de ecologische voetafdruk van de woning geminimaliseerd.
Wat je verder moet weten:
• Overdracht vindt plaats via Notariaat Van der Weij in Nijkerk.
• Het betreft een doorverkoop van een woning in aanbouw. Alle afspraken die de huidige eigenaar met Bouwbedrijf Van de Mheen heeft gemaakt, inclusief ruwbouwopties, gaan over op de nieuwe eigenaar.
• De woning wordt o.a. uitgebouwd aan de achterzijde (2,4 meter), voorzien van dubbele openslaande deuren én een aangepaste indeling waarbij de woonkeuken aan de achterzijde is gepositioneerd.
• De vraagprijs is exclusief keukeninrichting, toilet en badkamer (deze ruimtes worden casco opgeleverd).
Wat moet je als koper weten bij deze contractsovername?
Wat koop je precies?
Je neemt een woning in aanbouw over in het project “De Lanen Oost fase 2”, bouwnummer 94 in Barneveld. De grond is ongeveer 360 m² groot.
Wat neem je over?
Je neemt het volledige contract met v/d Mheen van de vorige koper over, inclusief alle rechten en plichten (dus ook meerwerk t.w.v. van € 36.250,-). De bedenktijd en eventuele voorwaarden gelden nu niet meer voor jou.
Wanneer is het van jou?
Je wordt officieel eigenaar als je de leveringsakte bij de notaris tekent.
Bijzondere afspraken over belasting
Als je gebruikmaakt van een regeling waardoor je minder overdrachtsbelasting hoeft te betalen, moet je het verschil aan de verkoper betalen. Dit wordt via de notaris geregeld.
Gebruik en staat van het huis
De woning moet bij oplevering geschikt zijn voor normaal gebruik als woonhuis. Je verklaart dat je weet wat er is afgesproken over de bouw en het bestemmingsplan.
Verzekering tijdens de bouw
Tot de sleuteloverdracht blijft het huis verzekerd door de bouwer.
Kenmerken
Overdracht
- Laatste vraagprijs
- € 735.000 kosten koper
- Vraagprijs per m²
- € 4.249
- Status
- Verkocht
Bouw
- Soort woonhuis
- Villa, 2-onder-1-kapwoning
- Soort bouw
- Nieuwbouw
- Bouwjaar
- 2025
- Keurmerken
- Woningborg Garantiecertificaat
Oppervlakten en inhoud
- Gebruiksoppervlakten
- Wonen
- 173 m²
- Perceel
- 360 m²
- Inhoud
- 645 m³
Indeling
- Aantal kamers
- 4 kamers (3 slaapkamers)
- Aantal badkamers
- 1 badkamer en 1 apart toilet
- Badkamervoorzieningen
- Douche, toilet, en wastafel
- Aantal woonlagen
- 3 woonlagen
- Voorzieningen
- Balansventilatie
Energie
- Energielabel
- Isolatie
- Dubbel glas en volledig geïsoleerd
- Verwarming
- Aardwarmte, gedeeltelijke vloerverwarming en warmtepomp
- Warm water
- Aardwarmte
Kadastrale gegevens
- BARNEVELD E 7063
- Kadastrale kaart
- Oppervlakte
- 360 m² (deelperceel)
- Eigendomssituatie
- Volle eigendom
Buitenruimte
- Ligging
- In woonwijk
- Tuin
- Achtertuin, voortuin en zijtuin
- Achtertuin
- 12,50 meter diep en 12,60 meter breed
- Ligging tuin
- Gelegen op het noordwesten
Garage
- Soort garage
- Aangebouwde stenen garage
- Capaciteit
- 1 auto
Foto's 10
© 2001-2026 funda









