
Omschrijving
Op een rustige locatie in Bavel staat deze sfeervolle, uitgebouwde 2-onder-1-kapwoning met garage, gelegen met prachtig vrij uitzicht op de molen, dierenweide, speelveld en speeltuin. De woning is gunstig gelegen nabij de dorpskern met diverse winkels, twee basisscholen en op slechts 15 minuten fietsen van het bruisende, historische stadscentrum van Breda. Tevens zijn de uitvalswegen nabij gelegen. Een heerlijk rustige plek in het groen.
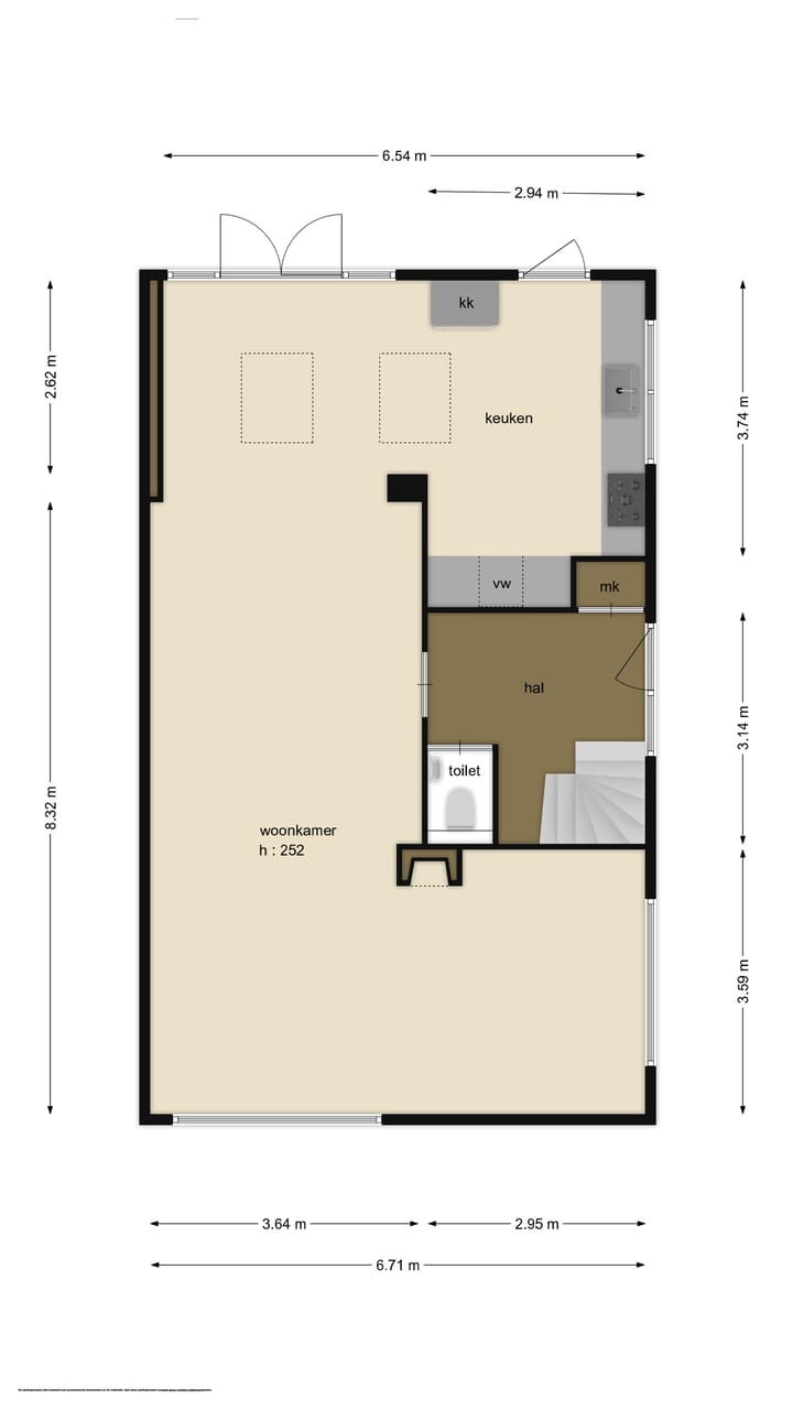
DE INDELING IS ALS VOLGT
BEGANE GROND
Hal/entree: Ruime hal (ca. 3.15 x 3.10/2.10 m.) met trapopgang, vloerverwarming unit en uitgebreide meterkast (10 groepen, krachtstroom, aardlekschakelaar).
Toiletruimte: Modern betegeld, met wandcloset (soft-close) en fonteintje.
Woonkamer: Royale, lichte L-vormige woonkamer (ca. 48 m²) met dubbele openslaande deuren naar de tuin. Voorzien van een sfeervolle open haard en een lichtkoepel (elektrisch te openen, met regensensor).
Open keuken: Ca. 12 m², voorzien van met diverse inbouwapparatuur en met veel licht door grote zijramen en de lichtkoepel (elektrisch te openen, met regensensor). Directe toegang tot de achtertuin.
EERSTE VERDIEPING:
Overloop: Ruime, lichte overloop met trap naar de tweede verdieping.
Slaapkamer 1: aan de achterzijde gelegen met wastafel.
Slaapkamer 2: aan de voorzijde gelegen met TV-aansluiting.
Slaapkamer 3: Tevens aan de voorzijde gelegen
Badkamer: Moderne badkamer (2011 vernieuwd) met ligbad, separate douche (Mocoori) met regendouche, wastafelmeubel (Mocoori), toilet (Villeroy & Boch), mechanische ventilatie.
TWEEDE VERDIEPING:
Voorzolder: Royale voorzolder met dakkapel, ideaal als werkplek of speelruimte.
Hobbyruimte/stookruimte: met bergruimte, CV-combiketel (2017) en aansluitingen voor wasapparatuur. Velux dakraam aanwezig.
Zolderkamer: Royale slaapkamer met grote dakkapellen aan voor- en achterzijde, wastafel en TV-aansluiting.
TUIN: Betegelde achtertuin gelegen op het oosten, zijtuin op het zuiden met zonneterras.
GARAGE: Vrijstaande garage (ca. 6.40 x 3.50 m.), momenteel in gebruik als berging en voorzien van elektra en wateraansluiting. Parkeerplaats op eigen perceel.
ALGEMEEN
- Ruime woning met veel lichtinval dankzij de grote ramen op alle verdiepingen;
- Grondig gerenoveerd vanaf 2006 tot heden;
- 4 slaapkamers;
- Volledig voorzien van isolerende beglazing en dakisolatie;
- Begane grond voorzien van natuurstenen vloer (Portugees marmer) met vloerverwarming.
- Gelegen op een zeer gewilde locatie;
- Volledig voorzien van isolerende beglazing en dakisolatie;
- fietsverbinding naar Breda via nieuwe fietsbrug.
- Deze informatie is door ons met de nodige zorgvuldigheid samengesteld. Onzerzijds wordt echter geen enkele aansprakelijkheid aanvaard voor enige onvolledigheid, onjuistheid of anderszins, dan wel de gevolgen daarvan. Alle opgegeven maten en oppervlakten zijn indicatief.
- Meetinstructie NEN2580
Deze woning is opgemeten conform de Meetinstructie. De Meetinstructie is gebaseerd op de NEN2580. De Meetinstructie is bedoeld om een meer eenduidige manier van meten toe te passen voor het geven van een indicatie van de gebruiksoppervlakte en inhoud. De Meetinstructie sluit verschillen in meetuitkomsten niet volledig uit, door bijvoorbeeld interpretatieverschillen, afrondingen of beperkingen bij het uitvoeren van de meting.
Uitgangspunt blijft altijd; “wat je ziet is wat je koopt” en de objectinformatie is van lagere prioriteit.
- In de NVM koopakte zal de Algemene Ouderdomsclausule worden opgenomen.
Kenmerken
Overdracht
- Laatste vraagprijs
- € 749.000 kosten koper
- Vraagprijs per m²
- € 4.355
- Status
- Verkocht
Bouw
- Soort woonhuis
- Eengezinswoning, 2-onder-1-kapwoning
- Soort bouw
- Bestaande bouw
- Bouwjaar
- 1973
Oppervlakten en inhoud
- Gebruiksoppervlakten
- Wonen
- 172 m²
- Gebouwgebonden buitenruimte
- 10 m²
- Externe bergruimte
- 10 m²
- Perceel
- 322 m²
- Inhoud
- 594 m³
Indeling
- Aantal kamers
- 5 kamers (4 slaapkamers)
- Aantal badkamers
- 1 badkamer en 1 apart toilet
- Badkamervoorzieningen
- Douche, ligbad, toilet, en wastafel
- Aantal woonlagen
- 3 woonlagen
- Voorzieningen
- Rolluiken, rookkanaal, en TV kabel
Energie
- Energielabel
- C
- Verwarming
- Cv-ketel
- Warm water
- Cv-ketel
- Cv-ketel
- Gas gestookt combiketel uit 2017, eigendom
Kadastrale gegevens
- NIEUW-GINNEKEN K 3309
- Kadastrale kaart
- Oppervlakte
- 322 m²
- Eigendomssituatie
- Volle eigendom
Buitenruimte
- Ligging
- Aan rustige weg, in woonwijk en vrij uitzicht
- Tuin
- Achtertuin, voortuin en zijtuin
- Balkon/dakterras
- Dakterras aanwezig
Garage
- Soort garage
- Vrijstaande stenen garage
- Capaciteit
- 1 auto
- Voorzieningen
- Elektra en stromend water
Parkeergelegenheid
- Soort parkeergelegenheid
- Op afgesloten terrein, op eigen terrein en openbaar parkeren
Foto's 33
© 2001-2025 funda
































