Dit huis op Funda: https://www.funda.nl/detail/koop/beek-li/huis-margrietstraat-22/89504964/

Omschrijving
Deze keuring onderhouden, instapklare 2-onder-1-kapwoning is gelegen in een rustige straat nabij het centrum van Beek. Scholen, winkels, openbaar vervoer alsook de verbindingswegen zijn snel bereikbaar. Woning is voorzien van daglichtrijke woonkamer, open keuken, vier slaapkamers, twee badkamers, onderhoudsvrije tuin met overkapping en een onderkelderde garage en oprit.
SOUTERAIN
Provisiekelder met aansluitingen voor het witgoed en de omvormer van de zonnepanelen.
BEGANE GROND
Entree/hal met toilet, meterkast , toegang tot de kelder en trapopgang. De daglichtrijke woonkamer is voorzien van een eiken parketvloer. De open keuken in L-vorm is voorzien van een natuurstenen werkblad, een inductiekookplaat, afzuiging, combioven/magnetron, koelkast, kokend waterkraan en vaatwasser. Middels de schuifpui heeft u direct toegang tot de achtertuin.
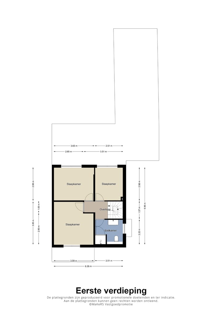
EERSTE VERDIEPING
De overloop geeft toegang tot 3 slaapkamers en de badkamer.
Slaapkamer 1 (ca. 3.68 x 3.65m) ;
Slaapkamer 2 (ca. 2.95 x 3.65m)met airconditioning;
Slaapkamer 3 (ca. 2.98 x 2.51m) allen voorzien van rolluiken.
De badkamer met vloerverwarming, is uitgerust met een inloopdouche, hangend closet en wastafel met badmeubel.
TWEEDE VERDIEPING
Middels vaste trap bereikbare zolder met ruime daglichtrijke vierde slaapkamer, badkamer met douche en wastafel en voldoende opbergruimte. Tevens standplaats van de Cv-installatie.
TUIN
Voortuin met brede oprit en toegang tot de onderkelderde garage. Kelder (699 x 341) biedt veel opbergruimte.
De achtertuin heeft een overkapping, kunstgazon en is onderhoudsvrij. Aan de voorzijde kunnen desgewenst meerdere auto's worden geparkeerd op eigen oprit.
BIJZONDERHEDEN
- De woning is keurig afgewerkt en instapklaar;
- Het pand is v.v. kunststof kozijnen met dubbel glas;
- Grotendeels v.v. rolluiken;
- Voorzien van 10 zonnepanelen (eigendom);
- Cv-installatie Nefit topline 2011 (eigendom);
- Energielabel A.
Belangrijke informatie voor de koper.
Verkoopinformatie.
Bovenstaande informatie is met zorg samengesteld. Er kunnen echter geen rechten aan worden ontleend, verkopers noch verkopend makelaar kunnen aansprakelijk worden gehouden voor eventuele onjuistheden. Indien bepaalde informatie voor u van wezenlijk belang is, dan adviseren wij u deze op juistheid te (laten) controleren. Alle opgegeven maten en oppervlakken zijn indicatief.
Schriftelijkheidsvereiste.
Ter bescherming van de belangen van zowel koper als verkoper, wordt uitdrukkelijk gesteld dat een koopovereenkomstmet betrekking tot deze onroerende zaak eerst dan tot stand komt nadat zowel koper als verkoper de koopovereenkomst hebben getekend (“schriftelijkheidsvereiste”). Tot het tijdstip van ondertekening door beide partijen voornoemd, zullen partijen jegens elkaar geen enkele verplichting hebben.
Waarborgsom of bankgarantie.
Koper dient binnen 3 dagen na het onvoorwaardelijk worden van de koopovereenkomst een waarborgsom te storten bij de notaris of een bankgarantie te stellen ten bedrage van tien procent van de koopsom.
Bouwkundige keuring
Koper is te allen tijde gerechtigd om voor eigen rekening een bouwkundig onderzoek te laten verrichten, dan wel andere adviseurs te raadplegen teneinde een goed inzicht te verkrijgen in de staat van onderhoud of andere aspecten van de onroerende zaak. Koper dient bij het doen van een bod wel direct aan te geven of hij een dergelijk onderzoek wenst.
Kenmerken
Overdracht
- Laatste vraagprijs
- € 429.000 kosten koper
- Vraagprijs per m²
- € 3.275
- Status
- Verkocht
Bouw
- Soort woonhuis
- Eengezinswoning, 2-onder-1-kapwoning
- Soort bouw
- Bestaande bouw
- Bouwjaar
- 1961
- Soort dak
- Zadeldak bedekt met pannen
Oppervlakten en inhoud
- Gebruiksoppervlakten
- Wonen
- 131 m²
- Overige inpandige ruimte
- 63 m²
- Gebouwgebonden buitenruimte
- 23 m²
- Perceel
- 261 m²
- Inhoud
- 686 m³
Indeling
- Aantal kamers
- 8 kamers (4 slaapkamers)
- Aantal badkamers
- 2 badkamers en 1 apart toilet
- Badkamervoorzieningen
- 2 douches, toilet, 2 wastafels, en wastafelmeubel
- Aantal woonlagen
- 3 woonlagen en een kelder
- Voorzieningen
- Airconditioning, mechanische ventilatie, rolluiken, en zonnepanelen
Energie
- Energielabel
- Isolatie
- Dakisolatie, dubbel glas, muurisolatie en vloerisolatie
- Verwarming
- Cv-ketel en gedeeltelijke vloerverwarming
- Warm water
- Cv-ketel
- Cv-ketel
- Nefit topline (gas gestookt combiketel uit 2011, eigendom)
Kadastrale gegevens
- BEEK G 559
- Kadastrale kaart
- Oppervlakte
- 261 m²
- Eigendomssituatie
- Volle eigendom
Buitenruimte
- Ligging
- Aan rustige weg en in woonwijk
- Tuin
- Achtertuin en voortuin
- Achtertuin
- 50 m² (9,00 meter diep en 5,60 meter breed)
- Ligging tuin
- Gelegen op het zuidoosten bereikbaar via achterom
Garage
- Soort garage
- Vrijstaande stenen garage
- Capaciteit
- 1 auto
- Voorzieningen
- Elektrische deur, elektra, verwarming en stromend water
Parkeergelegenheid
- Soort parkeergelegenheid
- Op eigen terrein en openbaar parkeren
Foto's 44
© 2001-2026 funda











































