
Omschrijving
Comfortabele Vrijstaande Semi Bungalow op 928m2 eigen grond!
Gelegen aan de Bennebroekerdreef 16 te Bennebroek, temidden van het groen, staat deze gelijkvloerse en comfortabele bungalow (woonoppervlakte 236m2). Een perfecte balans tussen woon- en slaapruimte.
Deze goed onderhouden woning biedt een genereuze leefruimte verdeeld over twee verdiepingen, omringd door een ruime tuin.
De hoofdetage van de woning bestaat uit een L-vormige living met riante schuifpui naar omliggende tuin, een moderne open woonkeuken voorzien van alle benodigde inbouwapparatuur en schuifpui naar balkon en een luxe master-bedroom met een bijbehorende, stijlvolle moderne badkamer. De benedenetage biedt eveneens veel comfort, met twee slaapkamers (voorheen drie), twee badkamers, een apart toilet en een heuse provisie/wasruimte. Aanvullend is er een ruime inpandige berging en een dubbele garage met elektrische garagedeur. Het perceel biedt nog extra parkeergelegenheid op eigen terrein.
De rondom gelegen tuin v.v. beregeningssysteem kenmerkt zich door de diverse terrassen, is ruim en biedt veel privacy, zon én schaduw, zodat u altijd een aangenaam plekje kunt vinden. De woning is goed onderhouden en voorzien van alle gemakken, waardoor u direct kunt genieten van een comfortabele woonsituatie.
Bennebroek is een rustige en groene omgeving, en op loopafstand treft u de gezelligheid van het centrum van Bennebroek, met in de nabijheid een diversiteit aan winkels. Bovendien is de woning goed bereikbaar, zowel met de auto als met het openbaar vervoer.
In de directe omgeving is de aanwezigheid van veel natuur zoals de stranden van Zandvoort en Langevelderslag, het prachtige Nationaal Park Zuid-Kennemerland en diverse fiets- en wandelroutes. Een speeltuin voor de (klein)kinderen is er een prachtig evenwicht tussen gemak en comfort.
Of u nu op zoek bent naar een ruime gezinswoning, een comfortabel onderkomen voor een koppel of een woning met veel mogelijkheden, deze vrijstaande bungalow aan de Bennebroekerdreef 16 biedt een uitstekende balans tussen woon- en leefruimte. Neem snel contact op voor een bezichtiging en ontdek zelf de vele mogelijkheden die deze woning te bieden heeft.
Indeling:
Begane grond (141.42m2):
entree hal met garderobe, toilet met fontein, L-vormige living (60m2) met open haard en schuifpui naar tuin, keuken (19m2) v.v. diverse apparatuur en schuifpui naar balkon, master-bedroom (26m2) met vaste kastenwanden en badkamer (4.8m2) v.v. inloopdouche, 2e toilet en wastafelmeubel.
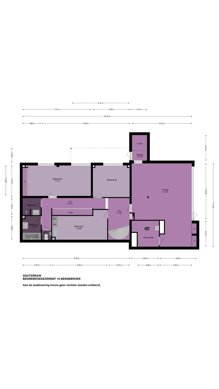
Souterrain (94.97m2):
Hal, was/provisieruimte (16m2), gang met vaste kastenwand, slaapkamer (13m2), slaapkamer met vaste kastenwand (24m2, mogelijk te splitsen naar 2 kamers), 2e badkamer met douche en wastafel, 3e badkamer met ligbad en wastafel, apart 3e toilet met fontein, inpandige dubbele garage (49m2) met elektrische garagedeur, berging en stookruimte.
Bijzonderheden:
* Van de bennebroekerdreef16 is een unieke woningwebsite beschikbaar waar u de brochure en relevante documenten kunt downloaden.
* Woonoppervlakte 236m2. Eigen grond 928m2. Bouwjaar 1960
* Kozijn woonkamer 2000 en overige kozijnen 2003
* Hoofddak vernieuwd 2021
* 18 zonnepanelen 2021
* Dubbele inpandige garage met elektrische deur
* Inpandige bergingen
* Rondom gelegen tuin v.v. beregeningssysteem
* Wijnkeldertje in garage
* Energielabel (D) voordat de zonnepanelen zijn geplaatst
* Bouwtechnische keuring ter inzage
* Totale vloeroppervlakte bedraagt (297.5m2) waarvan woonoppervlakte 236m2 en 61.5m2 aan overig inpandige ruimte
* Aanvaarding in overleg
Kenmerken
Overdracht
- Laatste vraagprijs
- € 1.395.000 kosten koper
- Vraagprijs per m²
- € 5.911
- Status
- Verkocht
Bouw
- Soort woonhuis
- Bungalow, vrijstaande woning (semi-bungalow)
- Soort bouw
- Bestaande bouw
- Bouwjaar
- 1960
- Soort dak
- Plat dak bedekt met bitumineuze dakbedekking
- Keurmerken
- Bouwkundige Keuring
Oppervlakten en inhoud
- Gebruiksoppervlakten
- Wonen
- 236 m²
- Overige inpandige ruimte
- 62 m²
- Gebouwgebonden buitenruimte
- 28 m²
- Perceel
- 928 m²
- Inhoud
- 1.015 m³
Indeling
- Aantal kamers
- 5 kamers (3 slaapkamers)
- Aantal badkamers
- 3 badkamers en 2 aparte toiletten
- Badkamervoorzieningen
- Inloopdouche, toilet, wastafelmeubel, douche, 2 wastafels, en ligbad
- Aantal woonlagen
- 2 woonlagen
- Voorzieningen
- Natuurlijke ventilatie, rookkanaal, schuifpui, en TV kabel
Energie
- Energielabel
- D
- Isolatie
- Dakisolatie en grotendeels dubbelglas
- Verwarming
- Heteluchtverwarming en open haard
- Warm water
- Cv-ketel
Kadastrale gegevens
- BENNEBROEK A 2642
- Kadastrale kaart
- Oppervlakte
- 928 m²
- Eigendomssituatie
- Volle eigendom
Buitenruimte
- Ligging
- In bosrijke omgeving en vrij uitzicht
- Tuin
- Tuin rondom
- Balkon/dakterras
- Balkon aanwezig
Bergruimte
- Schuur/berging
- Inpandig
- Voorzieningen
- Elektra
Garage
- Soort garage
- Inpandig
- Capaciteit
- 2 auto's
- Voorzieningen
- Elektrische deur, elektra en verwarming
Parkeergelegenheid
- Soort parkeergelegenheid
- Op eigen terrein
Foto's 56
© 2001-2025 funda























































