
Omschrijving
Op prettige en rustige locatie gelegen eengezinswoning met maar liefst 5 slaapkamers! De woning bezit een voortuin en zeer diepe achtertuin van maar liefst 14 meter diep met achterom. Alle voorzieningen en recreatie mogelijkheden zijn in de directe omgeving aanwezig.
De woning is recent voorzien van 8 zonnepanelen en is grotendeels voorzien van kunststof ramen en kozijnen met HR++ beglazing.
Ook zijn alle platte daken recent vernieuwd.
Deze woning is voorzien van een ruime en sfeervolle woonkamer met openslaande deuren naar de achtertuin. De grote raampartijen zorgen voor veel lichtinval.
De achtertuin is ook voorzien van een houten schuur en extra overkapping voor fietsen en/of kliko's.
De half open keuken is 5 jaar geleden vernieuwd en is voorzien van diverse inbouwapparatuur. Vanuit de keuken is er toegang naar de praktische bijkeuken welke is voorzien van de wasmachine aansluiting. De bijkeuken is tevens geïsoleerd en er is een deur die ook leidt naar de tuin.
Indeling:
Begane grond:
Entree/hal, meterkast, toiletruimte en bergkast. Ruime woonkamer met open trap naar de verdieping.
Aan de achterzijde beschikt de woning over grote openslaande deuren naar onderhoudsarme achtertuin met achterom.
Aan de achterzijde van de woning is de moderne keuken gesitueerd met hoekopstelling voorzien van diverse inbouwapparatuur.
Vanuit de keuken is de bijkeuken bereikbaar. De bijkeuken biedt ruimte aan bijvoorbeeld een extra vriezer, opslag en kan gebruikt worden als wasruimte.
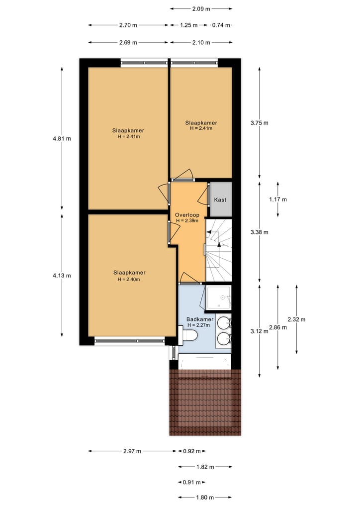
Eerste Verdieping:
Overloop met aparte kastruimte. Drie slaapkamers respectievelijk 13, 12 en 8 m². Nette badkamer met 2e toilet, douchecabine, badmeubel met dubbele wastafel en een ligbad.
Tweede Verdieping:
Overloop met toegang naar 2 slaapkamers. De achterste slaapkamer is tevens voorzien van een extra brede dakkapel en de c.v.-opstelling. Ruime slaapkamer aan de voorzijde van de woning met dakraam. Beide slaapkamers hebben veel bergruimte achter de knieschotten en in de vaste kasten.
Bijzonderheden;
Keuken voorzien van een koelkast, gaskookplaat, afzuigkap, combimagnetron en een vaatwasser.
De poortdeur in de achtertuin is extra breed en vergemakkelijkt het in en uitrijden van een (motor)fiets.
Volledig geïsoleerde woning.
Rolluiken op de 1e verdieping zowel aan de voor-als achterzijde.
Alle verdiepingen voorzien van een laminaatvloer.
Aanvaarding: in overleg/bij voorkeur 1 mei 2025
Kenmerken
Overdracht
- Laatste vraagprijs
- € 445.000 kosten koper
- Vraagprijs per m²
- € 3.618
- Status
- Verkocht
Bouw
- Soort woonhuis
- Eengezinswoning, tussenwoning
- Soort bouw
- Bestaande bouw
- Bouwjaar
- 1979
- Soort dak
- Zadeldak bedekt met pannen
Oppervlakten en inhoud
- Gebruiksoppervlakten
- Wonen
- 123 m²
- Externe bergruimte
- 5 m²
- Perceel
- 147 m²
- Inhoud
- 422 m³
Indeling
- Aantal kamers
- 6 kamers (5 slaapkamers)
- Aantal woonlagen
- 3 woonlagen
- Voorzieningen
- Dakraam, glasvezelkabel, mechanische ventilatie, rolluiken, TV kabel, en zonnepanelen
Energie
- Energielabel
- A
- Isolatie
- Volledig geïsoleerd
- Verwarming
- Cv-ketel
- Warm water
- Cv-ketel
- Cv-ketel
- Remeha Avanta combi HR (gas gestookt combiketel uit 2015, eigendom)
Kadastrale gegevens
- BENSCHOP B 1589
- Kadastrale kaart
- Oppervlakte
- 147 m²
- Eigendomssituatie
- Volle eigendom
Buitenruimte
- Ligging
- In woonwijk en vrij uitzicht
- Tuin
- Achtertuin en voortuin
- Achtertuin
- 72 m² (13,85 meter diep en 5,20 meter breed)
- Ligging tuin
- Gelegen op het noordoosten bereikbaar via achterom
Bergruimte
- Schuur/berging
- Aangebouwde houten berging
Parkeergelegenheid
- Soort parkeergelegenheid
- Openbaar parkeren
Foto's 49
© 2001-2025 funda
















































