
Omschrijving
Heerlijk wonen aan de bosrand – met souterrain en gunstig gelegen tuin met garage.
Stollenbergweg 65 – Berg en Dal
Aan een rustige, groene straat op een prachtige plek aan de bosrand ligt deze gemoderniseerde twee-onder-een-kapwoning met vrijstaande garage en diepe zonnige achtertuin (zuidwest). Hier woon je in alle rust, maar toch dichtbij de stad: op loopafstand van de bossen en binnen tien fietsminuten in hartje Nijmegen.
De woning is verzorgd, voorzien van een keurige afwerking én een verrassend ruime, compleet ingerichte kelderverdieping met slaapkamer. Ideaal voor logés, tieners, of als werk- of hobbyruimte.
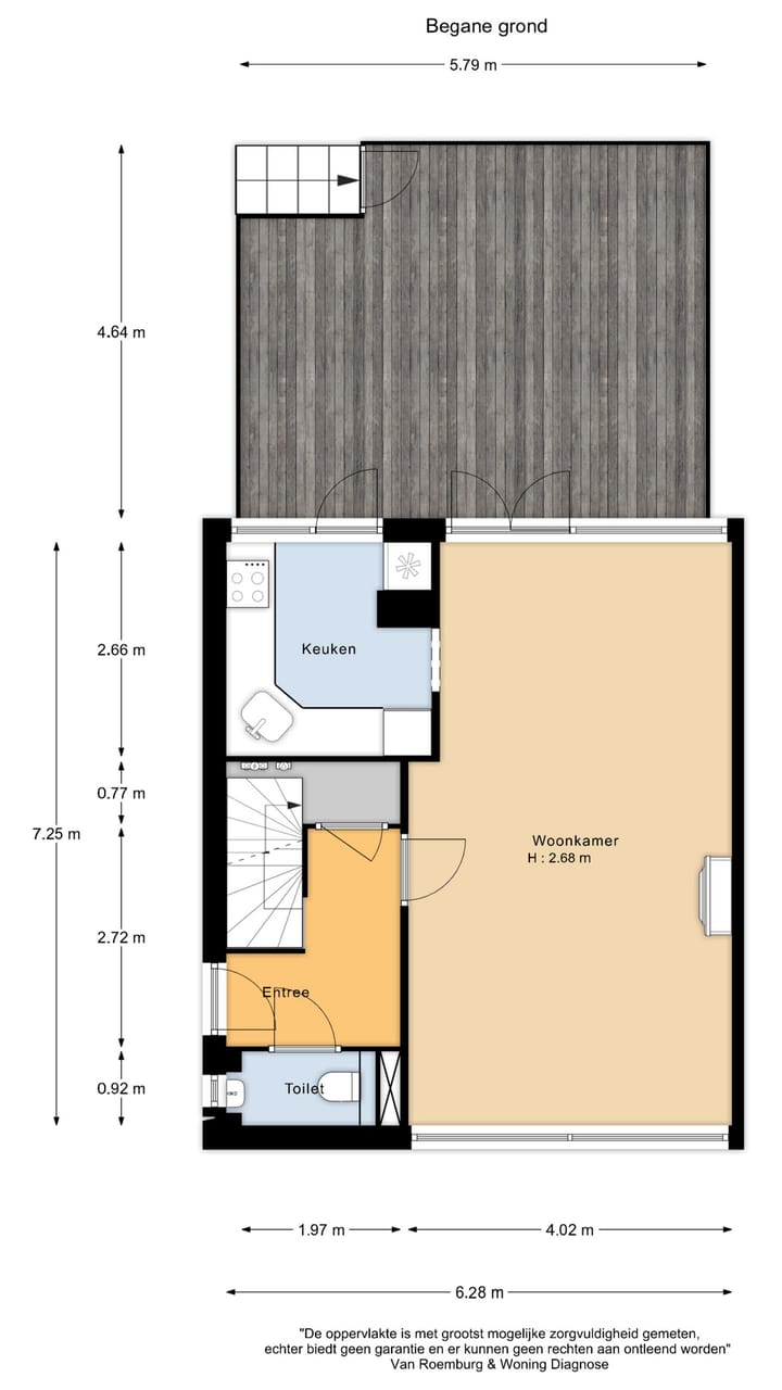
Begane grond:
Entree, hal met toilet, toegang tot de kelderverdieping (garderobe). De lichte doorzon woonkamer heeft openslaande deuren naar de tuin/terras. De dichte keuken (2008) is voorzien van diverse inbouwapparatuur en biedt eveneens toegang tot de tuin.
Eerste verdieping:
Overloop, twee slaapkamers, waarvan één met toegang tot het balkon aan de achterzijde. De kamer aan de achterzijde heeft een vide en vliering met toegang tot een bergzolder. De badkamer op deze verdieping beschikt over een douche, vaste wastafel en een toilet. Daarnaast is de voormalige douche ingericht als bergruimte.
Souterrain:
Volledig gemoderniseerd en verrassend ruim! Bestaande uit een kelderruimte met witgoedaansluitingen, een aangrenzende ruimte waar een fraaie slaapkamer is gerealiseerd een comfortabele, volwaardige ruimte met daglicht, verwarming en een moderne afwerking. Ideaal als logeerkamer, thuiswerkplek, aan de achterzijde van deze kamer is een inloopkast/bergruimte gelegen.
Tuin:
De achtertuin is royaal, perfect op de zon (zuidwest) en biedt volop privacy. Achterin de tuin bevindt zich een vrijstaande stenen garage, uiteraard bereikbaar via een oprit met parkeren op eigen terrein.
Kenmerken:
* Perceeloppervlakte: 269 m²
* Woonoppervlakte: ca. 119 m²
* Inpandige ruimte (souterrain): volledig afgewerkt en in gebruik als slaapkamer
* Inhoud: ca. 407 m³
* Diepe zonnige tuin en vrijstaande garage
* Bosrijke woonomgeving op steenworp van Nijmegen
Zoek je een top locatie met rust én ruimte? Dan is dit er absoluut één om te komen bekijken. We laten je graag alles zien.
Kenmerken
Overdracht
- Laatste vraagprijs
- € 575.000 kosten koper
- Vraagprijs per m²
- € 4.832
- Status
- Verkocht
Bouw
- Soort woonhuis
- Eengezinswoning, 2-onder-1-kapwoning
- Soort bouw
- Bestaande bouw
- Bouwjaar
- 1950
- Soort dak
- Zadeldak bedekt met pannen
Oppervlakten en inhoud
- Gebruiksoppervlakten
- Wonen
- 119 m²
- Gebouwgebonden buitenruimte
- 7 m²
- Externe bergruimte
- 13 m²
- Perceel
- 269 m²
- Inhoud
- 407 m³
Indeling
- Aantal kamers
- 4 kamers (3 slaapkamers)
- Aantal badkamers
- 1 badkamer en 1 apart toilet
- Badkamervoorzieningen
- Douche, toilet, wastafel, en wastafelmeubel
- Aantal woonlagen
- 2 woonlagen, een vliering, en een kelder
- Voorzieningen
- Rookkanaal en TV kabel
Energie
- Energielabel
- Isolatie
- Dakisolatie, dubbel glas, muurisolatie en vloerisolatie
- Verwarming
- Cv-ketel en gedeeltelijke vloerverwarming
- Warm water
- Cv-ketel
- Cv-ketel
- Nefit Trendline HRC 30 (gas gestookt combiketel uit 2014, eigendom)
Kadastrale gegevens
- GROESBEEK K 375
- Kadastrale kaart
- Oppervlakte
- 269 m²
- Eigendomssituatie
- Volle eigendom
Buitenruimte
- Ligging
- Aan rustige weg, in bosrijke omgeving en in woonwijk
- Tuin
- Achtertuin, voortuin en zijtuin
- Achtertuin
- 137 m² (16,30 meter diep en 8,40 meter breed)
- Ligging tuin
- Gelegen op het zuidwesten
Garage
- Soort garage
- Vrijstaande stenen garage
- Capaciteit
- 1 auto
- Voorzieningen
- Elektra
Parkeergelegenheid
- Soort parkeergelegenheid
- Op eigen terrein
Foto's 53
© 2001-2026 funda




















































